Einsteindreef 5
€ 425.000 k.k.
Maassluis
Eengezinswoning
122 m²
4 slaapkamers
Zuidwest
In overleg
Gelegen in een fijne, groene woonomgeving en kindvriendelijke buurt waar rust en gemak hand in hand gaan, vind je deze verrassend ruime tussenwoning die alles in zich heeft voor comfortabel gezinsleven. In de directe omgeving zijn diverse voorzieningen te vinden zoals winkels, scholen, sportfaciliteiten en het openbaar vervoer, terwijl ook uitvalswegen snel bereikbaar zijn. Een plek waar je rustig woont, maar toch overal dichtbij bent. Achter de voordeur word je verwelkomd in een verzorgde woning met een prettige lichtinval en een praktische indeling. De woonkamer aan de achterzijde voelt heerlijk ruim aan en staat in directe verbinding met de zonnige achtertuin via een schuifpui. Deze diepe tuin is speels aangelegd met bestrating, groen en een stukje kunstgras, en beschikt over een berging en een handige achterom. Ideaal voor fietsen en extra gemak. Aan de voorzijde bevindt zich de open keuken, waar je tijdens het koken leuk contact houdt met de straat en het gezellige geveltuintje met zijn diverse beplanting. Met maar liefst vier slaapkamers is er volop ruimte voor het hele gezin, werken aan huis of hobby’s. Daarnaast biedt de woning nog extra flexibiliteit. De royale slaapkamer op de eerste verdieping is eenvoudig weer op te splitsen, waardoor er zelfs een vijfde kamer gerealiseerd kan worden. Ook de bovenste etage vormt een fijne aanvulling met een extra toilet en praktische bergruimte. De woning is daarnaast voorzien van kunststof kozijnen met dubbel glas, een zonnescherm en heeft een gunstig energielabel B, wat bijdraagt aan comfortabel en energiezuinig wonen. Een ideale plek voor wie op zoek is naar ruimte, mogelijkheden en een prettige woonomgeving om jarenlang van te genieten.
INDELING
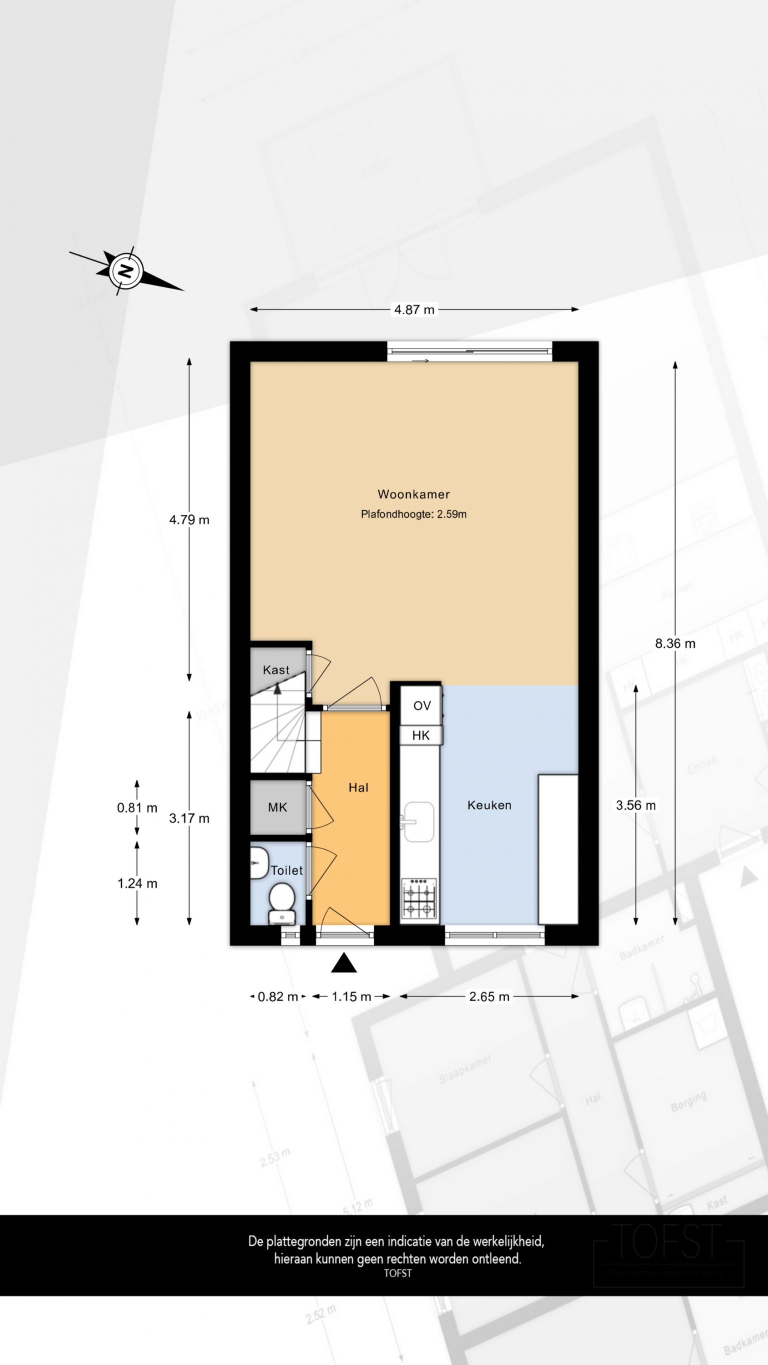
BEGANE GROND
Vanaf de straat is er toegang tot de voordeur, die handig is voorzien van een afdakje en het gezellige geveltuintje heeft een diversiteit aan beplanting.
Na de voordeur is er een binnenkomst in de afsluitbare entreehal, die achter de voordeur is voorzien van een schoonloopmat met aangrenzend een laminaatvloer, die drempelloos is doorgetrokken naar de woonkamer. De wanden zijn voorzien van behang en vanuit de hal is er toegang tot de meterkast, de trap naar de 1e verdieping, de woonkamer en het gedeeltelijk betegelde toilet.
De woonkamer heeft een zithoek die is gesitueerd aan de achterzijde. De schuifpui zorgt voor een toegang tot de achtertuin en er is ruimte voor een eethoek. De wanden zijn afgewerkt met behang, de aanwezige trapkast zorgt voor extra opbergruimte en vanuit de woonkamer is er een open toegang tot de keuken, die zich aan de voorzijde bevindt. De keuken beschikt over een twee rechte keukenblokken, die tegenover elkaar zijn geplaatst. Er zijn bovenkasten aanwezig en er is diverse apparatuur geplaatst. Het aanrechtblad loopt aan één zijde door naar de achterwand en het gedeelte bij het gasfornuis is betegeld. De vloer is voorzien van tegels en het raam zorgt voor extra lichtinval.
De achtertuin is vrolijk aangelegd, waarbij een groot gedeelte is betegeld. Daarnaast ligt er een stukje kunstgras en zijn er diverse borders met beplanting. Achterin de tuin staat een berging en de schuttingen rondom beschikken over poort naar het achterpad. Ook hangt er aan de gevel van de woning een handbedienbaar zonnescherm.
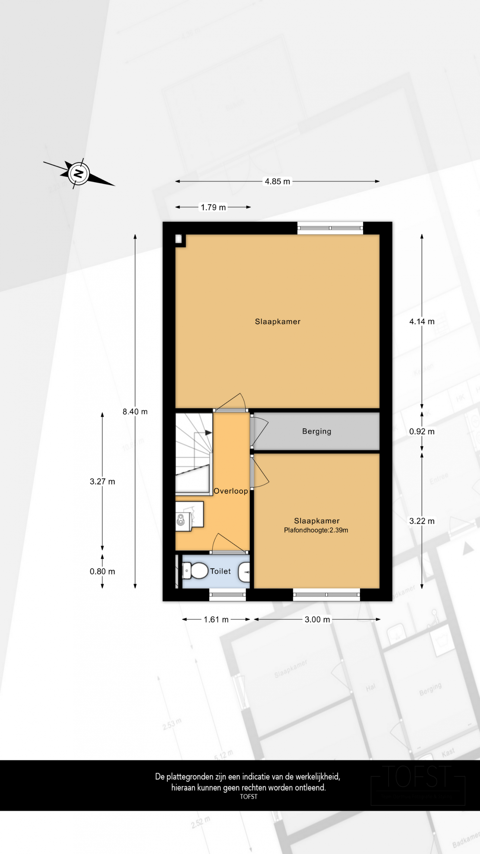
1E VERDIEPING
Na de trapopgang kom je op de overloop. Ook hier zijn de wanden voorzien van glasweefselbehang en ligt er een laminaatvloer, die is doorgetrokken naar de twee slaapkamers. Verder is er vanaf de overloop toegang tot de trap naar de 2e verdieping, een vaste kast en de badkamer.
De eerste slaapkamer aan de achterzijde is vergroot, doordat het voorheen bestond uit twee slaapkamers. Er is een vaste kast geplaatst met schuifdeuren en mocht de wens er zijn om deze kamer weer te splitsen, kan er gemakkelijk weer een toegang gemaakt worden op de plaats van de vaste kast. De tweede slaapkamer is gelegen aan de voorzijde.
De volledig betegelde badkamer is uitgerust met een douchecabine en een wastafelmeubel. Daarnaast hangt er een handdoeken radiator, is er een wasmachine aansluiting en een draai-/kiepraam.
2E VERDIEPING
Ook hier is er een overloop, die is voorzien van een wasmachine aansluiting en de Cv-ketel. De wanden zijn gesausd en er ligt een laminaatvloer, die is doorgetrokken naar één van de twee slaapkamers. Daarnaast is er vanaf de overloop nog toegang tot een berging en een extra toilet.
De twee slaapkamers op deze verdieping zijn verdeeld gelegen over de voor- en achterzijde. De radiatoren zijn netjes weggewerkt achter een ombouw en er is een koof langs het plafond, die is voorzien van inbouw spots.
BIJZONDERHEDEN
- Voorzien van kunststof kozijnen met dubbel glas
- Zonnescherm op de begane grond
- Berging in de achtertuin
- Cv-ketel 2016, 1 april jl. onderhoudsbeurt.
- Extra toilet op de 2e verdieping
- Gelegen op eigen grond
- Bouwjaar 1981
- Energielabel B
- Oplevering in overleg, naar verwachting per eind augustus 2026
Deze informatie is door ons met de nodige zorgvuldigheid samengesteld. Prins NVM Makelaars streeft ernaar de informatie op haar website / brochures en andere uitingen zo actueel en nauwkeurig mogelijk weer te geven. Onzerzijds wordt echter geen enkele aansprakelijkheid aanvaard voor enige onvolledigheid, onjuistheid of anderszins, dan wel de gevolgen daarvan
Move.nl Dossier
Wanneer u bij ons een bezichtiging heeft ingepland, krijgt u toegang tot het Move.nl bezichtigingsdossier van de woning.
Woonoppervlakte
De Meetinstructie is gebaseerd op de NEN2580. De Meetinstructie is bedoeld om een meer eenduidige manier van meten toe te passen voor het geven van een indicatie van de gebruiksoppervlakte. De Meetinstructie sluit verschillen in meetuitkomsten niet volledig uit, door bijvoorbeeld interpretatieverschillen, afrondingen of beperkingen bij het uitvoeren van de meting.
Indien de exacte maten voor een koper van cruciaal belang zijn, adviseren wij deze zelf na te meten. De (kandidaat)koper(s) zullen, indien gewenst, daartoe in de gelegenheid gesteld worden op een passend moment teneinde teleurstellingen en schade te voorkomen.
Ouderdomsclausule
Bij woningen ouder dan 30 jaar zal er standaard in de koopakte een ouderdomsclausule worden opgenomen.
Notariskeuze en kosten
In principe ligt de notariskeuze bij de koper. Het doorhalen van de hypothecaire inschrijving in het kadaster moet door de verkoper betaald worden. Zijn de kosten voor deze doorhaling hoger dan € 400,- inclusief BTW dan wordt het meerdere bij de koper in rekening gebracht. Indien de koper een notaris kiest buiten een straal van 20 kilometer van de verkochte onroerende zaak dan zijn de eventuele kosten die de notaris berekent voor een eventuele verkoopvolmacht en legalisatie hiervan ten behoeve van de verkoper voor rekening van de koper.
Getekende koopovereenkomst
Een mondelinge overeenstemming tussen de particuliere verkoper en de particuliere koper is niet rechtsgeldig. Met andere woorden: er is geen koop. Er is pas sprake van een rechtsgeldige koop als de particuliere verkoper en de particuliere koper de koopovereenkomst hebben ondertekend. Dit vloeit voort uit artikel 7:2 Burgerlijk Wetboek. Een bevestiging van de mondelinge overeenstemming per e-mail of een toegestuurd concept van de koopovereenkomst wordt overigens niet gezien als een ‘ondertekende koopovereenkomst’.
Gunning
Verkoper behoudt zich uitdrukkelijk het recht voor het object te gunnen aan de gegadigde van zijn keuze. Nadrukkelijk zij vermeld dat alle informatie in deze brochure moet beschouwd worden als een uitnodiging tot het doen van een bod of om in onderhandeling te treden. Er kunnen geen rechten worden ontleend aan deze informatie.
INDELING
BEGANE GROND
Vanaf de straat is er toegang tot de voordeur, die handig is voorzien van een afdakje en het gezellige geveltuintje heeft een diversiteit aan beplanting.
Na de voordeur is er een binnenkomst in de afsluitbare entreehal, die achter de voordeur is voorzien van een schoonloopmat met aangrenzend een laminaatvloer, die drempelloos is doorgetrokken naar de woonkamer. De wanden zijn voorzien van behang en vanuit de hal is er toegang tot de meterkast, de trap naar de 1e verdieping, de woonkamer en het gedeeltelijk betegelde toilet.
De woonkamer heeft een zithoek die is gesitueerd aan de achterzijde. De schuifpui zorgt voor een toegang tot de achtertuin en er is ruimte voor een eethoek. De wanden zijn afgewerkt met behang, de aanwezige trapkast zorgt voor extra opbergruimte en vanuit de woonkamer is er een open toegang tot de keuken, die zich aan de voorzijde bevindt. De keuken beschikt over een twee rechte keukenblokken, die tegenover elkaar zijn geplaatst. Er zijn bovenkasten aanwezig en er is diverse apparatuur geplaatst. Het aanrechtblad loopt aan één zijde door naar de achterwand en het gedeelte bij het gasfornuis is betegeld. De vloer is voorzien van tegels en het raam zorgt voor extra lichtinval.
De achtertuin is vrolijk aangelegd, waarbij een groot gedeelte is betegeld. Daarnaast ligt er een stukje kunstgras en zijn er diverse borders met beplanting. Achterin de tuin staat een berging en de schuttingen rondom beschikken over poort naar het achterpad. Ook hangt er aan de gevel van de woning een handbedienbaar zonnescherm.
1E VERDIEPING
Na de trapopgang kom je op de overloop. Ook hier zijn de wanden voorzien van glasweefselbehang en ligt er een laminaatvloer, die is doorgetrokken naar de twee slaapkamers. Verder is er vanaf de overloop toegang tot de trap naar de 2e verdieping, een vaste kast en de badkamer.
De eerste slaapkamer aan de achterzijde is vergroot, doordat het voorheen bestond uit twee slaapkamers. Er is een vaste kast geplaatst met schuifdeuren en mocht de wens er zijn om deze kamer weer te splitsen, kan er gemakkelijk weer een toegang gemaakt worden op de plaats van de vaste kast. De tweede slaapkamer is gelegen aan de voorzijde.
De volledig betegelde badkamer is uitgerust met een douchecabine en een wastafelmeubel. Daarnaast hangt er een handdoeken radiator, is er een wasmachine aansluiting en een draai-/kiepraam.
2E VERDIEPING
Ook hier is er een overloop, die is voorzien van een wasmachine aansluiting en de Cv-ketel. De wanden zijn gesausd en er ligt een laminaatvloer, die is doorgetrokken naar één van de twee slaapkamers. Daarnaast is er vanaf de overloop nog toegang tot een berging en een extra toilet.
De twee slaapkamers op deze verdieping zijn verdeeld gelegen over de voor- en achterzijde. De radiatoren zijn netjes weggewerkt achter een ombouw en er is een koof langs het plafond, die is voorzien van inbouw spots.
BIJZONDERHEDEN
- Voorzien van kunststof kozijnen met dubbel glas
- Zonnescherm op de begane grond
- Berging in de achtertuin
- Cv-ketel 2016, 1 april jl. onderhoudsbeurt.
- Extra toilet op de 2e verdieping
- Gelegen op eigen grond
- Bouwjaar 1981
- Energielabel B
- Oplevering in overleg, naar verwachting per eind augustus 2026
Deze informatie is door ons met de nodige zorgvuldigheid samengesteld. Prins NVM Makelaars streeft ernaar de informatie op haar website / brochures en andere uitingen zo actueel en nauwkeurig mogelijk weer te geven. Onzerzijds wordt echter geen enkele aansprakelijkheid aanvaard voor enige onvolledigheid, onjuistheid of anderszins, dan wel de gevolgen daarvan
Move.nl Dossier
Wanneer u bij ons een bezichtiging heeft ingepland, krijgt u toegang tot het Move.nl bezichtigingsdossier van de woning.
Woonoppervlakte
De Meetinstructie is gebaseerd op de NEN2580. De Meetinstructie is bedoeld om een meer eenduidige manier van meten toe te passen voor het geven van een indicatie van de gebruiksoppervlakte. De Meetinstructie sluit verschillen in meetuitkomsten niet volledig uit, door bijvoorbeeld interpretatieverschillen, afrondingen of beperkingen bij het uitvoeren van de meting.
Indien de exacte maten voor een koper van cruciaal belang zijn, adviseren wij deze zelf na te meten. De (kandidaat)koper(s) zullen, indien gewenst, daartoe in de gelegenheid gesteld worden op een passend moment teneinde teleurstellingen en schade te voorkomen.
Ouderdomsclausule
Bij woningen ouder dan 30 jaar zal er standaard in de koopakte een ouderdomsclausule worden opgenomen.
Notariskeuze en kosten
In principe ligt de notariskeuze bij de koper. Het doorhalen van de hypothecaire inschrijving in het kadaster moet door de verkoper betaald worden. Zijn de kosten voor deze doorhaling hoger dan € 400,- inclusief BTW dan wordt het meerdere bij de koper in rekening gebracht. Indien de koper een notaris kiest buiten een straal van 20 kilometer van de verkochte onroerende zaak dan zijn de eventuele kosten die de notaris berekent voor een eventuele verkoopvolmacht en legalisatie hiervan ten behoeve van de verkoper voor rekening van de koper.
Getekende koopovereenkomst
Een mondelinge overeenstemming tussen de particuliere verkoper en de particuliere koper is niet rechtsgeldig. Met andere woorden: er is geen koop. Er is pas sprake van een rechtsgeldige koop als de particuliere verkoper en de particuliere koper de koopovereenkomst hebben ondertekend. Dit vloeit voort uit artikel 7:2 Burgerlijk Wetboek. Een bevestiging van de mondelinge overeenstemming per e-mail of een toegestuurd concept van de koopovereenkomst wordt overigens niet gezien als een ‘ondertekende koopovereenkomst’.
Gunning
Verkoper behoudt zich uitdrukkelijk het recht voor het object te gunnen aan de gegadigde van zijn keuze. Nadrukkelijk zij vermeld dat alle informatie in deze brochure moet beschouwd worden als een uitnodiging tot het doen van een bod of om in onderhandeling te treden. Er kunnen geen rechten worden ontleend aan deze informatie.
Kenmerken
Overdracht
- vraagprijs
- € 425.000 k.k.
- Status
- Verkocht onder voorbehoud
- Aanvaarding
- In overleg
Bouw
- Soort woning
- Eengezinswoning, tussenwoning
- Soort bouw
- Bestaande bouw
Oppervlakten en inhoud
- Woonoppervlakte
- 122 m²
- Externe bergruimte
- 7 m²
- Perceel
- 93 m²
- Inhoud
- 425 m³
Indeling
- Aantal kamers
- 5 kamers (4 slaapkamers)
- Aantal verdiepingen
- 3 Verdiepingen
- Voorzieningen
- Buitenzonwering, schuifpui
Energie
- Energielabel
- B
- Isolatie
- Dubbel glas
Buitenruimte
- Ligging
- In woonwijk
- Tuin
- Achtertuin, voortuin
- Achtertuin
- 50 m² (9,80m Diep / 5,15m Breed)
- Ligging tuin
- Zuidwest
Garage
- Soort garage
- Geen garage
Parkeren
- Soort parkeergelegenheid
- Openbaar parkeren