Open huis
- 28 maart 11:00 - 15:00
Van Beethovenlaan 341
€ 350.000 k.k.
Maassluis
Galerijflat
88 m²
3 slaapkamers
In overleg
Wonen op een plek waar alles samenkomt? Dit royale 4-kamerappartement ligt op een fantastische locatie, direct aan de rand van winkelcentrum Koningshoek. Hier wandel je zó naar de winkels voor de dagelijkse boodschappen, een middagje shoppen of een kop koffie. Ook scholen, het openbaar vervoer en de uitvalswegen zijn dichtbij en met volop parkeergelegenheid voor en achter het complex én bij het winkelcentrum, is thuiskomen altijd ontspannen. Vanaf het balkon geniet je bovendien van een vrij uitzicht over de wijk en zie je de schepen rustig voorbij varen. Het appartement zelf bevindt zich in een verzorgd complex met een centraal afgesloten entree, bellentableau, liften en een trapopgang. In de onderbouw beschik je over een eigen kelder én bevindt zich de Cv-installatie van het complex. Dankzij de centrale verwarming en de leidingen die door de woning lopen, is het hier in de winter heerlijk aangenaam warm.
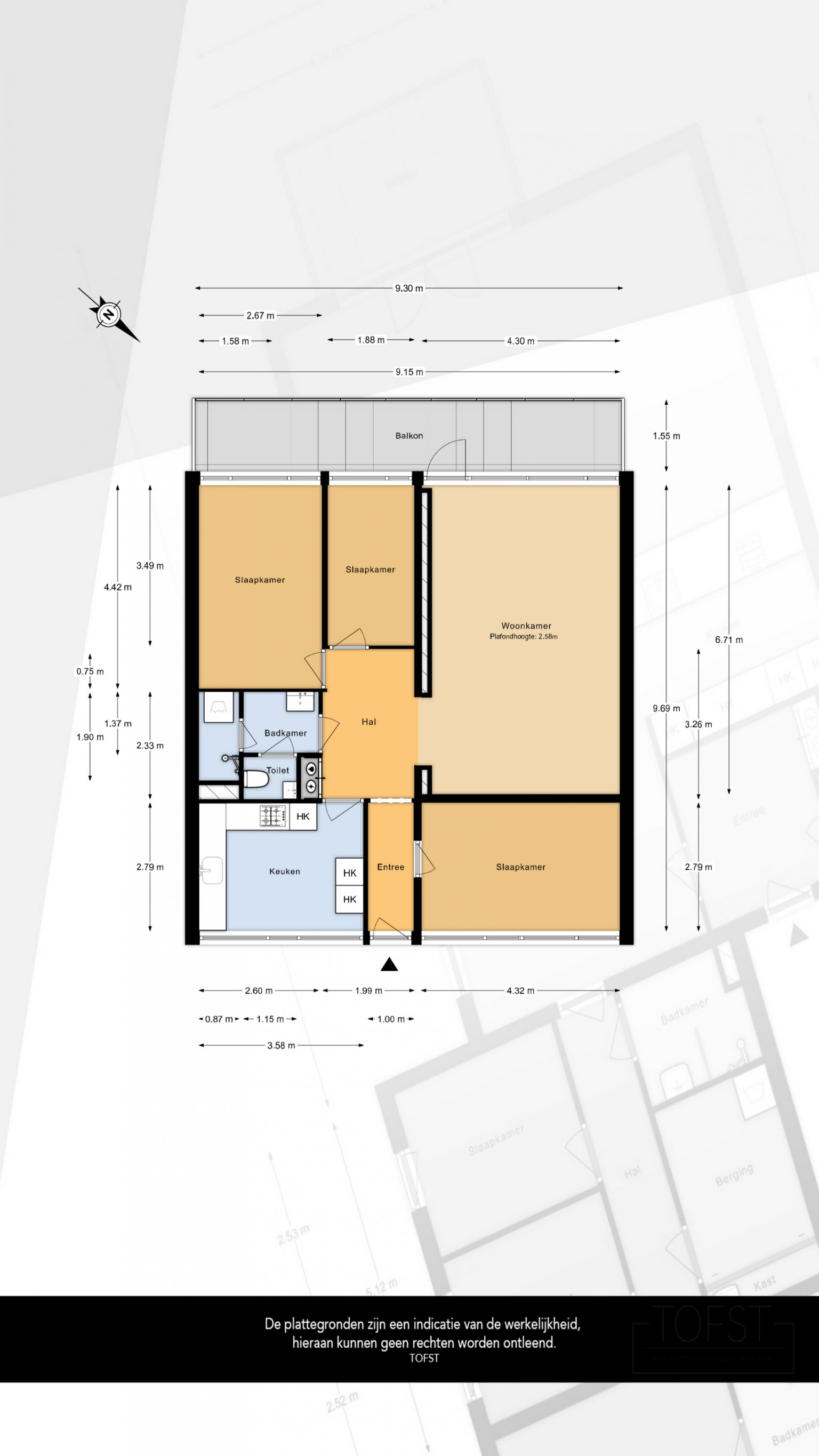
Binnen word je verwelkomd in een nette entreehal met gestuukte wanden en een laminaatvloer die doorloopt in het appartement. De lichte woonkamer biedt volop ruimte voor een gezellige zit- en eethoek en is een echte blikvanger dankzij de cinewall met elektrische haard, sfeervolle nissen en een plafondkoof met inbouwspots. Via de deur stap je het overdekte balkon op, waar vrij uitkijkt over de omgeving. De keuken is praktisch opgesteld in een hoek met een extra kastenwand en verlichte bovenkasten. Met onder andere een koelkast, oven, vaatwasser, kookplaat en afzuigkap is alles aanwezig om hier met plezier te koken. De drie slaapkamers zijn prettig verdeeld en keurig afgewerkt. De volledig betegelde badkamer is slim ingedeeld met een wastafelmeubel en kastruimte in het voorportaal, een aparte doucheruimte met wasmachineaansluiting en een separaat toilet met fonteintje. Kortom een fijn appartement op een levendige en centrale plek in Maassluis. Wie weet geniet jij hier binnenkort van het uitzicht én alle gemakken om de hoek.
INDELING
De centraal afgesloten entree is voorzien van een bellentableau. In de hal bevinden zich de brievenbussen en zijn er twee liften en een trap naar de verdiepingen. In de onderbouw bevindt zich de eigen kelder en de Cv installatie van het complex is ook in de kelder aanwezig.
APPARTEMENT
Vanaf de galerij is de voordeur bereikbaar, waarna er een binnenkomst is in de entreehal. Deze geeft toegang tot de eerste slaapkamer en er is een open toegang tot de aangrenzende hal. Alle wanden zijn gestuukt en er ligt een laminaatvloer. De hal geeft via een open toog toegang tot de woonkamer en verder zijn de keuken, de tweede en derde slaapkamer, de badkamer en de meterkast bereikbaar.
De woonkamer is een open ruimte met plaats voor zowel een zit- als een eethoek. De cinewall is voorzien van een elektrische haard en er zijn diverse nissen aanwezig. Langs het plafond is een koof geplaatst met inbouw spots en er is een deur naar het balkon.
Het balkon is fijn overdekt en heeft een metalen hekwerk. De glazen panelen zorgen voor een scheiding naar de aangrenzende balkons en vanaf hier is er een vrij uitzicht over de wijk en de voorbij varende schepen.
De keuken is opgesteld in een hoek met een losse kastenwand en handig voorzien van bovenkasten met verlichting. De achterwand is betegeld en er is diverse apparatuur aanwezig, zoals een koelkast, een oven, een vaatwasser, een kookplaat en een afzuigkap. Er is eventueel nog ruimte voor een eettafel en de vloer is hier voorzien van tegels.
De drie slaapkamers zijn verdeeld gelegen en beschikken allen over een laminaatvloer en gestuukte wanden.
De volledig betegelde badkamer is opgedeeld in drie ruimtes. Het voorportaal is voorzien van een wastafelmeubel met hoge kasten en een spiegelkast, daarna is er een afsluitbare ruimte met de douche en de wasmachine aansluiting en het toilet is praktisch separaat en extra voorzien van een fonteintje.
BIJZONDERHEDEN
- De woning is voorzien van houten kozijnen met dubbel glas
- Centrale verwarming
- Beschikken over een kelder in de onderbouw
- Actieve VvE (€322,24 per maand inclusief voorschot stookkosten)
- Vrij parkeren om het complex
- Gelegen op eigen grond
- Bouwjaar 1967
- Energielabel
- Oplevering in overleg
Deze informatie is door ons met de nodige zorgvuldigheid samengesteld. Prins NVM Makelaars streeft ernaar de informatie op haar website / brochures en andere uitingen zo actueel en nauwkeurig mogelijk weer te geven. Onzerzijds wordt echter geen enkele aansprakelijkheid aanvaard voor enige onvolledigheid, onjuistheid of anderszins, dan wel de gevolgen daarvan
Move.nl Dossier
Wanneer u bij ons een bezichtiging heeft ingepland, krijgt u toegang tot het Move.nl bezichtigingsdossier van de woning.
Woonoppervlakte
De Meetinstructie is gebaseerd op de NEN2580. De Meetinstructie is bedoeld om een meer eenduidige manier van meten toe te passen voor het geven van een indicatie van de gebruiksoppervlakte. De Meetinstructie sluit verschillen in meetuitkomsten niet volledig uit, door bijvoorbeeld interpretatieverschillen, afrondingen of beperkingen bij het uitvoeren van de meting.
Indien de exacte maten voor een koper van cruciaal belang zijn, adviseren wij deze zelf na te meten. De (kandidaat)koper(s) zullen, indien gewenst, daartoe in de gelegenheid gesteld worden op een passend moment teneinde teleurstellingen en schade te voorkomen.
Ouderdomsclausule
Bij woningen ouder dan 30 jaar zal er standaard in de koopakte een ouderdomsclausule worden opgenomen.
Notariskeuze en kosten
In principe ligt de notariskeuze bij de koper. Het doorhalen van de hypothecaire inschrijving in het kadaster moet door de verkoper betaald worden. Zijn de kosten voor deze doorhaling hoger dan € 400,- inclusief BTW dan wordt het meerdere bij de koper in rekening gebracht. Indien de koper een notaris kiest buiten een straal van 20 kilometer van de verkochte onroerende zaak dan zijn de eventuele kosten die de notaris berekent voor een eventuele verkoopvolmacht en legalisatie hiervan ten behoeve van de verkoper voor rekening van de koper.
Getekende koopovereenkomst
Een mondelinge overeenstemming tussen de particuliere verkoper en de particuliere koper is niet rechtsgeldig. Met andere woorden: er is geen koop. Er is pas sprake van een rechtsgeldige koop als de particuliere verkoper en de particuliere koper de koopovereenkomst hebben ondertekend. Dit vloeit voort uit artikel 7:2 Burgerlijk Wetboek. Een bevestiging van de mondelinge overeenstemming per e-mail of een toegestuurd concept van de koopovereenkomst wordt overigens niet gezien als een ‘ondertekende koopovereenkomst’.
Gunning
Verkoper behoudt zich uitdrukkelijk het recht voor het object te gunnen aan de gegadigde van zijn keuze. Nadrukkelijk zij vermeld dat alle informatie in deze brochure moet beschouwd worden als een uitnodiging tot het doen van een bod of om in onderhandeling te treden. Er kunnen geen rechten worden ontleend aan deze informatie.
Binnen word je verwelkomd in een nette entreehal met gestuukte wanden en een laminaatvloer die doorloopt in het appartement. De lichte woonkamer biedt volop ruimte voor een gezellige zit- en eethoek en is een echte blikvanger dankzij de cinewall met elektrische haard, sfeervolle nissen en een plafondkoof met inbouwspots. Via de deur stap je het overdekte balkon op, waar vrij uitkijkt over de omgeving. De keuken is praktisch opgesteld in een hoek met een extra kastenwand en verlichte bovenkasten. Met onder andere een koelkast, oven, vaatwasser, kookplaat en afzuigkap is alles aanwezig om hier met plezier te koken. De drie slaapkamers zijn prettig verdeeld en keurig afgewerkt. De volledig betegelde badkamer is slim ingedeeld met een wastafelmeubel en kastruimte in het voorportaal, een aparte doucheruimte met wasmachineaansluiting en een separaat toilet met fonteintje. Kortom een fijn appartement op een levendige en centrale plek in Maassluis. Wie weet geniet jij hier binnenkort van het uitzicht én alle gemakken om de hoek.
INDELING
De centraal afgesloten entree is voorzien van een bellentableau. In de hal bevinden zich de brievenbussen en zijn er twee liften en een trap naar de verdiepingen. In de onderbouw bevindt zich de eigen kelder en de Cv installatie van het complex is ook in de kelder aanwezig.
APPARTEMENT
Vanaf de galerij is de voordeur bereikbaar, waarna er een binnenkomst is in de entreehal. Deze geeft toegang tot de eerste slaapkamer en er is een open toegang tot de aangrenzende hal. Alle wanden zijn gestuukt en er ligt een laminaatvloer. De hal geeft via een open toog toegang tot de woonkamer en verder zijn de keuken, de tweede en derde slaapkamer, de badkamer en de meterkast bereikbaar.
De woonkamer is een open ruimte met plaats voor zowel een zit- als een eethoek. De cinewall is voorzien van een elektrische haard en er zijn diverse nissen aanwezig. Langs het plafond is een koof geplaatst met inbouw spots en er is een deur naar het balkon.
Het balkon is fijn overdekt en heeft een metalen hekwerk. De glazen panelen zorgen voor een scheiding naar de aangrenzende balkons en vanaf hier is er een vrij uitzicht over de wijk en de voorbij varende schepen.
De keuken is opgesteld in een hoek met een losse kastenwand en handig voorzien van bovenkasten met verlichting. De achterwand is betegeld en er is diverse apparatuur aanwezig, zoals een koelkast, een oven, een vaatwasser, een kookplaat en een afzuigkap. Er is eventueel nog ruimte voor een eettafel en de vloer is hier voorzien van tegels.
De drie slaapkamers zijn verdeeld gelegen en beschikken allen over een laminaatvloer en gestuukte wanden.
De volledig betegelde badkamer is opgedeeld in drie ruimtes. Het voorportaal is voorzien van een wastafelmeubel met hoge kasten en een spiegelkast, daarna is er een afsluitbare ruimte met de douche en de wasmachine aansluiting en het toilet is praktisch separaat en extra voorzien van een fonteintje.
BIJZONDERHEDEN
- De woning is voorzien van houten kozijnen met dubbel glas
- Centrale verwarming
- Beschikken over een kelder in de onderbouw
- Actieve VvE (€322,24 per maand inclusief voorschot stookkosten)
- Vrij parkeren om het complex
- Gelegen op eigen grond
- Bouwjaar 1967
- Energielabel
- Oplevering in overleg
Deze informatie is door ons met de nodige zorgvuldigheid samengesteld. Prins NVM Makelaars streeft ernaar de informatie op haar website / brochures en andere uitingen zo actueel en nauwkeurig mogelijk weer te geven. Onzerzijds wordt echter geen enkele aansprakelijkheid aanvaard voor enige onvolledigheid, onjuistheid of anderszins, dan wel de gevolgen daarvan
Move.nl Dossier
Wanneer u bij ons een bezichtiging heeft ingepland, krijgt u toegang tot het Move.nl bezichtigingsdossier van de woning.
Woonoppervlakte
De Meetinstructie is gebaseerd op de NEN2580. De Meetinstructie is bedoeld om een meer eenduidige manier van meten toe te passen voor het geven van een indicatie van de gebruiksoppervlakte. De Meetinstructie sluit verschillen in meetuitkomsten niet volledig uit, door bijvoorbeeld interpretatieverschillen, afrondingen of beperkingen bij het uitvoeren van de meting.
Indien de exacte maten voor een koper van cruciaal belang zijn, adviseren wij deze zelf na te meten. De (kandidaat)koper(s) zullen, indien gewenst, daartoe in de gelegenheid gesteld worden op een passend moment teneinde teleurstellingen en schade te voorkomen.
Ouderdomsclausule
Bij woningen ouder dan 30 jaar zal er standaard in de koopakte een ouderdomsclausule worden opgenomen.
Notariskeuze en kosten
In principe ligt de notariskeuze bij de koper. Het doorhalen van de hypothecaire inschrijving in het kadaster moet door de verkoper betaald worden. Zijn de kosten voor deze doorhaling hoger dan € 400,- inclusief BTW dan wordt het meerdere bij de koper in rekening gebracht. Indien de koper een notaris kiest buiten een straal van 20 kilometer van de verkochte onroerende zaak dan zijn de eventuele kosten die de notaris berekent voor een eventuele verkoopvolmacht en legalisatie hiervan ten behoeve van de verkoper voor rekening van de koper.
Getekende koopovereenkomst
Een mondelinge overeenstemming tussen de particuliere verkoper en de particuliere koper is niet rechtsgeldig. Met andere woorden: er is geen koop. Er is pas sprake van een rechtsgeldige koop als de particuliere verkoper en de particuliere koper de koopovereenkomst hebben ondertekend. Dit vloeit voort uit artikel 7:2 Burgerlijk Wetboek. Een bevestiging van de mondelinge overeenstemming per e-mail of een toegestuurd concept van de koopovereenkomst wordt overigens niet gezien als een ‘ondertekende koopovereenkomst’.
Gunning
Verkoper behoudt zich uitdrukkelijk het recht voor het object te gunnen aan de gegadigde van zijn keuze. Nadrukkelijk zij vermeld dat alle informatie in deze brochure moet beschouwd worden als een uitnodiging tot het doen van een bod of om in onderhandeling te treden. Er kunnen geen rechten worden ontleend aan deze informatie.
Kenmerken
Overdracht
- vraagprijs
- € 350.000 k.k.
- Status
- Beschikbaar
- Aanvaarding
- In overleg
Bouw
- Soort woning
- Galerijflat, appartement
- Soort bouw
- Bestaande bouw
Oppervlakten en inhoud
- Woonoppervlakte
- 88 m²
- Externe bergruimte
- 7 m²
- Inhoud
- 273 m³
Indeling
- Aantal kamers
- 4 kamers (3 slaapkamers)
- Aantal verdiepingen
- 1 Verdiepingen
- Voorzieningen
- Lift
Energie
- Energielabel
- C
- Isolatie
- Dubbel glas
Buitenruimte
- Ligging
- In woonwijk, vrij uitzicht
- Tuin
- Geen tuin
Garage
- Soort garage
- Geen garage
Parkeren
- Soort parkeergelegenheid
- Openbaar parkeren