Vrouwe Jacoba 2
€ 350.000 k.k.
Maassluis
Benedenwoning
60 m²
1 slaapkamer
Zuidoost
In overleg
Hier woon je midden in het levendige Maassluis, waar gemak en comfort samenkomen in een verrassend fijn hoekappartement op de begane grond. Met het metrostation letterlijk aan de overkant ligt heel de Randstad binnen handbereik, terwijl je tegelijkertijd geniet van de rust van een klein, verzorgd complex. Een groene omgeving, winkels, het gezellige centrum en mooie wandelroutes langs het water liggen allemaal op loopafstand, waardoor je hier elke dag het beste van beide werelden ervaart. Binnen stap je vanuit de straat zo je eigen entree binnen, waar de stijlvolle PVC-vloer in visgraatmotief je uitnodigt richting de lichte woonkamer met open keuken. Dankzij de grote ramen en de royale pui voelt de ruimte extra ruim en zonnig aan en met airconditioning geniet je hier het hele jaar door van een prettig binnenklimaat. De moderne keuken is praktisch ingericht en voorzien van alle benodigde inbouwapparatuur, perfect voor zowel snelle maaltijden als uitgebreide kookavonden. Het heerlijke overdekte terras vormt een verlengstuk van de woonkamer. Beschut, makkelijk toegankelijk en voorzien van vlondertegels, waardoor je hier ieder seizoen comfortabel buiten zit. Daarnaast beschikt de woning over een handige inpandige berging met plek voor wasmachine, droger én de Cv-ketel en is er ook nog een eigen externe berging met verlichting en elektra. De ruime slaapkamer biedt volop mogelijkheden voor een tweepersoonsbed, kledingkast én werkplek, met direct toegang tot de moderne, volledig betegelde badkamer met inloopdouche en fraai wastafelmeubel. Alles is netjes afgewerkt en dankzij de kunststof kozijnen met dubbel glas en insectenhorren op alle te openen ramen is het hier comfortabel wonen. Met eigen grond, een actieve VvE, een gunstig energielabel en een rustige maar centrale ligging, is dit een plek waar je je direct thuis voelt en waar je élke dag gemak en ontspanning combineert.
INDELING
APPARTEMENT
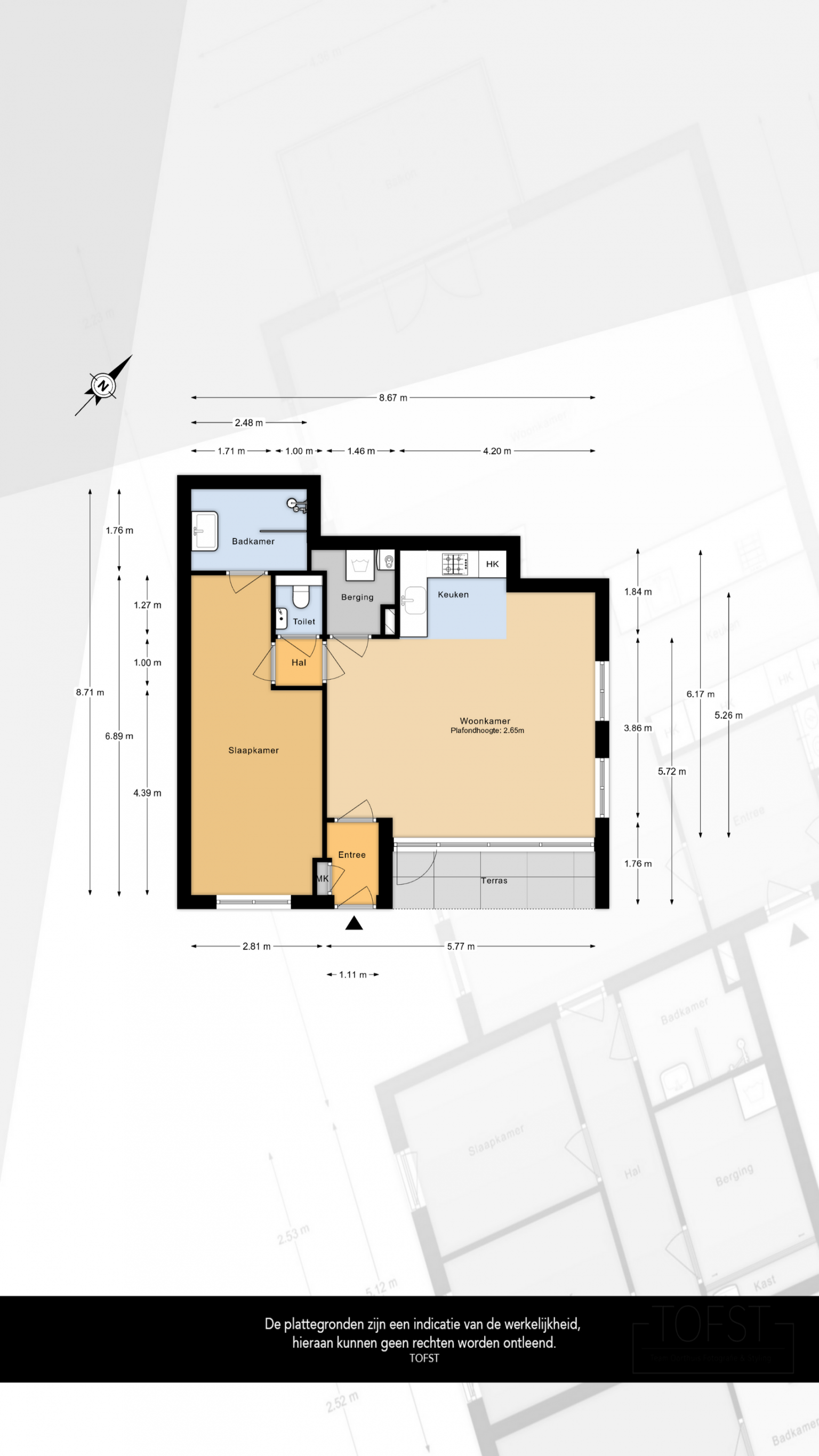
De voordeur is direct vanaf de straat bereikbaar en geeft toegang tot de afsluitbare entreehal die is voorzien van de meterkast en een ondiepe nis voor de garderobe. De wanden zijn deels afgewerkt met behang en deels gestuukt. Achter de voordeur ligt een schoonloopmat met aansluitend een PVC vloer in visgraatmotief, die drempelloos is doorgetrokken naar de woonkamer, de tussenhal en de slaapkamer.
De woonkamer met open keuken heeft dankzij de aanwezige ramen en de grote pui, met een deur naar het terras, veel natuurlijk lichtinval. Er is ruimte voor zowel een zit- als een eethoek en er is airconditioning aanwezig. Daarnaast is er vanuit de woonkamer toegang tot de inpandige berging en de tussenhal, die zorgt voor de verbinding naar de slaapkamer en het gedeeltelijk betegelde toilet.
De keuken is opgesteld in een hoek en beschikt naast bovenkasten met verlichting ook over diverse inbouwapparatuur. Boven de kookplaat hangt een afzuigkap en de achterwand is hier handig voorzien van een RVS plaat.
Het terras ligt op dezelfde hoogte als de straat en is daardoor gemakkelijk toegankelijk. Het ligt heerlijk beschut en de ondergrond is bedekt met vlondertegels.
De inpandige berging biedt naast opbergruimte ook plaats aan de opstelling van de Cv-ketel en de aansluitingen voor de wasmachine en de droger. De wanden zijn hier gestuukt en op de vloer ligt PVC.
In de ruime slaapkamer is er voldoende plaats voor een groot 2-persoonsbed, een garderobekast en zelfs een werkplek. De wanden zijn hier deels behangen en deels gestuukt en er is vanuit hier toegang tot de badkamer.
De strakke badkamer is volledig betegeld en uitgerust met een wastafelmeubel met daarboven een spiegel met verlichting en een inloopdouche.
BIJZONDERHEDEN
- Volledig voorzien van kunststof kozijnen met dubbel glas
- Alle te openen ramen zijn voorzien van insectenhorren
- Airconditioning in woonkamer (2025)
- Cv-ketel (2015)
- Eigen externe berging met verlichting en elektra
- Actieve VvE (bijdrage 2025 €150,- per maand, bijdrage 2026 €160,- per maand)
- Gelegen op eigen grond
- Bouwjaar 2015
- Oplevering in overleg
Deze informatie is door ons met de nodige zorgvuldigheid samengesteld. Prins NVM Makelaars streeft ernaar de informatie op haar website / brochures en andere uitingen zo actueel en nauwkeurig mogelijk weer te geven. Onzerzijds wordt echter geen enkele aansprakelijkheid aanvaard voor enige onvolledigheid, onjuistheid of anderszins, dan wel de gevolgen daarvan
Move.nl Dossier
Wanneer u bij ons een bezichtiging heeft ingepland, krijgt u toegang tot het Move.nl bezichtigingsdossier van de woning.
Woonoppervlakte
De Meetinstructie is gebaseerd op de NEN2580. De Meetinstructie is bedoeld om een meer eenduidige manier van meten toe te passen voor het geven van een indicatie van de gebruiksoppervlakte. De Meetinstructie sluit verschillen in meetuitkomsten niet volledig uit, door bijvoorbeeld interpretatieverschillen, afrondingen of beperkingen bij het uitvoeren van de meting.
Indien de exacte maten voor een koper van cruciaal belang zijn, adviseren wij deze zelf na te meten. De (kandidaat)koper(s) zullen, indien gewenst, daartoe in de gelegenheid gesteld worden op een passend moment teneinde teleurstellingen en schade te voorkomen.
Notariskeuze en kosten
In principe ligt de notariskeuze bij de koper. Het doorhalen van de hypothecaire inschrijving in het kadaster moet door de verkoper betaald worden. Zijn de kosten voor deze doorhaling hoger dan € 400,- inclusief BTW dan wordt het meerdere bij de koper in rekening gebracht. Indien de koper een notaris kiest buiten een straal van 20 kilometer van de verkochte onroerende zaak dan zijn de eventuele kosten die de notaris berekent voor een eventuele verkoopvolmacht en legalisatie hiervan ten behoeve van de verkoper voor rekening van de koper.
Getekende koopovereenkomst
Een mondelinge overeenstemming tussen de particuliere verkoper en de particuliere koper is niet rechtsgeldig. Met andere woorden: er is geen koop. Er is pas sprake van een rechtsgeldige koop als de particuliere verkoper en de particuliere koper de koopovereenkomst hebben ondertekend. Dit vloeit voort uit artikel 7:2 Burgerlijk Wetboek. Een bevestiging van de mondelinge overeenstemming per e-mail of een toegestuurd concept van de koopovereenkomst wordt overigens niet gezien als een ‘ondertekende koopovereenkomst’.
Gunning
Verkoper behoudt zich uitdrukkelijk het recht voor het object te gunnen aan de gegadigde van zijn keuze. Nadrukkelijk zij vermeld dat alle informatie in deze brochure moet beschouwd worden als een uitnodiging tot het doen van een bod of om in onderhandeling te treden. Er kunnen geen rechten worden ontleend aan deze
informatie.
INDELING
APPARTEMENT
De voordeur is direct vanaf de straat bereikbaar en geeft toegang tot de afsluitbare entreehal die is voorzien van de meterkast en een ondiepe nis voor de garderobe. De wanden zijn deels afgewerkt met behang en deels gestuukt. Achter de voordeur ligt een schoonloopmat met aansluitend een PVC vloer in visgraatmotief, die drempelloos is doorgetrokken naar de woonkamer, de tussenhal en de slaapkamer.
De woonkamer met open keuken heeft dankzij de aanwezige ramen en de grote pui, met een deur naar het terras, veel natuurlijk lichtinval. Er is ruimte voor zowel een zit- als een eethoek en er is airconditioning aanwezig. Daarnaast is er vanuit de woonkamer toegang tot de inpandige berging en de tussenhal, die zorgt voor de verbinding naar de slaapkamer en het gedeeltelijk betegelde toilet.
De keuken is opgesteld in een hoek en beschikt naast bovenkasten met verlichting ook over diverse inbouwapparatuur. Boven de kookplaat hangt een afzuigkap en de achterwand is hier handig voorzien van een RVS plaat.
Het terras ligt op dezelfde hoogte als de straat en is daardoor gemakkelijk toegankelijk. Het ligt heerlijk beschut en de ondergrond is bedekt met vlondertegels.
De inpandige berging biedt naast opbergruimte ook plaats aan de opstelling van de Cv-ketel en de aansluitingen voor de wasmachine en de droger. De wanden zijn hier gestuukt en op de vloer ligt PVC.
In de ruime slaapkamer is er voldoende plaats voor een groot 2-persoonsbed, een garderobekast en zelfs een werkplek. De wanden zijn hier deels behangen en deels gestuukt en er is vanuit hier toegang tot de badkamer.
De strakke badkamer is volledig betegeld en uitgerust met een wastafelmeubel met daarboven een spiegel met verlichting en een inloopdouche.
BIJZONDERHEDEN
- Volledig voorzien van kunststof kozijnen met dubbel glas
- Alle te openen ramen zijn voorzien van insectenhorren
- Airconditioning in woonkamer (2025)
- Cv-ketel (2015)
- Eigen externe berging met verlichting en elektra
- Actieve VvE (bijdrage 2025 €150,- per maand, bijdrage 2026 €160,- per maand)
- Gelegen op eigen grond
- Bouwjaar 2015
- Oplevering in overleg
Deze informatie is door ons met de nodige zorgvuldigheid samengesteld. Prins NVM Makelaars streeft ernaar de informatie op haar website / brochures en andere uitingen zo actueel en nauwkeurig mogelijk weer te geven. Onzerzijds wordt echter geen enkele aansprakelijkheid aanvaard voor enige onvolledigheid, onjuistheid of anderszins, dan wel de gevolgen daarvan
Move.nl Dossier
Wanneer u bij ons een bezichtiging heeft ingepland, krijgt u toegang tot het Move.nl bezichtigingsdossier van de woning.
Woonoppervlakte
De Meetinstructie is gebaseerd op de NEN2580. De Meetinstructie is bedoeld om een meer eenduidige manier van meten toe te passen voor het geven van een indicatie van de gebruiksoppervlakte. De Meetinstructie sluit verschillen in meetuitkomsten niet volledig uit, door bijvoorbeeld interpretatieverschillen, afrondingen of beperkingen bij het uitvoeren van de meting.
Indien de exacte maten voor een koper van cruciaal belang zijn, adviseren wij deze zelf na te meten. De (kandidaat)koper(s) zullen, indien gewenst, daartoe in de gelegenheid gesteld worden op een passend moment teneinde teleurstellingen en schade te voorkomen.
Notariskeuze en kosten
In principe ligt de notariskeuze bij de koper. Het doorhalen van de hypothecaire inschrijving in het kadaster moet door de verkoper betaald worden. Zijn de kosten voor deze doorhaling hoger dan € 400,- inclusief BTW dan wordt het meerdere bij de koper in rekening gebracht. Indien de koper een notaris kiest buiten een straal van 20 kilometer van de verkochte onroerende zaak dan zijn de eventuele kosten die de notaris berekent voor een eventuele verkoopvolmacht en legalisatie hiervan ten behoeve van de verkoper voor rekening van de koper.
Getekende koopovereenkomst
Een mondelinge overeenstemming tussen de particuliere verkoper en de particuliere koper is niet rechtsgeldig. Met andere woorden: er is geen koop. Er is pas sprake van een rechtsgeldige koop als de particuliere verkoper en de particuliere koper de koopovereenkomst hebben ondertekend. Dit vloeit voort uit artikel 7:2 Burgerlijk Wetboek. Een bevestiging van de mondelinge overeenstemming per e-mail of een toegestuurd concept van de koopovereenkomst wordt overigens niet gezien als een ‘ondertekende koopovereenkomst’.
Gunning
Verkoper behoudt zich uitdrukkelijk het recht voor het object te gunnen aan de gegadigde van zijn keuze. Nadrukkelijk zij vermeld dat alle informatie in deze brochure moet beschouwd worden als een uitnodiging tot het doen van een bod of om in onderhandeling te treden. Er kunnen geen rechten worden ontleend aan deze
informatie.
Kenmerken
Overdracht
- vraagprijs
- € 350.000 k.k.
- Status
- Verkocht onder voorbehoud
- Aanvaarding
- In overleg
Bouw
- Soort woning
- Benedenwoning, appartement
- Soort bouw
- Bestaande bouw
Oppervlakten en inhoud
- Woonoppervlakte
- 60 m²
- Externe bergruimte
- 5 m²
- Inhoud
- 201 m³
Indeling
- Aantal kamers
- 2 kamers (1 slaapkamer)
- Aantal verdiepingen
- 1 Verdiepingen
- Voorzieningen
- Mechanische ventilatie
Energie
- Energielabel
- A
- Isolatie
- Volledig geïsoleerd
Buitenruimte
- Ligging
- In woonwijk
- Tuin
- Plaats
- Achtertuin
- 6 m² (4,20m Diep / 1,50m Breed)
- Ligging tuin
- Zuidoost
Garage
- Soort garage
- Geen garage
Parkeren
- Soort parkeergelegenheid
- Openbaar parkeren