Wegedoorn 19
€ 679.000 k.k.
Maassluis
Bungalow
151 m²
3 slaapkamers
Zuidwest
In overleg
Tussen het groen van een rustige, kindvriendelijke woonwijk staat deze vrolijke en verrassend royale geschakelde hoekwoning, waar comfort en genieten samenkomen. Hier woon je in een prettige omgeving met speelgelegenheden, wandelpaden en alle dagelijkse voorzieningen op korte afstand. Winkels, scholen en openbaar vervoer zijn gemakkelijk bereikbaar, terwijl je thuis een gevoel van ruimte en privacy ervaart. De royale oprit voor drie auto’s met een eigen oplaadpunt, de grote tuin met een verhoogd zwembad en de fijne serre maken deze plek tot een waar thuis voor wie houdt van buitenleven en gemak. Binnen is werkelijk alles nieuw: in 2020 is de woning volledig gestript en opnieuw opgebouwd, waardoor elke ruimte fris, modern en doordacht is ingedeeld. De nieuwe keuken vormt het hart van de leefruimte en de luxe badkamer voelt aan als een privé-spa. Dankzij de airconditioning met verwarmingsfunctie, aanwezig in onder andere de woon/eetkamer, de werkkamer/slaapkamer en de bovenverdieping, is het binnen altijd comfortabel, zelfs tijdens warme zomers. De tuin is een heerlijke verlenging van de woning, met een royale overkapping, een externe berging en volop plek om te ontspannen. De serre met glazen dak en schuifwanden zorgt ervoor dat je het hele jaar door kunt genieten van het groen om je heen. Hier woon je ruim, vernieuwd en zorgeloos, met alle pluspunten die het dagelijks leven net een stukje mooier maken.
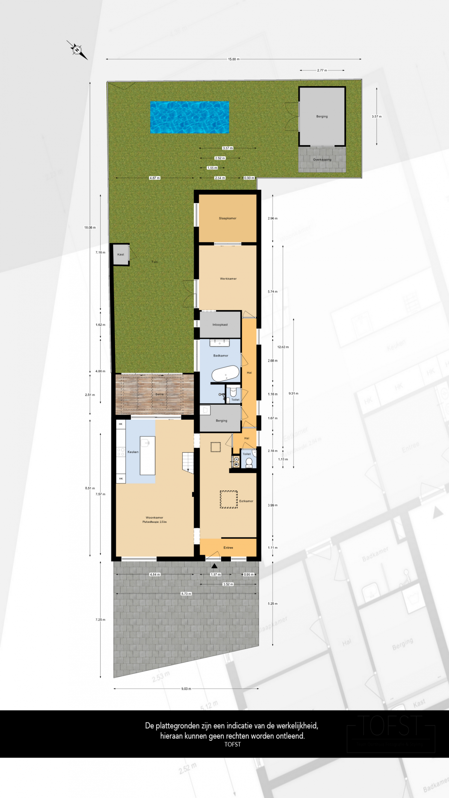
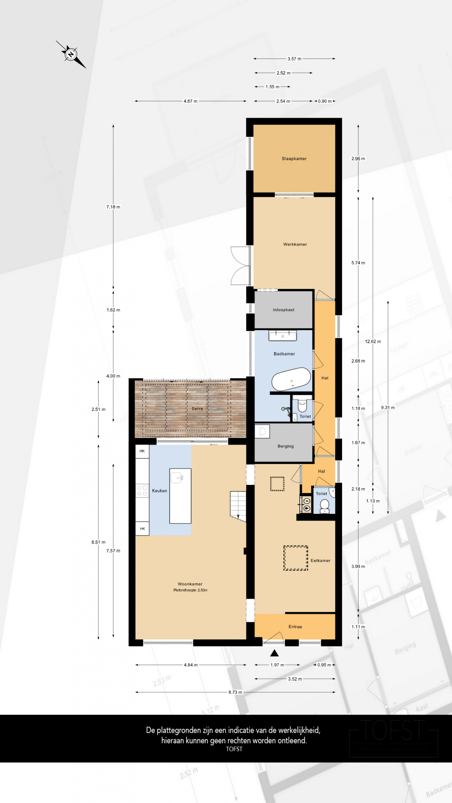
INDELING
Vanaf de straat is er een directe toegang tot de bestraatte voortuin, die overloopt in de ruime oprit. In zijn totaliteit biedt dit geheel plaats voor drie auto’s. Aan de gevel hangt een oplaadpunt en vanuit de voortuin is de voordeur bereikbaar.
BEGANE GROND
Na de voordeur is er een binnenkomst in de halfopen entreehal, die in open verbinding staat met de eetkamer en een doorkijk heeft naar de woonkamer. Het plafond is voorzien van inbouw spots en op de gehele begane grond zijn de wanden zijn gestuukt en is de vloer voorzien van PVC.
De eetkamer is inpandig gelegen, maar het elektrische daklicht met regensensor zorgt voor daglichttoetreding. In het verlengde is er een open verbindingsruimte die eveneens beschikt over een daklicht, maar ook is voorzien van de meterkast en airconditioning. Vanuit hier is er toegang tot de tussenhal en er is een open verbinding naar de keuken.
De open keuken is ruim van opzet en beschikt over een recht keukenblok tegen de wand en een vrijstaand eiland. Er is naast voldoende kastruimte ook diverse apparatuur aanwezig, zoals een combi magnetron/oven, een combi oven met stoomfunctie, een vaatwasser, een kookplaat, een afzuigkap, een koelkast, een vriezer en een separaat geplaatste wijnkoeler met twee aparte zones voor temperatuur. Vanuit de keuken is er een grote schuifpui naar de serre en de open trap geeft toegang tot de verdieping. De keuken loopt naar de voorzijde over in de woonkamer, waar voldoende ruimte is voor een gezellige zithoek. Het raam geeft een fijn zicht over de straat en het plafond is voorzien van inbouw spots.
De serre is gebouwd tegen de buitengevel, waarbij het dak is voorzien van glazen panelen met een elektrisch zonnescherm. De glazen schuifdeuren zorgen ervoor dat de serre kan worden afgesloten van buiten, maar dat het zicht over de tuin behouden blijft. Er zijn stopcontacten aanwezig voor elektra en de ondergrond is voorzien van vlonderplanken.
De riante achtertuin is opgedeeld in zones. Zo is er in het verlengde van de serre een groot betegeld terras met een stenen border met beplanting en een houten pergola. Aan de gevel hangt een waterkraantje en er staat een kleine stenen berging. Het achterste gedeelte van de tuin is eveneens voorzien van tegels en is volledig omheind door een houten schutting met een achteruitgang. Er staat een groot verhoogd zwembad, dat rondom met hout is afgewerkt en er ligt een stukje kunstgras. Daarnaast staat er nog een houten schutting met een overkapping, die is voorzien van verlichting en elektra.
De tussenhal geeft toegang tot het volledig betegelde toilet en is de verbinding naar de aansluitende hal, die toegang geeft tot de werk/slaapkamer, de badkamer, het tweede toilet en de inpandige berging met de wasmachine aansluiting.
De werk/slaapkamer is doormiddel van houten schuifdeuren opgedeeld in twee ruimtes. Zo is het slaapgedeelte fijn gescheiden van de werkkamer. Er is een inloopkast aanwezig en de openslaande deuren geven toegang tot de tuin.
De luxe badkamer is volledig betegeld en uitgerust met een vrijstaand bad, een inloopdouche en een wastafelmeubel dat is voorzien van twee waskommen met daarboven een spiegel met verlichting. Het plafond is voorzien van inbouw spots en er is een groot te openen raam aanwezig.
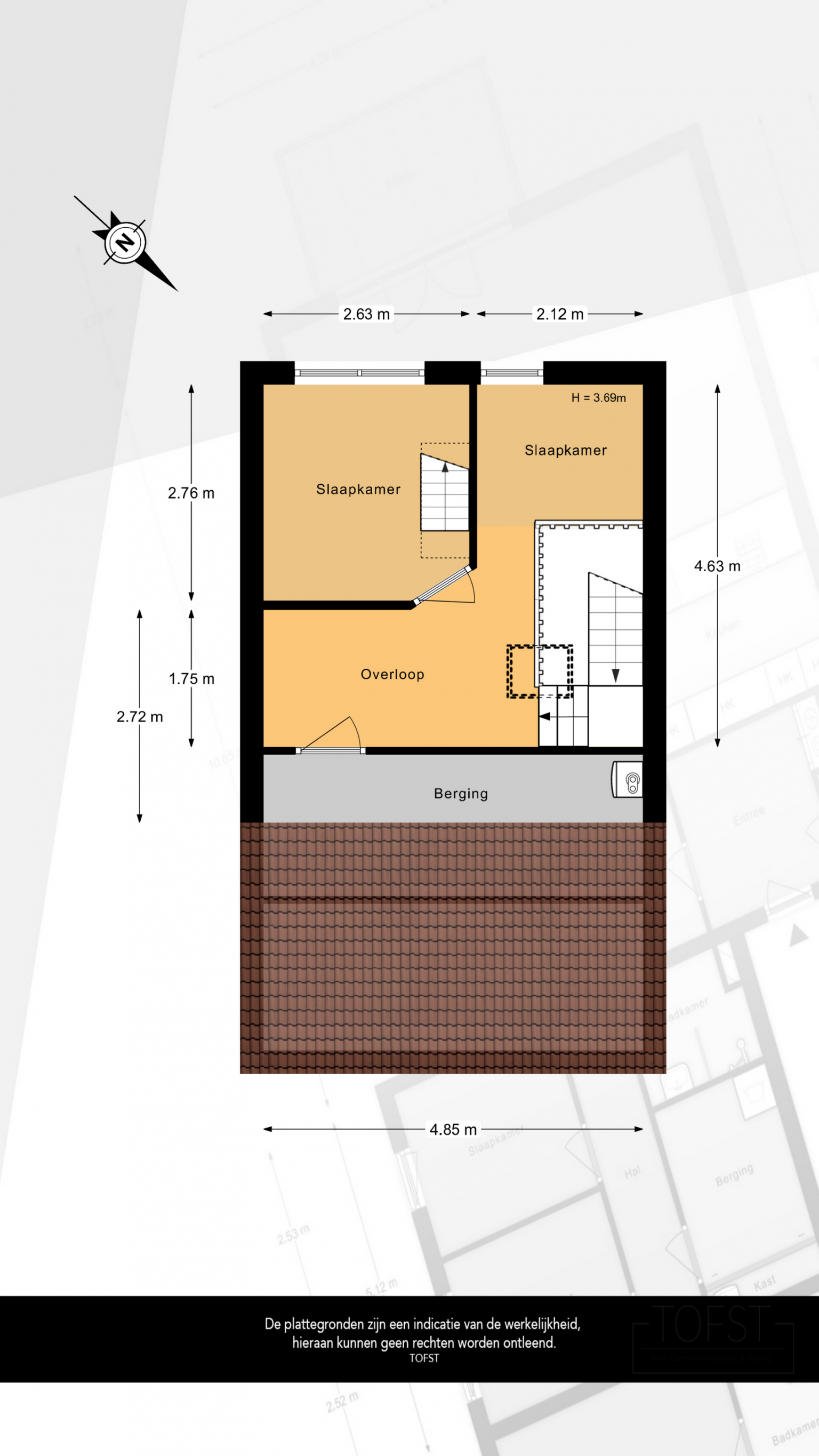
1E VERDIEPING
Na de trapopgang is de overloop bereikbaar. Deze biedt voldoende ruimte voor het plaatsen van een extra bed en een bureau en er hangt airconditioning. Vanaf de overloop is er toegang tot de tweede slaapkamer en de berging onder de schuine kap. Ook op deze verdieping zijn de wanden gestuukt en ligt er een PVC vloer.
De tweede slaapkamer is gelegen aan de achterzijde is voorzien van een trap naar de open vliering met verlichting en elektra. Een wand is hier behangen en het plafond is voorzien van inbouw spots.
De handige extra berging onder de schuine kap is voorzien van verlichting en kan handige gebruikt worden voor het opbergen van spullen, maar ook als hobbyruimte. In deze ruimte hangt tevens de opstelling van de Cv-ketel.
BIJZONDERHEDEN
- De woning is in 2020 intern geheel gestript en opnieuw ingedeeld en opgebouwd. Alle ruimte zijn compleet vernieuwd, zo is er een compleet nieuwe keuken geplaatst en is de badkamer vergroot en vernieuwd.
- Grotendeels voorzien van kunststof kozijnen met dubbel glas en deels voorzien van houten kozijnen met dubbel glas
- Grotendeels voorzien van insectenhorren
- De eetkamer is voorzien van een elektrisch daklicht met regensensor
- De woonkamer, badkamer, kantoorruimte en de slaapkamer zijn voorzien van vloerverwarming
- Airconditioning met verwarmingsfunctie aanwezig in de woon/eetkamer, de werkkamer/slaapkamer en de bovenverdieping
- De woning is voorzien van 13 zonnepanelen
- Cv-ketel (2021)
- Oprit met ruimte voor drie auto’s
- Gelegen op eigen grond
- Bouwjaar 1976
- Energielabel B
- Oplevering in overleg
Deze informatie is door ons met de nodige zorgvuldigheid samengesteld. Prins NVM Makelaars streeft ernaar de informatie op haar website / brochures en andere uitingen zo actueel en nauwkeurig mogelijk weer te geven. Onzerzijds wordt echter geen enkele aansprakelijkheid aanvaard voor enige onvolledigheid, onjuistheid of anderszins, dan wel de gevolgen daarvan.
Move.nl Dossier
Wanneer u bij ons een bezichtiging heeft ingepland, krijgt u toegang tot het Move.nl bezichtigingsdossier van de woning.
Woonoppervlakte
De Meetinstructie is gebaseerd op de NEN2580. De Meetinstructie is bedoeld om een meer eenduidige manier van meten toe te passen voor het geven van een indicatie van de gebruiksoppervlakte. De Meetinstructie sluit verschillen in meetuitkomsten niet volledig uit, door bijvoorbeeld interpretatieverschillen, afrondingen of beperkingen bij het uitvoeren van de meting.
Indien de exacte maten voor een koper van cruciaal belang zijn, adviseren wij deze zelf na te meten. De (kandidaat)koper(s) zullen, indien gewenst, daartoe in de gelegenheid gesteld worden op een passend moment teneinde teleurstellingen en schade te voorkomen.
Ouderdomsclausule
Bij woningen ouder dan 30 jaar zal er standaard in de koopakte een ouderdomsclausule worden opgenomen.
Notariskeuze en kosten
In principe ligt de notariskeuze bij de koper. Het doorhalen van de hypothecaire inschrijving in het kadaster moet door de verkoper betaald worden. Zijn de kosten voor deze doorhaling hoger dan € 400,- inclusief BTW dan wordt het meerdere bij de koper in rekening gebracht. Indien de koper een notaris kiest buiten een straal van 20 kilometer van de verkochte onroerende zaak dan zijn de eventuele kosten die de notaris berekent voor een eventuele verkoopvolmacht en legalisatie hiervan ten behoeve van de verkoper voor rekening van de koper.
Getekende koopovereenkomst
Een mondelinge overeenstemming tussen de particuliere verkoper en de particuliere koper is niet rechtsgeldig. Met andere woorden: er is geen koop. Er is pas sprake van een rechtsgeldige koop als de particuliere verkoper en de particuliere koper de koopovereenkomst hebben ondertekend. Dit vloeit voort uit artikel 7:2 Burgerlijk Wetboek. Een bevestiging van de mondelinge overeenstemming per e-mail of een toegestuurd concept van de koopovereenkomst wordt overigens niet gezien als een ‘ondertekende koopovereenkomst’.
Gunning
Verkoper behoudt zich uitdrukkelijk het recht voor het object te gunnen aan de gegadigde van zijn keuze. Nadrukkelijk zij vermeld dat alle informatie in deze brochure moet beschouwd worden als een uitnodiging tot het doen van een bod of om in onderhandeling te treden. Er kunnen geen rechten worden ontleend aan deze informatie.
INDELING
Vanaf de straat is er een directe toegang tot de bestraatte voortuin, die overloopt in de ruime oprit. In zijn totaliteit biedt dit geheel plaats voor drie auto’s. Aan de gevel hangt een oplaadpunt en vanuit de voortuin is de voordeur bereikbaar.
BEGANE GROND
Na de voordeur is er een binnenkomst in de halfopen entreehal, die in open verbinding staat met de eetkamer en een doorkijk heeft naar de woonkamer. Het plafond is voorzien van inbouw spots en op de gehele begane grond zijn de wanden zijn gestuukt en is de vloer voorzien van PVC.
De eetkamer is inpandig gelegen, maar het elektrische daklicht met regensensor zorgt voor daglichttoetreding. In het verlengde is er een open verbindingsruimte die eveneens beschikt over een daklicht, maar ook is voorzien van de meterkast en airconditioning. Vanuit hier is er toegang tot de tussenhal en er is een open verbinding naar de keuken.
De open keuken is ruim van opzet en beschikt over een recht keukenblok tegen de wand en een vrijstaand eiland. Er is naast voldoende kastruimte ook diverse apparatuur aanwezig, zoals een combi magnetron/oven, een combi oven met stoomfunctie, een vaatwasser, een kookplaat, een afzuigkap, een koelkast, een vriezer en een separaat geplaatste wijnkoeler met twee aparte zones voor temperatuur. Vanuit de keuken is er een grote schuifpui naar de serre en de open trap geeft toegang tot de verdieping. De keuken loopt naar de voorzijde over in de woonkamer, waar voldoende ruimte is voor een gezellige zithoek. Het raam geeft een fijn zicht over de straat en het plafond is voorzien van inbouw spots.
De serre is gebouwd tegen de buitengevel, waarbij het dak is voorzien van glazen panelen met een elektrisch zonnescherm. De glazen schuifdeuren zorgen ervoor dat de serre kan worden afgesloten van buiten, maar dat het zicht over de tuin behouden blijft. Er zijn stopcontacten aanwezig voor elektra en de ondergrond is voorzien van vlonderplanken.
De riante achtertuin is opgedeeld in zones. Zo is er in het verlengde van de serre een groot betegeld terras met een stenen border met beplanting en een houten pergola. Aan de gevel hangt een waterkraantje en er staat een kleine stenen berging. Het achterste gedeelte van de tuin is eveneens voorzien van tegels en is volledig omheind door een houten schutting met een achteruitgang. Er staat een groot verhoogd zwembad, dat rondom met hout is afgewerkt en er ligt een stukje kunstgras. Daarnaast staat er nog een houten schutting met een overkapping, die is voorzien van verlichting en elektra.
De tussenhal geeft toegang tot het volledig betegelde toilet en is de verbinding naar de aansluitende hal, die toegang geeft tot de werk/slaapkamer, de badkamer, het tweede toilet en de inpandige berging met de wasmachine aansluiting.
De werk/slaapkamer is doormiddel van houten schuifdeuren opgedeeld in twee ruimtes. Zo is het slaapgedeelte fijn gescheiden van de werkkamer. Er is een inloopkast aanwezig en de openslaande deuren geven toegang tot de tuin.
De luxe badkamer is volledig betegeld en uitgerust met een vrijstaand bad, een inloopdouche en een wastafelmeubel dat is voorzien van twee waskommen met daarboven een spiegel met verlichting. Het plafond is voorzien van inbouw spots en er is een groot te openen raam aanwezig.
1E VERDIEPING
Na de trapopgang is de overloop bereikbaar. Deze biedt voldoende ruimte voor het plaatsen van een extra bed en een bureau en er hangt airconditioning. Vanaf de overloop is er toegang tot de tweede slaapkamer en de berging onder de schuine kap. Ook op deze verdieping zijn de wanden gestuukt en ligt er een PVC vloer.
De tweede slaapkamer is gelegen aan de achterzijde is voorzien van een trap naar de open vliering met verlichting en elektra. Een wand is hier behangen en het plafond is voorzien van inbouw spots.
De handige extra berging onder de schuine kap is voorzien van verlichting en kan handige gebruikt worden voor het opbergen van spullen, maar ook als hobbyruimte. In deze ruimte hangt tevens de opstelling van de Cv-ketel.
BIJZONDERHEDEN
- De woning is in 2020 intern geheel gestript en opnieuw ingedeeld en opgebouwd. Alle ruimte zijn compleet vernieuwd, zo is er een compleet nieuwe keuken geplaatst en is de badkamer vergroot en vernieuwd.
- Grotendeels voorzien van kunststof kozijnen met dubbel glas en deels voorzien van houten kozijnen met dubbel glas
- Grotendeels voorzien van insectenhorren
- De eetkamer is voorzien van een elektrisch daklicht met regensensor
- De woonkamer, badkamer, kantoorruimte en de slaapkamer zijn voorzien van vloerverwarming
- Airconditioning met verwarmingsfunctie aanwezig in de woon/eetkamer, de werkkamer/slaapkamer en de bovenverdieping
- De woning is voorzien van 13 zonnepanelen
- Cv-ketel (2021)
- Oprit met ruimte voor drie auto’s
- Gelegen op eigen grond
- Bouwjaar 1976
- Energielabel B
- Oplevering in overleg
Deze informatie is door ons met de nodige zorgvuldigheid samengesteld. Prins NVM Makelaars streeft ernaar de informatie op haar website / brochures en andere uitingen zo actueel en nauwkeurig mogelijk weer te geven. Onzerzijds wordt echter geen enkele aansprakelijkheid aanvaard voor enige onvolledigheid, onjuistheid of anderszins, dan wel de gevolgen daarvan.
Move.nl Dossier
Wanneer u bij ons een bezichtiging heeft ingepland, krijgt u toegang tot het Move.nl bezichtigingsdossier van de woning.
Woonoppervlakte
De Meetinstructie is gebaseerd op de NEN2580. De Meetinstructie is bedoeld om een meer eenduidige manier van meten toe te passen voor het geven van een indicatie van de gebruiksoppervlakte. De Meetinstructie sluit verschillen in meetuitkomsten niet volledig uit, door bijvoorbeeld interpretatieverschillen, afrondingen of beperkingen bij het uitvoeren van de meting.
Indien de exacte maten voor een koper van cruciaal belang zijn, adviseren wij deze zelf na te meten. De (kandidaat)koper(s) zullen, indien gewenst, daartoe in de gelegenheid gesteld worden op een passend moment teneinde teleurstellingen en schade te voorkomen.
Ouderdomsclausule
Bij woningen ouder dan 30 jaar zal er standaard in de koopakte een ouderdomsclausule worden opgenomen.
Notariskeuze en kosten
In principe ligt de notariskeuze bij de koper. Het doorhalen van de hypothecaire inschrijving in het kadaster moet door de verkoper betaald worden. Zijn de kosten voor deze doorhaling hoger dan € 400,- inclusief BTW dan wordt het meerdere bij de koper in rekening gebracht. Indien de koper een notaris kiest buiten een straal van 20 kilometer van de verkochte onroerende zaak dan zijn de eventuele kosten die de notaris berekent voor een eventuele verkoopvolmacht en legalisatie hiervan ten behoeve van de verkoper voor rekening van de koper.
Getekende koopovereenkomst
Een mondelinge overeenstemming tussen de particuliere verkoper en de particuliere koper is niet rechtsgeldig. Met andere woorden: er is geen koop. Er is pas sprake van een rechtsgeldige koop als de particuliere verkoper en de particuliere koper de koopovereenkomst hebben ondertekend. Dit vloeit voort uit artikel 7:2 Burgerlijk Wetboek. Een bevestiging van de mondelinge overeenstemming per e-mail of een toegestuurd concept van de koopovereenkomst wordt overigens niet gezien als een ‘ondertekende koopovereenkomst’.
Gunning
Verkoper behoudt zich uitdrukkelijk het recht voor het object te gunnen aan de gegadigde van zijn keuze. Nadrukkelijk zij vermeld dat alle informatie in deze brochure moet beschouwd worden als een uitnodiging tot het doen van een bod of om in onderhandeling te treden. Er kunnen geen rechten worden ontleend aan deze informatie.
Kenmerken
Overdracht
- vraagprijs
- € 679.000 k.k.
- Status
- Beschikbaar
- Aanvaarding
- In overleg
Bouw
- Soort woning
- Bungalow, hoekwoning, patiowoning
- Soort bouw
- Bestaande bouw
Oppervlakten en inhoud
- Woonoppervlakte
- 151 m²
- Externe bergruimte
- 11 m²
- Perceel
- 377 m²
- Inhoud
- 519 m³
Indeling
- Aantal kamers
- 6 kamers (3 slaapkamers)
- Aantal verdiepingen
- 2 Verdiepingen
- Voorzieningen
- Buitenzonwering, frans balkon, dakraam, schuifpui, airconditioning, zwembad
Energie
- Energielabel
- Niet beschikbaar
- Isolatie
- Dakisolatie, muurisolatie, vloerisolatie, dubbel glas
Buitenruimte
- Ligging
- In woonwijk
- Tuin
- Achtertuin, voortuin
- Achtertuin
- 165 m² (0,18m Diep / 0,16m Breed)
- Ligging tuin
- Zuidwest
Garage
- Soort garage
- Parkeerplaats, geen garage