Zure Vischsteeg 48
€ 595.000 k.k.
Maassluis
Eengezinswoning
195 m²
3 slaapkamers
In overleg
Wonen, werken of zorgen? Alles komt hier op een heerlijke manier samen. U beschikt over een luxe hoeveelheid woonruimte, maar ook een forse bedrijfsruimte beneden behoort tot de mogelijkheden. Dit multifunctionele pand ligt verscholen in een van de gezelligste stukjes van Maassluis. Dankzij kunststof kozijnen met HR++ glas (2019) en maar liefst 25 zonnepanelen is het wooncomfort niet alleen hoog, maar ook duurzaam.
Stap naar buiten en je staat zó bij de winkels, horeca, het Stadshart en de mooie wandelroutes langs het water. Alles is binnen handbereik, maar toch woon je hier verrassend rustig en intiem. Dankzij de veelzijdige indeling biedt dit pand eindeloos veel mogelijkheden. Een fijne mantelzorgsituatie, bedrijf aan huis of juist royaal wonen met meerdere leefruimtes. Op de begane grond vind je onder andere een grote woonkamer, een aparte kamer met en-suite badkamer, een toilet met voorportaal en directe toegang tot de eigen garage met elektra, verwarming en een handbedienbare garagedeur. De begane grond is ook zeer geschikt als hobby ruimte voor bijvoorbeeld het stallen en knutselen aan oldtimers. Uiteraard is de ruimte ook zeer geschikt om andere hobby's uit te oefenen.
De kleine zijtuin met groene beplanting vormt een charmant buitenplekje dat de begane grond extra aantrekkelijk maakt. Op de verdieping wacht een volwaardige woonlaag met een ruime woonkamer die doorloopt van voor tot achter, voorzien van een parketvloer en een airco die zowel kan koelen als verwarmen. De keuken met bar is uitgerust met diverse apparatuur, waaronder een magnetron, oven, koel-vriescombinatie, gaskookplaat, afzuigkap en een vernieuwde vaatwasser uit 2023. Vanuit hier stap je het deels overdekte balkon op, een fijne en beschutte plek voor een kop koffie. Verder vind je op deze verdieping twee slaapkamers, een tweede badkamer met ligbad én douchecabine, een separaat toilet en een praktische wasruimte met CV-opstelling. Een unieke kans op een woning waar flexibiliteit en woongenot hand in hand gaan, midden in een geliefde omgeving waar het elke dag fijn thuiskomen is.
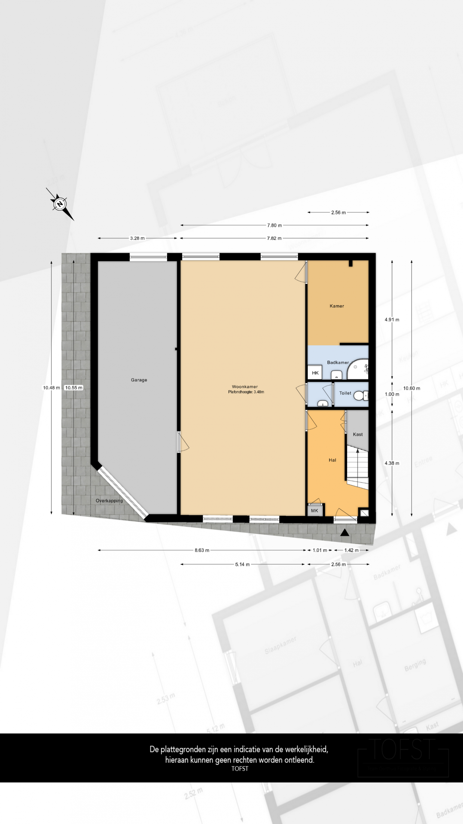
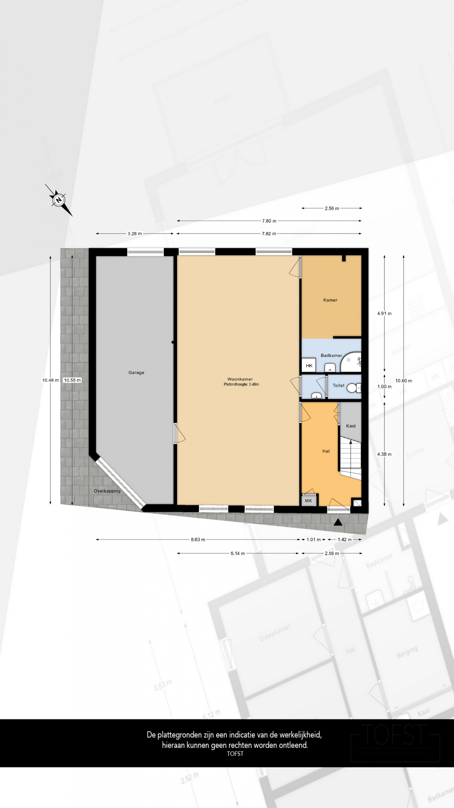
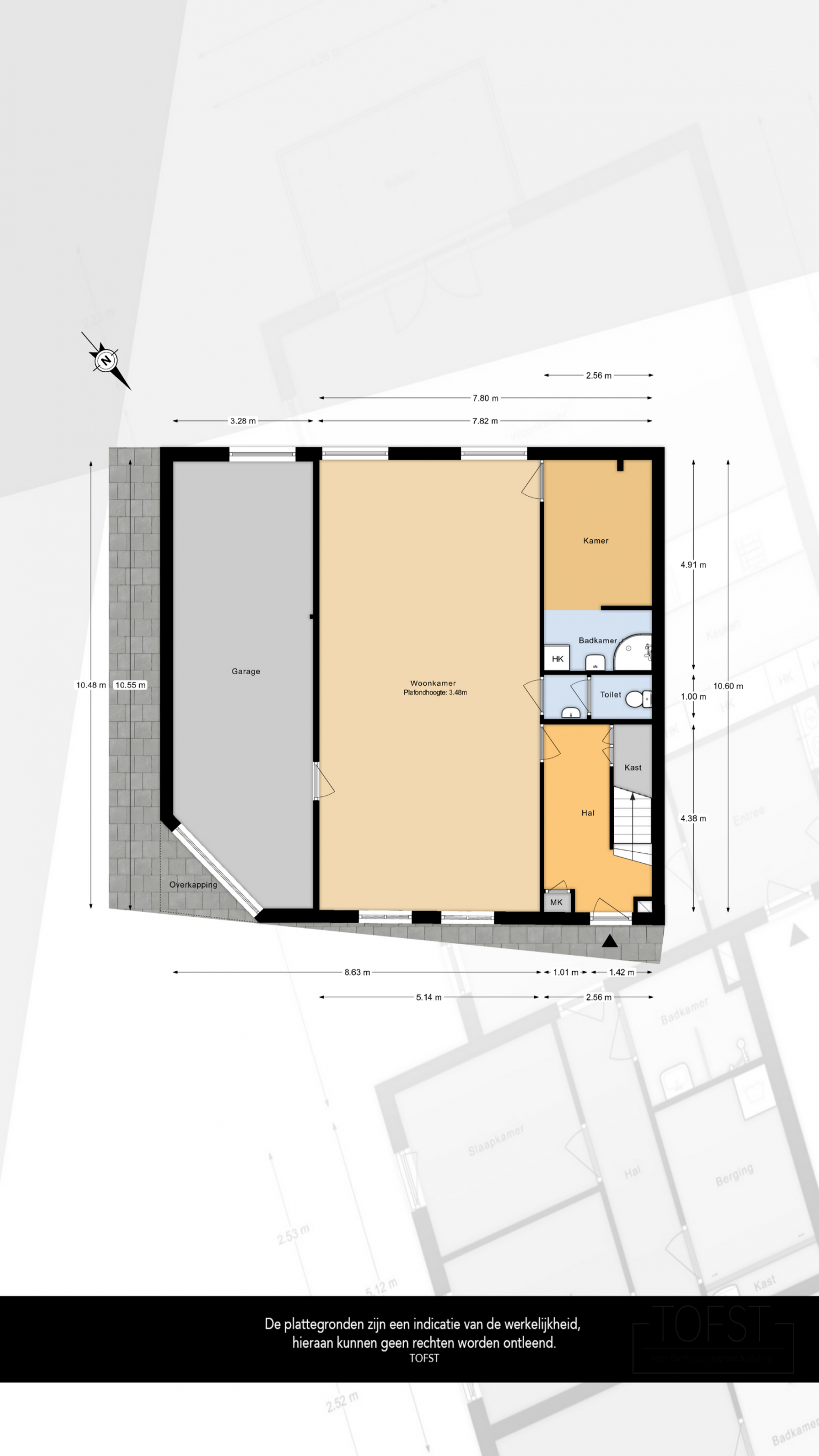
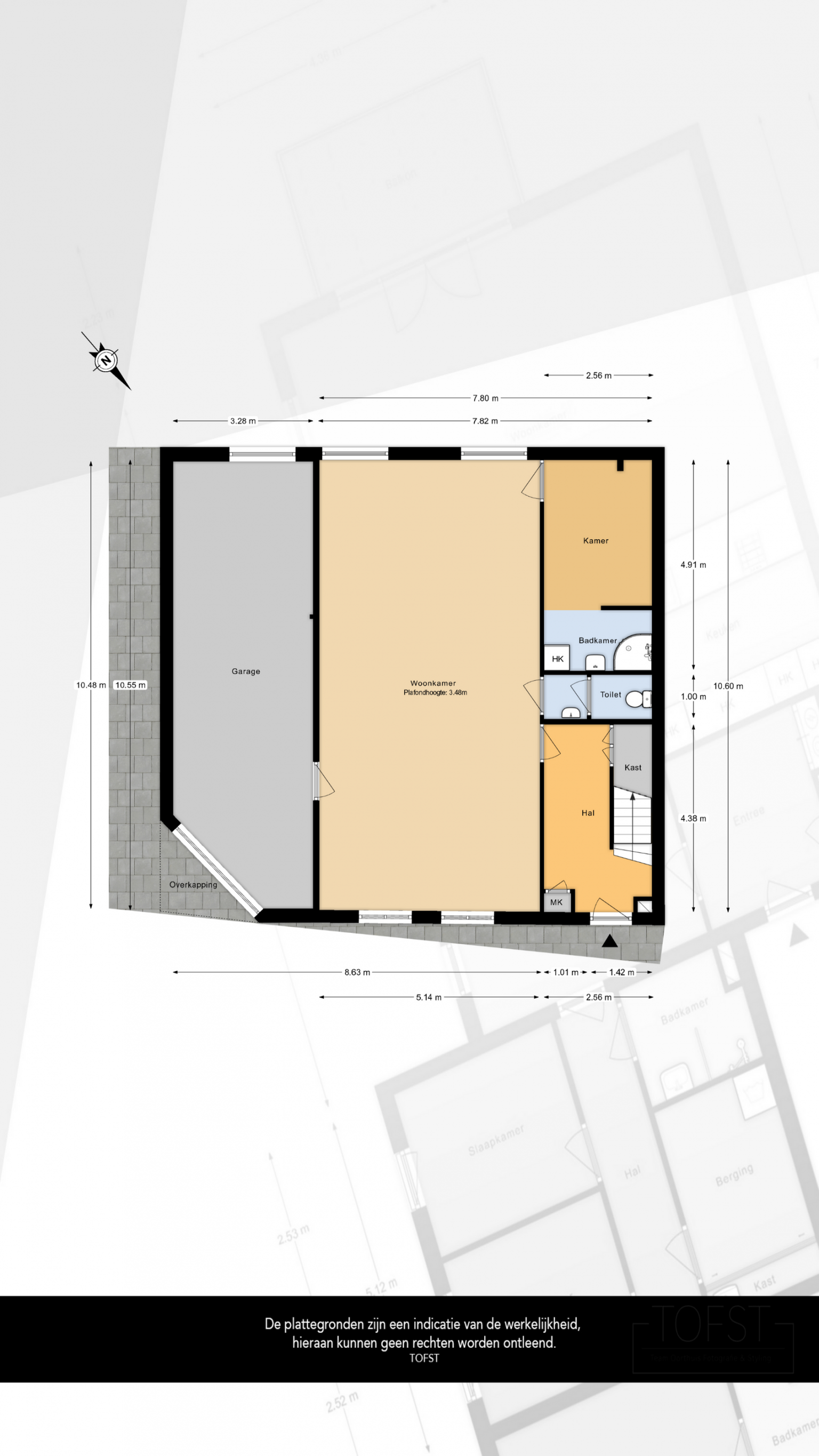
BEGANE GROND
De voordeur is direct vanaf de straat bereikbaar en geeft toegang tot de entreehal die is voorzien van de meterkast, een trapkast en de trap naar de verdieping. Vanuit de hal is er een deur naar de woonkamer en op de vloer in de hal ligt laminaat en de wanden zijn afgewerkt met glasweefselbehang.
De woonkamer is een grote ruimte die eventueel naar wens te gebruiken is als bedrijfsruimte, het is eenvoudig zelfs de garage hierbij te betrekken. De ruimte is anderzijds ook gemakkelijk op te delen voor het creëren van extra kamers. Er is verwarming aanwezig en aan weerszijden zijn ramen aanwezig voor daglichttoetreding. Op de vloer ligt laminaat en de wanden zijn deels behangen. Vanuit de woonkamer is er toegang tot een aparte kamer, de garage en het toilet, dat handig is voorzien van een voorportaal met een fonteintje.
De kamer is gelegen aan de achterzijde en beschikt over een en-suite badkamer. Deze kamer is momenteel ingericht als slaapkamer en beschikt over verwarming. Op de vloer ligt vloerbedekking en de wanden zijn glad afgewerkt.
De badkamer is deels betegeld en uitgerust met een douchecabine en een wastafel. Daarnaast hangt er een elektrische handdoeken radiator, is er een close-in boiler aanwezig en staat er een hoge kast met een inbouw koelkast.
De aangrenzende garage beschikt over elektra, verwarming en een handbedienbare garagedeur.
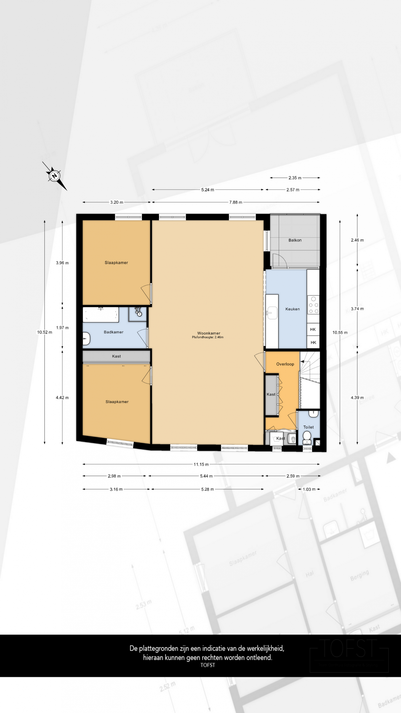
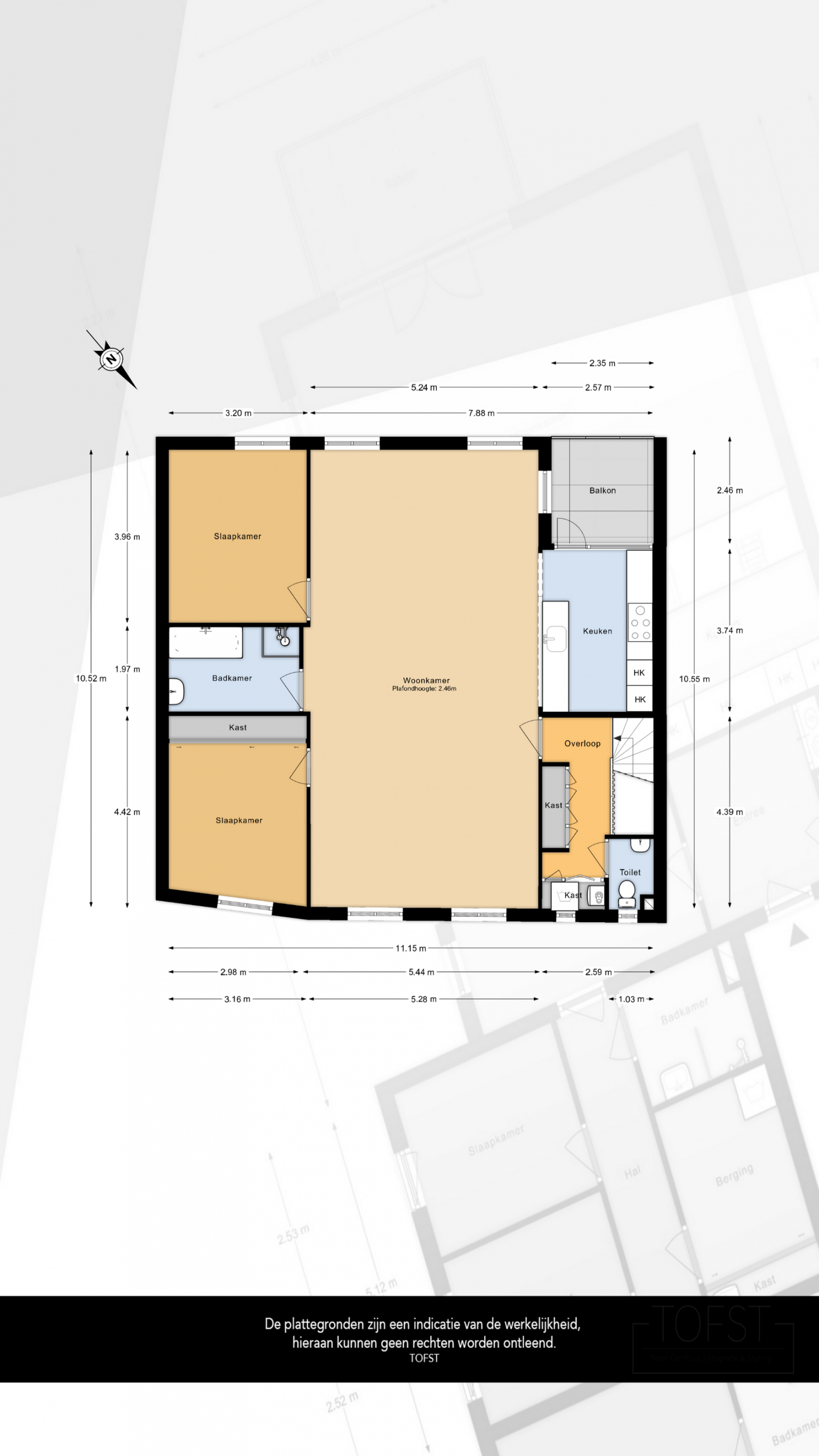
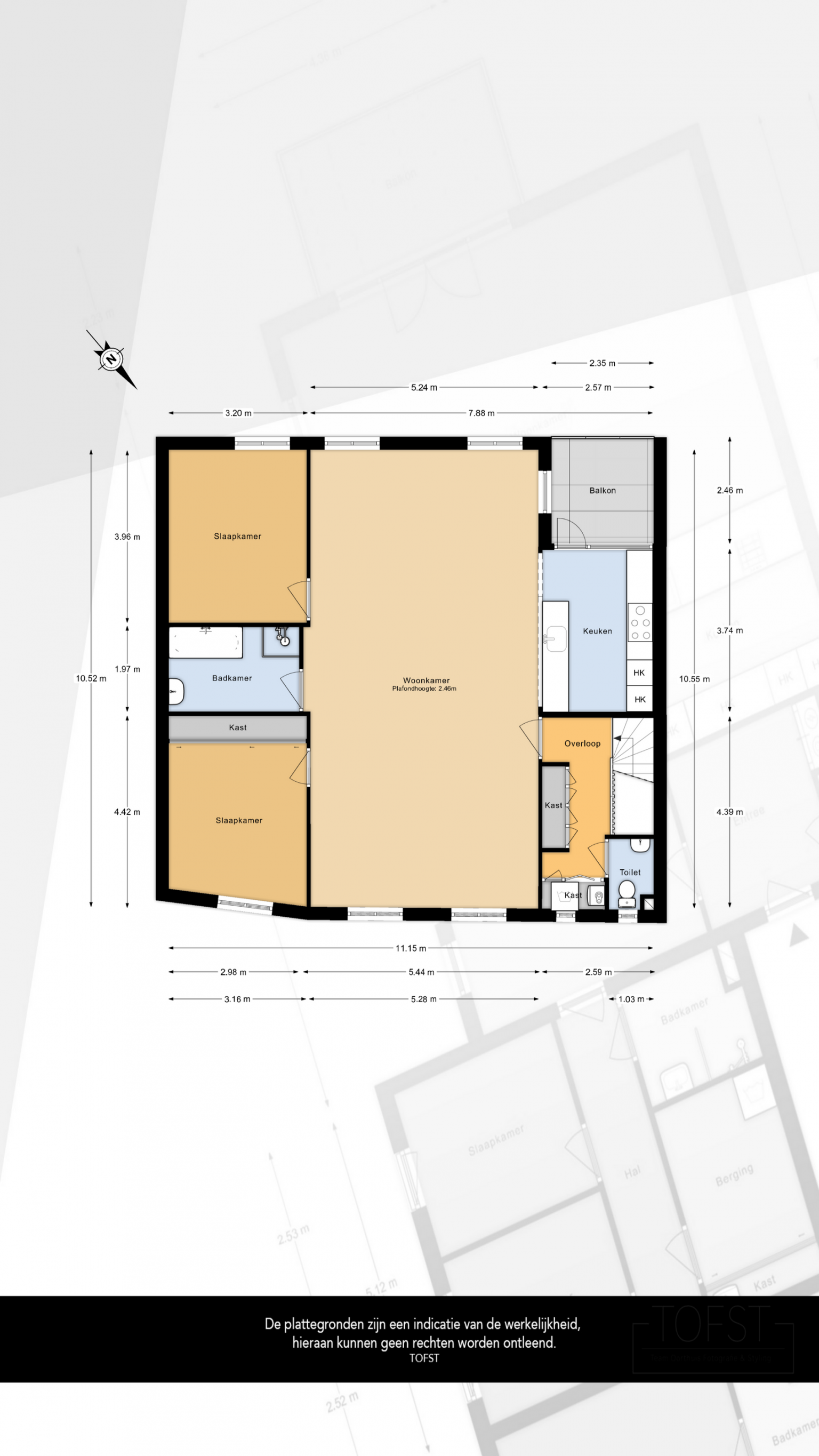
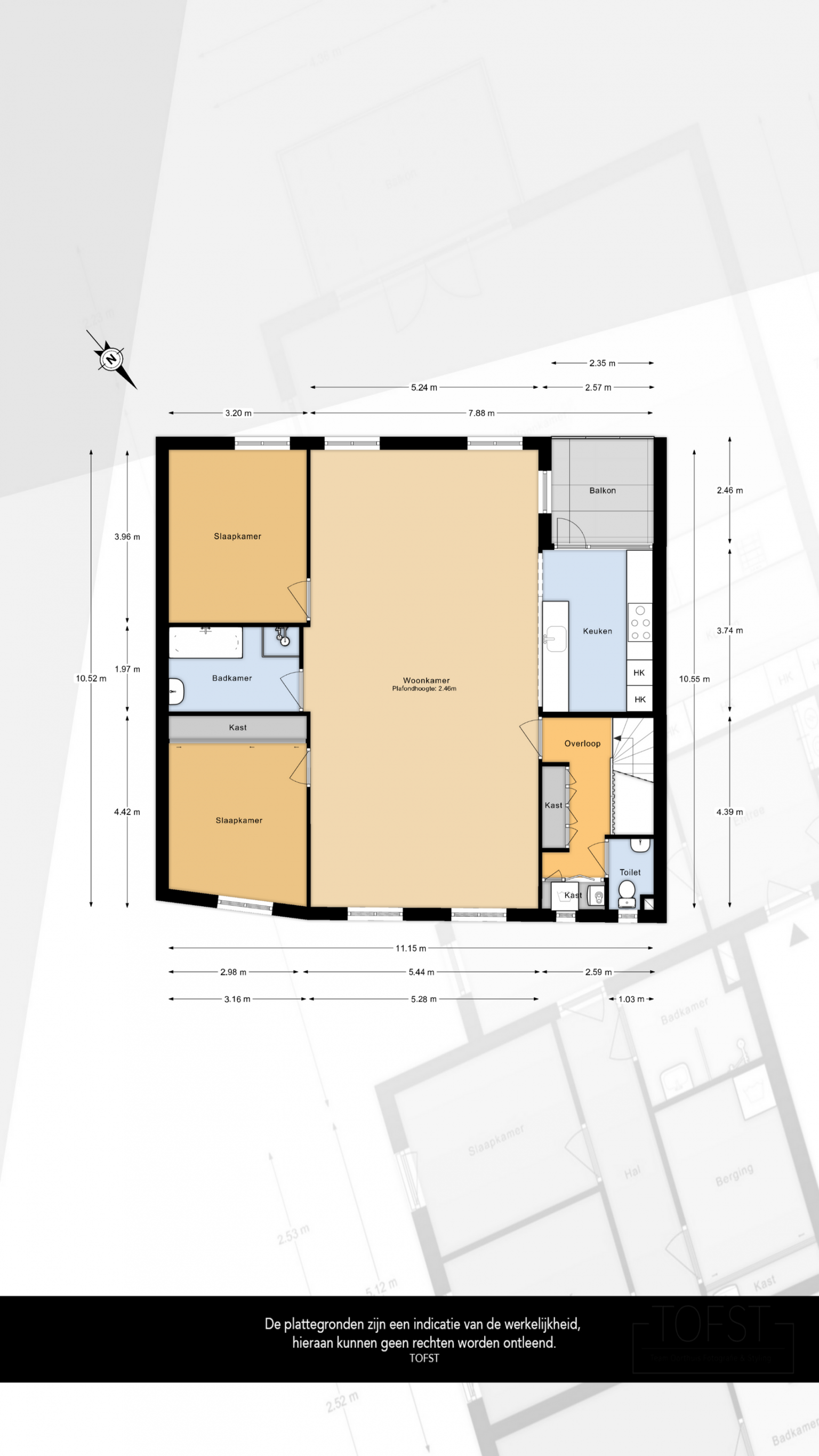
1E VERDIEPING
Na de trapopgang is de overloop bereikbaar. Hier bevindt zich een grote vaste kast en aparte ruimte, die is gescheiden doormiddel van een louvredeur, met daarin de aansluiting voor de wasmachine en de opstelling van de Cv-ketel. Daarnaast is er vanaf de overloop toegang tot de woonkamer het gedeeltelijk betegelde toilet.
De ruime woonkamer loopt geheel van de voorzijde naar de achterzijde en biedt daardoor voldoende ruimte voor een zithoek en een eethoek. Er komt veel daglicht binnen dankzij de ramen aan weerszijden en er hangt een airco die kan koelen en verwarmen. Op de vloer ligt parket en de wanden zijn deels behangen en deels gestuukt. Vanuit de woonkamer is er een open verbinding met de keuken en er is toegang tot twee slaapkamers en de badkamer.
De keuken is doormiddel van een bar gescheiden van de woonkamer en beschikt aan weerszijde over een recht keukenblok. Naast bovenkasten is er ook diverse apparatuur aanwezig, zoals een magnetron, een oven, een vaatwasser (2023), een koel-/vriescombinatie, een gaskookplaat en een afzuigkap. De vloer is hier betegeld en er is een deur naar het balkon.
Het balkon is beschut gelegen en deels overdekt, de ondergrond is bedekt met tegels.
De eerste slaapkamer is gelegen aan de voorzijde beschikt over een grote vaste kast met schuifdeuren. Op de vloer ligt laminaat en de wanden zijn deels behangen en deels gestuukt. De tweede slaapkamer is gelegen aan de achterzijde en heeft aan de gevel een handbedienbaar uitvalscherm. Op de vloer ligt laminaat en de wanden zijn gestuukt.
De inpandige badkamer is grotendeels betegeld en uitgerust met een ligbad, een douchecabine, een wastafelmeubel en verwarming.
BIJZONDERHEDEN
- Grotendeels voorzien van kunststof kozijnen met HR glas (2019) en deels voorzien van houten kozijnen met dubbel glas
- Meterkast met 11 groepen en 3 aardlekschakelaars
- Eigen garage met elektra, verlichting en verwarming
- Kleine zijtuin met beplanting
- Multifunctioneel pand
- Woonkamer voorzien van airco die kan koelen en verwarmen
- 25 zonnepanelen
- Cv-ketel (13,5 jaar oud)
- Gelegen op eigen grond
- Bouwjaar 1997
- Energielabel A
- Oplevering in overleg
Deze informatie is door ons met de nodige zorgvuldigheid samengesteld. Prins NVM Makelaars streeft ernaar de informatie op haar website / brochures en andere uitingen zo actueel en nauwkeurig mogelijk weer te geven. Onzerzijds wordt echter geen enkele aansprakelijkheid aanvaard voor enige onvolledigheid, onjuistheid of anderszins, dan wel de gevolgen daarvan
Move.nl Dossier
Wanneer u bij ons een bezichtiging heeft ingepland, krijgt u toegang tot het Move.nl bezichtigingsdossier van de woning.
Woonoppervlakte
De Meetinstructie is gebaseerd op de NEN2580. De Meetinstructie is bedoeld om een meer eenduidige manier van meten toe te passen voor het geven van een indicatie van de gebruiksoppervlakte. De Meetinstructie sluit verschillen in meetuitkomsten niet volledig uit, door bijvoorbeeld interpretatieverschillen, afrondingen of beperkingen bij het uitvoeren van de meting.
Indien de exacte maten voor een koper van cruciaal belang zijn, adviseren wij deze zelf na te meten. De (kandidaat)koper(s) zullen, indien gewenst, daartoe in de gelegenheid gesteld worden op een passend moment teneinde teleurstellingen en schade te voorkomen.
Ouderdomsclausule
Bij woningen ouder dan 30 jaar zal er standaard in de koopakte een ouderdomsclausule worden opgenomen.
Notariskeuze en kosten
In principe ligt de notariskeuze bij de koper. Het doorhalen van de hypothecaire inschrijving in het kadaster moet door de verkoper betaald worden. Zijn de kosten voor deze doorhaling hoger dan € 400,- inclusief BTW dan wordt het meerdere bij de koper in rekening gebracht. Indien de koper een notaris kiest buiten een straal van 20 kilometer van de verkochte onroerende zaak dan zijn de eventuele kosten die de notaris berekent voor een eventuele verkoopvolmacht en legalisatie hiervan ten behoeve van de verkoper voor rekening van de koper.
Getekende koopovereenkomst
Een mondelinge overeenstemming tussen de particuliere verkoper en de particuliere koper is niet rechtsgeldig. Met andere woorden: er is geen koop. Er is pas sprake van een rechtsgeldige koop als de particuliere verkoper en de particuliere koper de koopovereenkomst hebben ondertekend. Dit vloeit voort uit artikel 7:2 Burgerlijk Wetboek. Een bevestiging van de mondelinge overeenstemming per e-mail of een toegestuurd concept van de koopovereenkomst wordt overigens niet gezien als een ‘ondertekende koopovereenkomst’.
Gunning
Verkoper behoudt zich uitdrukkelijk het recht voor het object te gunnen aan de gegadigde van zijn keuze. Nadrukkelijk zij vermeld dat alle informatie in deze brochure moet beschouwd worden als een uitnodiging tot het doen van een bod of om in onderhandeling te treden. Er kunnen geen rechten worden ontleend aan deze informatie.
Stap naar buiten en je staat zó bij de winkels, horeca, het Stadshart en de mooie wandelroutes langs het water. Alles is binnen handbereik, maar toch woon je hier verrassend rustig en intiem. Dankzij de veelzijdige indeling biedt dit pand eindeloos veel mogelijkheden. Een fijne mantelzorgsituatie, bedrijf aan huis of juist royaal wonen met meerdere leefruimtes. Op de begane grond vind je onder andere een grote woonkamer, een aparte kamer met en-suite badkamer, een toilet met voorportaal en directe toegang tot de eigen garage met elektra, verwarming en een handbedienbare garagedeur. De begane grond is ook zeer geschikt als hobby ruimte voor bijvoorbeeld het stallen en knutselen aan oldtimers. Uiteraard is de ruimte ook zeer geschikt om andere hobby's uit te oefenen.
De kleine zijtuin met groene beplanting vormt een charmant buitenplekje dat de begane grond extra aantrekkelijk maakt. Op de verdieping wacht een volwaardige woonlaag met een ruime woonkamer die doorloopt van voor tot achter, voorzien van een parketvloer en een airco die zowel kan koelen als verwarmen. De keuken met bar is uitgerust met diverse apparatuur, waaronder een magnetron, oven, koel-vriescombinatie, gaskookplaat, afzuigkap en een vernieuwde vaatwasser uit 2023. Vanuit hier stap je het deels overdekte balkon op, een fijne en beschutte plek voor een kop koffie. Verder vind je op deze verdieping twee slaapkamers, een tweede badkamer met ligbad én douchecabine, een separaat toilet en een praktische wasruimte met CV-opstelling. Een unieke kans op een woning waar flexibiliteit en woongenot hand in hand gaan, midden in een geliefde omgeving waar het elke dag fijn thuiskomen is.
BEGANE GROND
De voordeur is direct vanaf de straat bereikbaar en geeft toegang tot de entreehal die is voorzien van de meterkast, een trapkast en de trap naar de verdieping. Vanuit de hal is er een deur naar de woonkamer en op de vloer in de hal ligt laminaat en de wanden zijn afgewerkt met glasweefselbehang.
De woonkamer is een grote ruimte die eventueel naar wens te gebruiken is als bedrijfsruimte, het is eenvoudig zelfs de garage hierbij te betrekken. De ruimte is anderzijds ook gemakkelijk op te delen voor het creëren van extra kamers. Er is verwarming aanwezig en aan weerszijden zijn ramen aanwezig voor daglichttoetreding. Op de vloer ligt laminaat en de wanden zijn deels behangen. Vanuit de woonkamer is er toegang tot een aparte kamer, de garage en het toilet, dat handig is voorzien van een voorportaal met een fonteintje.
De kamer is gelegen aan de achterzijde en beschikt over een en-suite badkamer. Deze kamer is momenteel ingericht als slaapkamer en beschikt over verwarming. Op de vloer ligt vloerbedekking en de wanden zijn glad afgewerkt.
De badkamer is deels betegeld en uitgerust met een douchecabine en een wastafel. Daarnaast hangt er een elektrische handdoeken radiator, is er een close-in boiler aanwezig en staat er een hoge kast met een inbouw koelkast.
De aangrenzende garage beschikt over elektra, verwarming en een handbedienbare garagedeur.
1E VERDIEPING
Na de trapopgang is de overloop bereikbaar. Hier bevindt zich een grote vaste kast en aparte ruimte, die is gescheiden doormiddel van een louvredeur, met daarin de aansluiting voor de wasmachine en de opstelling van de Cv-ketel. Daarnaast is er vanaf de overloop toegang tot de woonkamer het gedeeltelijk betegelde toilet.
De ruime woonkamer loopt geheel van de voorzijde naar de achterzijde en biedt daardoor voldoende ruimte voor een zithoek en een eethoek. Er komt veel daglicht binnen dankzij de ramen aan weerszijden en er hangt een airco die kan koelen en verwarmen. Op de vloer ligt parket en de wanden zijn deels behangen en deels gestuukt. Vanuit de woonkamer is er een open verbinding met de keuken en er is toegang tot twee slaapkamers en de badkamer.
De keuken is doormiddel van een bar gescheiden van de woonkamer en beschikt aan weerszijde over een recht keukenblok. Naast bovenkasten is er ook diverse apparatuur aanwezig, zoals een magnetron, een oven, een vaatwasser (2023), een koel-/vriescombinatie, een gaskookplaat en een afzuigkap. De vloer is hier betegeld en er is een deur naar het balkon.
Het balkon is beschut gelegen en deels overdekt, de ondergrond is bedekt met tegels.
De eerste slaapkamer is gelegen aan de voorzijde beschikt over een grote vaste kast met schuifdeuren. Op de vloer ligt laminaat en de wanden zijn deels behangen en deels gestuukt. De tweede slaapkamer is gelegen aan de achterzijde en heeft aan de gevel een handbedienbaar uitvalscherm. Op de vloer ligt laminaat en de wanden zijn gestuukt.
De inpandige badkamer is grotendeels betegeld en uitgerust met een ligbad, een douchecabine, een wastafelmeubel en verwarming.
BIJZONDERHEDEN
- Grotendeels voorzien van kunststof kozijnen met HR glas (2019) en deels voorzien van houten kozijnen met dubbel glas
- Meterkast met 11 groepen en 3 aardlekschakelaars
- Eigen garage met elektra, verlichting en verwarming
- Kleine zijtuin met beplanting
- Multifunctioneel pand
- Woonkamer voorzien van airco die kan koelen en verwarmen
- 25 zonnepanelen
- Cv-ketel (13,5 jaar oud)
- Gelegen op eigen grond
- Bouwjaar 1997
- Energielabel A
- Oplevering in overleg
Deze informatie is door ons met de nodige zorgvuldigheid samengesteld. Prins NVM Makelaars streeft ernaar de informatie op haar website / brochures en andere uitingen zo actueel en nauwkeurig mogelijk weer te geven. Onzerzijds wordt echter geen enkele aansprakelijkheid aanvaard voor enige onvolledigheid, onjuistheid of anderszins, dan wel de gevolgen daarvan
Move.nl Dossier
Wanneer u bij ons een bezichtiging heeft ingepland, krijgt u toegang tot het Move.nl bezichtigingsdossier van de woning.
Woonoppervlakte
De Meetinstructie is gebaseerd op de NEN2580. De Meetinstructie is bedoeld om een meer eenduidige manier van meten toe te passen voor het geven van een indicatie van de gebruiksoppervlakte. De Meetinstructie sluit verschillen in meetuitkomsten niet volledig uit, door bijvoorbeeld interpretatieverschillen, afrondingen of beperkingen bij het uitvoeren van de meting.
Indien de exacte maten voor een koper van cruciaal belang zijn, adviseren wij deze zelf na te meten. De (kandidaat)koper(s) zullen, indien gewenst, daartoe in de gelegenheid gesteld worden op een passend moment teneinde teleurstellingen en schade te voorkomen.
Ouderdomsclausule
Bij woningen ouder dan 30 jaar zal er standaard in de koopakte een ouderdomsclausule worden opgenomen.
Notariskeuze en kosten
In principe ligt de notariskeuze bij de koper. Het doorhalen van de hypothecaire inschrijving in het kadaster moet door de verkoper betaald worden. Zijn de kosten voor deze doorhaling hoger dan € 400,- inclusief BTW dan wordt het meerdere bij de koper in rekening gebracht. Indien de koper een notaris kiest buiten een straal van 20 kilometer van de verkochte onroerende zaak dan zijn de eventuele kosten die de notaris berekent voor een eventuele verkoopvolmacht en legalisatie hiervan ten behoeve van de verkoper voor rekening van de koper.
Getekende koopovereenkomst
Een mondelinge overeenstemming tussen de particuliere verkoper en de particuliere koper is niet rechtsgeldig. Met andere woorden: er is geen koop. Er is pas sprake van een rechtsgeldige koop als de particuliere verkoper en de particuliere koper de koopovereenkomst hebben ondertekend. Dit vloeit voort uit artikel 7:2 Burgerlijk Wetboek. Een bevestiging van de mondelinge overeenstemming per e-mail of een toegestuurd concept van de koopovereenkomst wordt overigens niet gezien als een ‘ondertekende koopovereenkomst’.
Gunning
Verkoper behoudt zich uitdrukkelijk het recht voor het object te gunnen aan de gegadigde van zijn keuze. Nadrukkelijk zij vermeld dat alle informatie in deze brochure moet beschouwd worden als een uitnodiging tot het doen van een bod of om in onderhandeling te treden. Er kunnen geen rechten worden ontleend aan deze informatie.
Kenmerken
Overdracht
- vraagprijs
- € 595.000 k.k.
- Status
- Beschikbaar
- Aanvaarding
- In overleg
Bouw
- Soort woning
- Eengezinswoning, hoekwoning
- Soort bouw
- Bestaande bouw
Oppervlakten en inhoud
- Woonoppervlakte
- 195 m²
- Perceel
- 153 m²
- Inhoud
- 840 m³
Indeling
- Aantal kamers
- 5 kamers (3 slaapkamers)
- Aantal verdiepingen
- 2 Verdiepingen
- Voorzieningen
- Buitenzonwering, tv kabel, airconditioning
Energie
- Energielabel
- A
- Isolatie
- Dakisolatie, dubbel glas
Buitenruimte
- Ligging
- Aan rustige weg, in centrum, in woonwijk
- Tuin
- Geen tuin
Garage
- Soort garage
- Inpandig
- Capaciteit
- 1 Auto
- Voorzieningen
- Voorzien van verwarming, voorzien van elektra
Parkeren
- Soort parkeergelegenheid
- Openbaar parkeren