Noordvliet 44 ZW
€ 650.000 k.k.
Maassluis
Benedenwoning
142 m²
3 slaapkamers
Noord
In overleg
Wonen aan de Noordvliet betekent genieten van de levendigheid van het oude stadshart, met haar charmante winkels, gezellige terrassen en het water letterlijk voor de deur. Hier proef je de sfeer van vroeger, maar dan in een woning die helemaal van nu is. Deze dubbele benedenwoning is namelijk compleet verbouwd tot een moderne, energiezuinige parel met een warmtepomp, vloerverwarming, airconditioning in meerdere ruimtes en een sfeervolle houtkachel voor de koudere dagen. De afwerking is tot in de puntjes verzorgd. Strakke gestuukte wanden, een stijlvolle PVC-visgraatvloer, inbouwspots en een schitterende keuken met een eiland, marmerlook blad en alle denkbare inbouwapparatuur, waaronder een Quooker, oven, combi-oven met stoomfunctie, koelkast, vriezer, vaatwasser en kookplaat met geïntegreerde afzuiging. De badkamer is een ware spa, met dubbele waskommen, een ruime inloopdouche met regendouche, in de wand verwerkte kranen en gouden accenten. De woning beschikt over twee comfortabele slaapkamers, waarvan één met openslaande deuren naar de tuin en vaste kasten, een praktische kastenkamer met wasruimte én een kelder met de opstelling van de warmtepomp en de Cv-ketel. De zonnige, onderhoudsvrije achtertuin met grote overkapping en vlonderterras vormt de perfecte afsluiting van deze complete woning. Of je nu geniet van het uitzicht over de Vliet, een wandeling maakt door het historische centrum of een hapje gaat eten om de hoek, hier woon je op een plek waar alles klopt. Deze woning is helemaal af, energievriendelijk en zó te betrekken. Wie eenmaal binnen is, wil nooit meer weg!
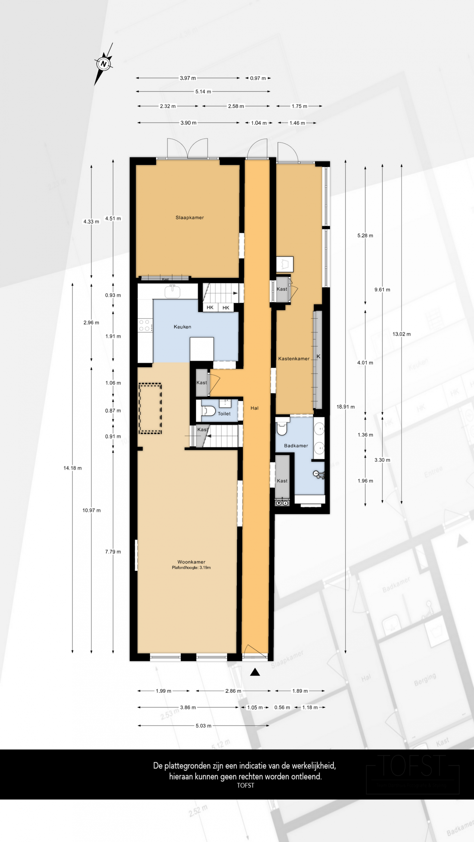
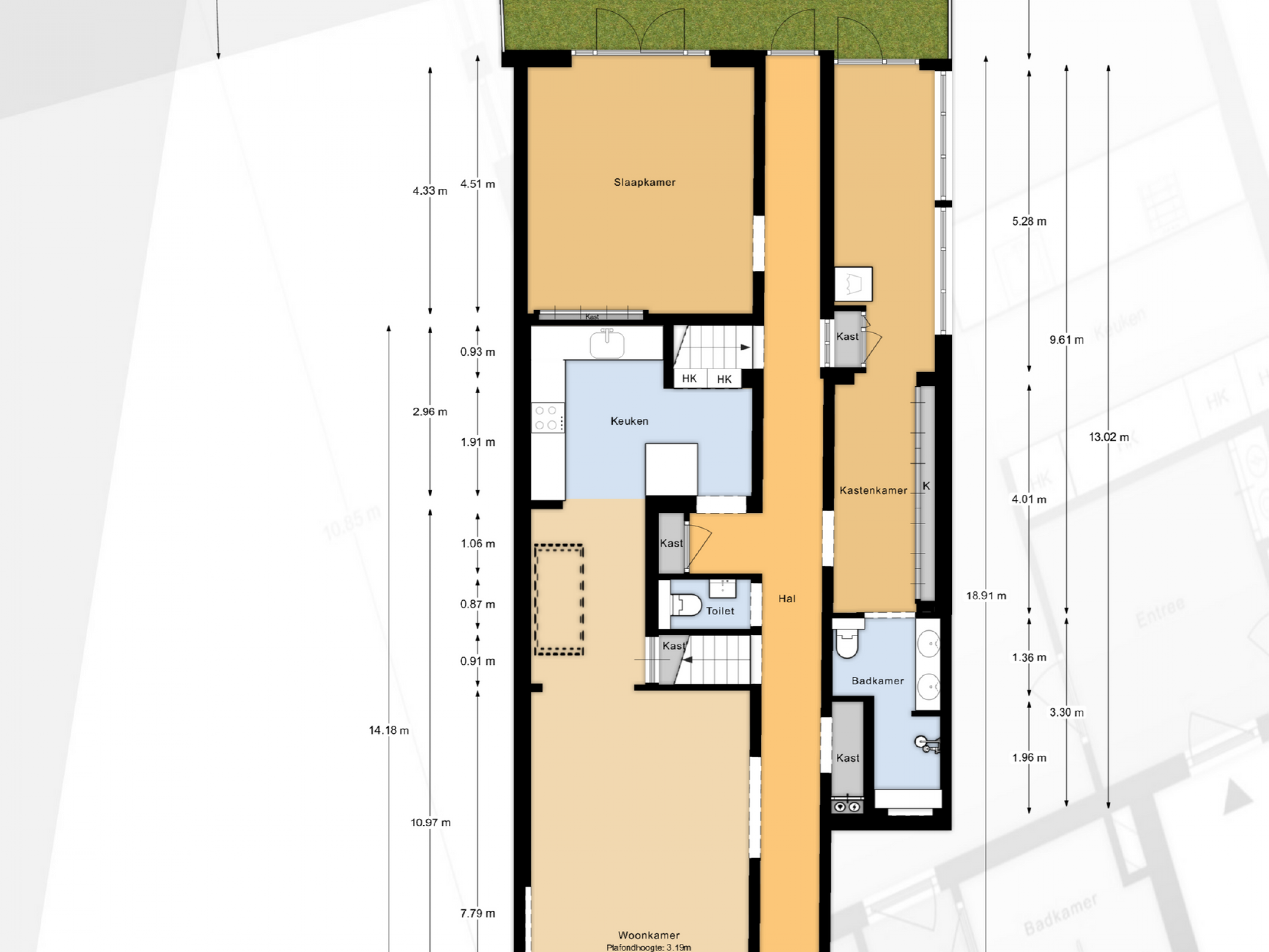
INDELING
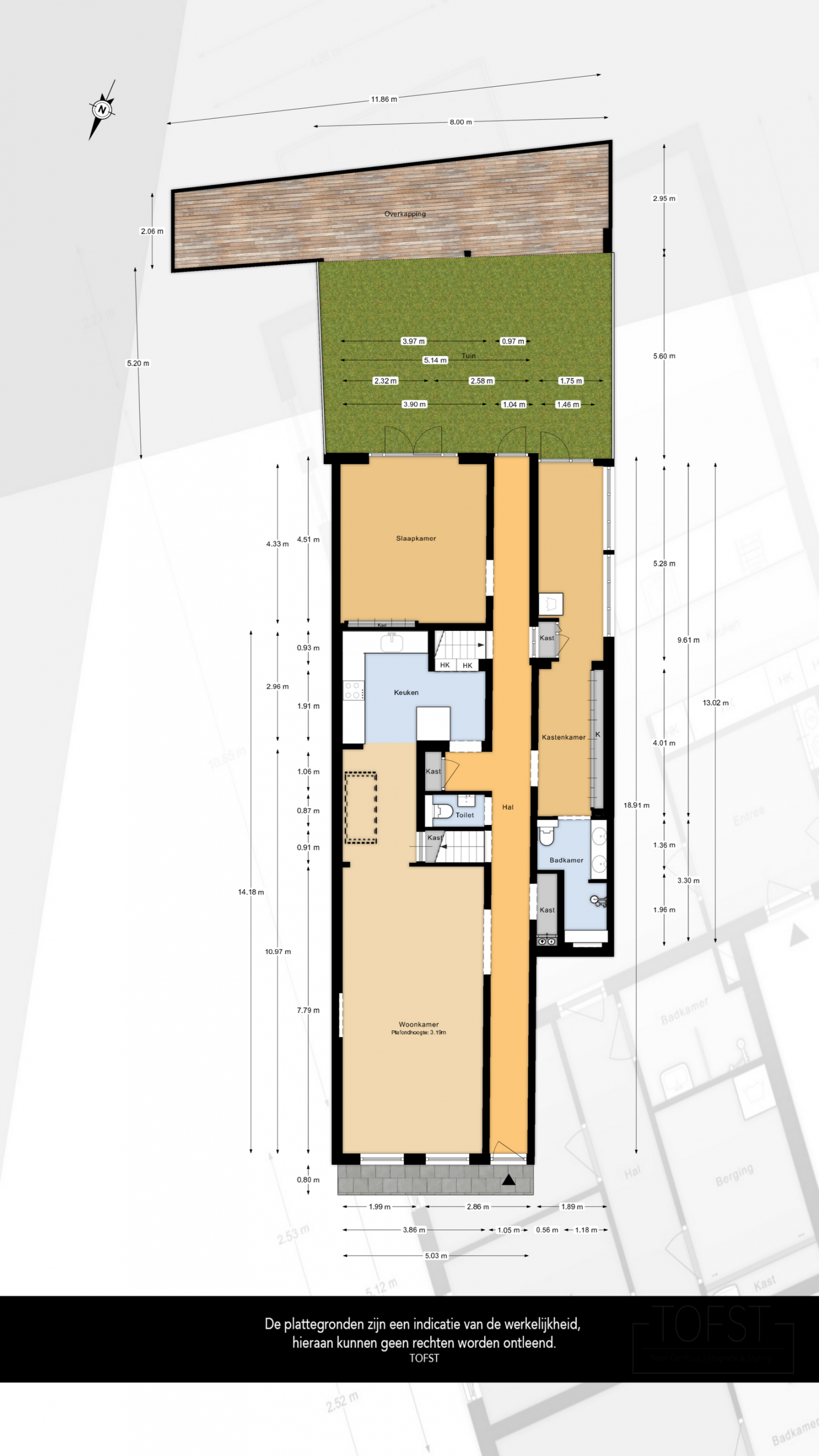
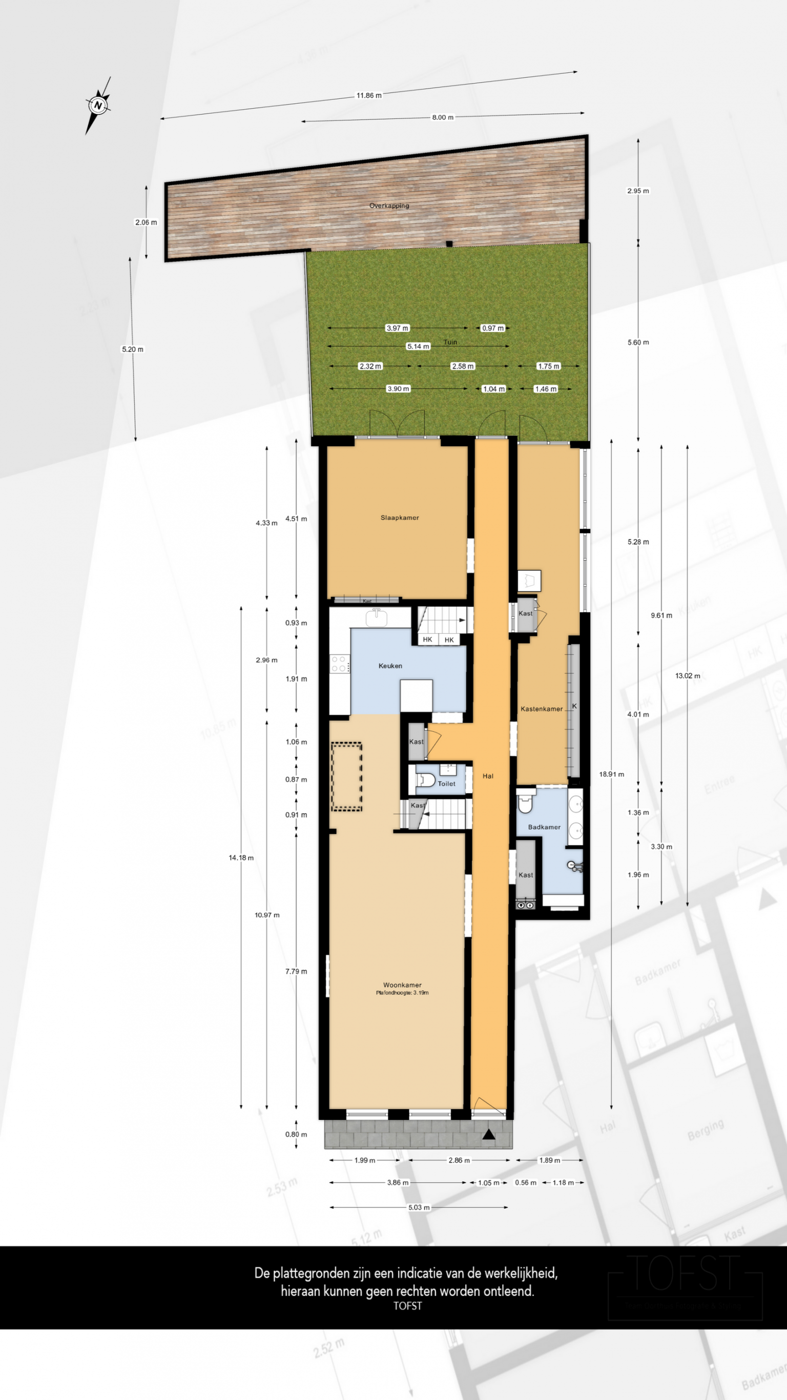
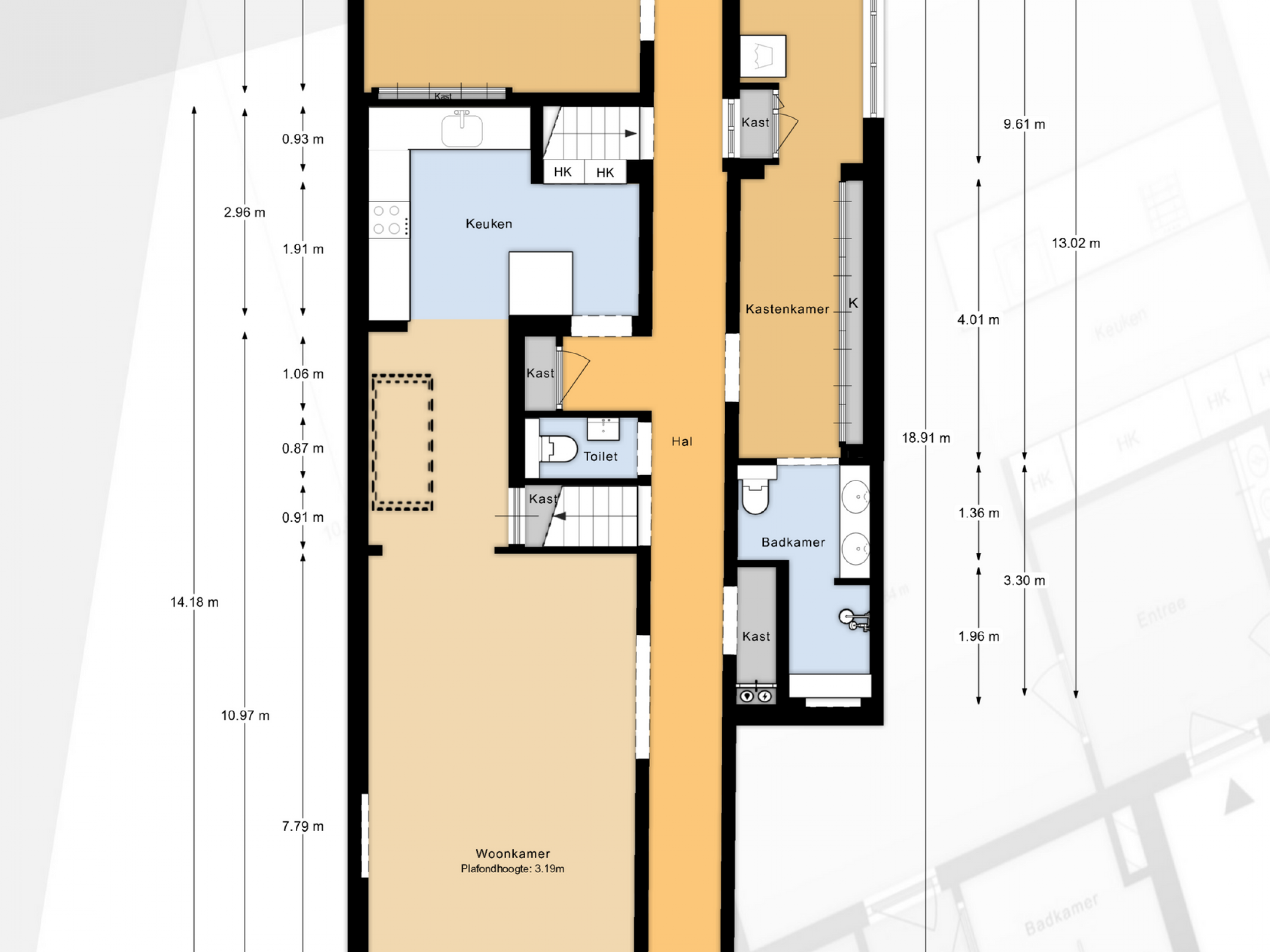
Vanaf de straat is de voordeur met een glas-in-lood bovenlicht bereikbaar, waarna er toegang is tot de lange smalle hal. Deze biedt toegang tot de woonkamer, de keuken, de slaapkamer, de achtertuin, de kastenkamer met wasruimte, de trap naar de verdieping, de trap naar de kelder, het toilet en twee vaste kasten, waarvan er eentje is voorzien van de meterkast. De wanden zijn hier gestuukt en de vloer is voorzien van tegels.
Het toilet is gedeeltelijk betegeld en is uitgerust met een zwevend toilet en een fonteintje. Dit alles is uitgevoerd in het zwart met gouden accenten.
De woonkamer is gesitueerd aan de voorzijde en heeft dankzij de twee hoge ramen met glas-in-lood bovenlichten een fraai uitzicht over het water en de straat. Er is een houtkachel aanwezig en er is een nis gemaakt in de wand met stopcontacten. Perfect voor het ophangen van een televisie. Daarnaast hangt er ook airconditioning en is er een open verbinding met de keuken. De wanden zijn gestuukt en de vloer is voorzien van PVC in een visgraatmotief met vloerverwarming.
Temidden van de woonkamer en de keuken is er ruimte voor een eethoek. Hier zijn inbouw spots in het het plafond verwerkt, er is een, te openen, daklicht aanwezig en onder de trap is er een vaste kast gemaakt.
De moderne keuken is uitgevoerd in hout en heeft een marmerlook aanrechtblad. Het is ruim opgezet met een opstelling in een L-vorm, twee ingebouwde hoge kasten en een apart eiland dat is voorzien van onderkasten. Er zijn ook bovenkasten met verlichting aanwezig en de achterwand hieronder is betegeld. Verder is er natuurlijk diverse apparatuur aanwezig, zoals een oven, een combi oven met stoomfunctie, een koelkast, een vriezer, een vaatwasser, een Quooker kraan en een kookplaat met afzuiging.
De eerste slaapkamer is gelegen aan de achterzijde en beschikt over twee openslaande deuren naar de achtertuin. In de wand zijn vaste kasten gemaakt en er hangt airconditioning. De wanden zijn gestuukt, de vloer is voorzien van PVC in visgraatmotief en het glad gestuukte plafond is voorzien van inbouw spots.
De kastenkamer is een lange smalle ruimte met in het verlengde een wasruimte. Hier bevindt zich de wasmachineaansluiting en verdeeld in de ruimte zijn er vaste kasten gemaakt. Er is veel lichtval dankzij de vele ramen en er is een deur naar de achtertuin. Ook hier zijn de wanden gestuukt en ligt er op de vloer een PVC vloer in visgraatmotief. Vanuit de kastenkamer is er een open verbinding met de badkamer. Deze is uitgevoerd in dezelfde stijl als het toilet en is uitgerust met een zwevend toilet, een wastafelmeubel met twee waskommen, die zijn voorzien van, in de wand verwerkte, kranen met daarboven twee spiegels met verlichting en een zeer ruimte inloopdouche met een regendouche, een handdouche, in de wand verwerkte kranen, een zitplateau en een nis met verlichting. Verder is het plafond gestuukt en is het voorzien van inbouw spots en een afzuigpunt.
De achtertuin is volledig onderhoudsvrij aangelegd met een groot tegelterras en een houten overkapping met een vlonderterras. Deze overkapping is gebouwd over de volledige breedte en loopt achter de stenen wand nog iets door. De stenen muren aan weerszijden zorgen voor voldoende privacy en verder is de tuin geheel naar eigen wens aan te kleden.
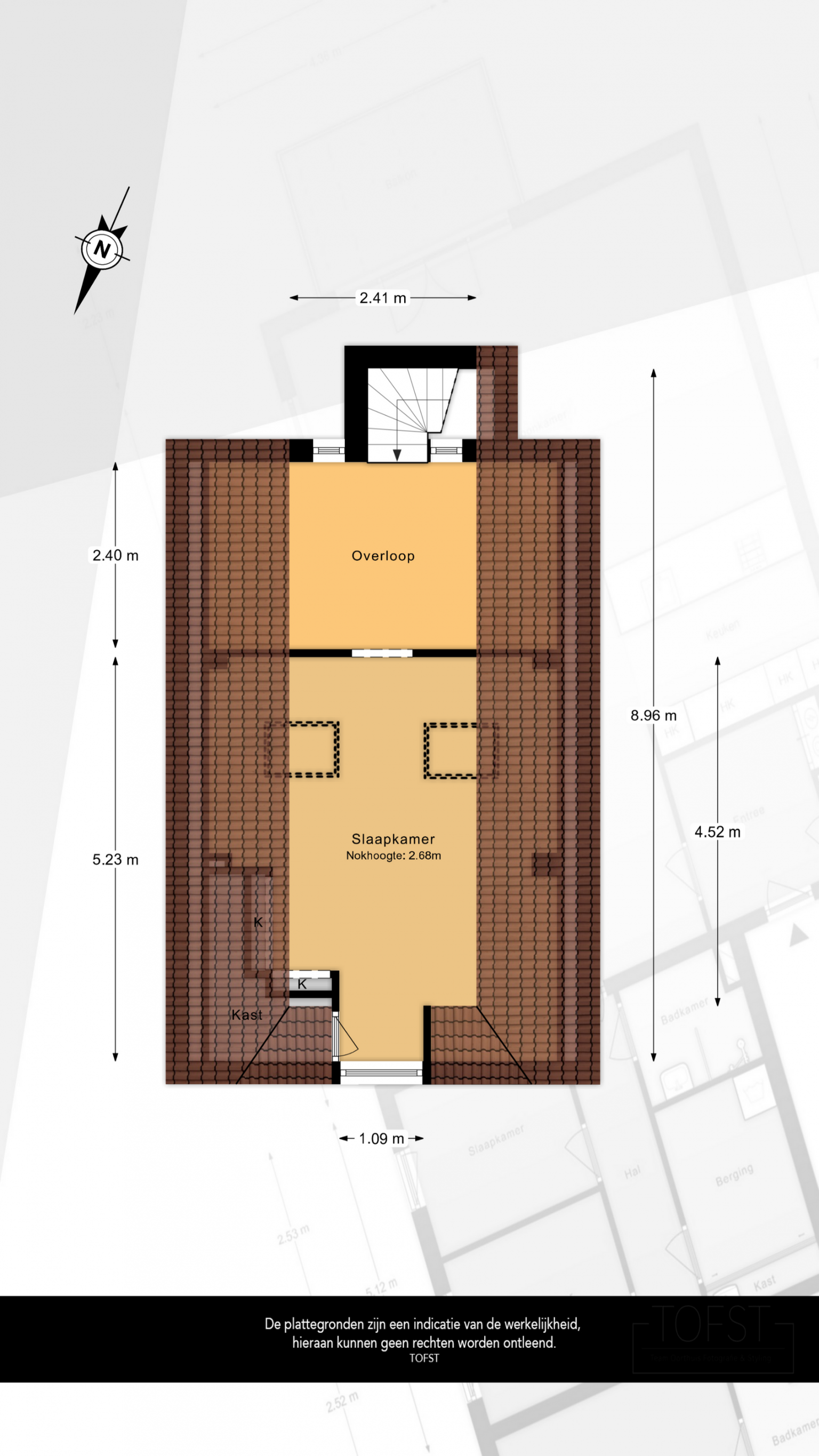
2E VERDIEPING
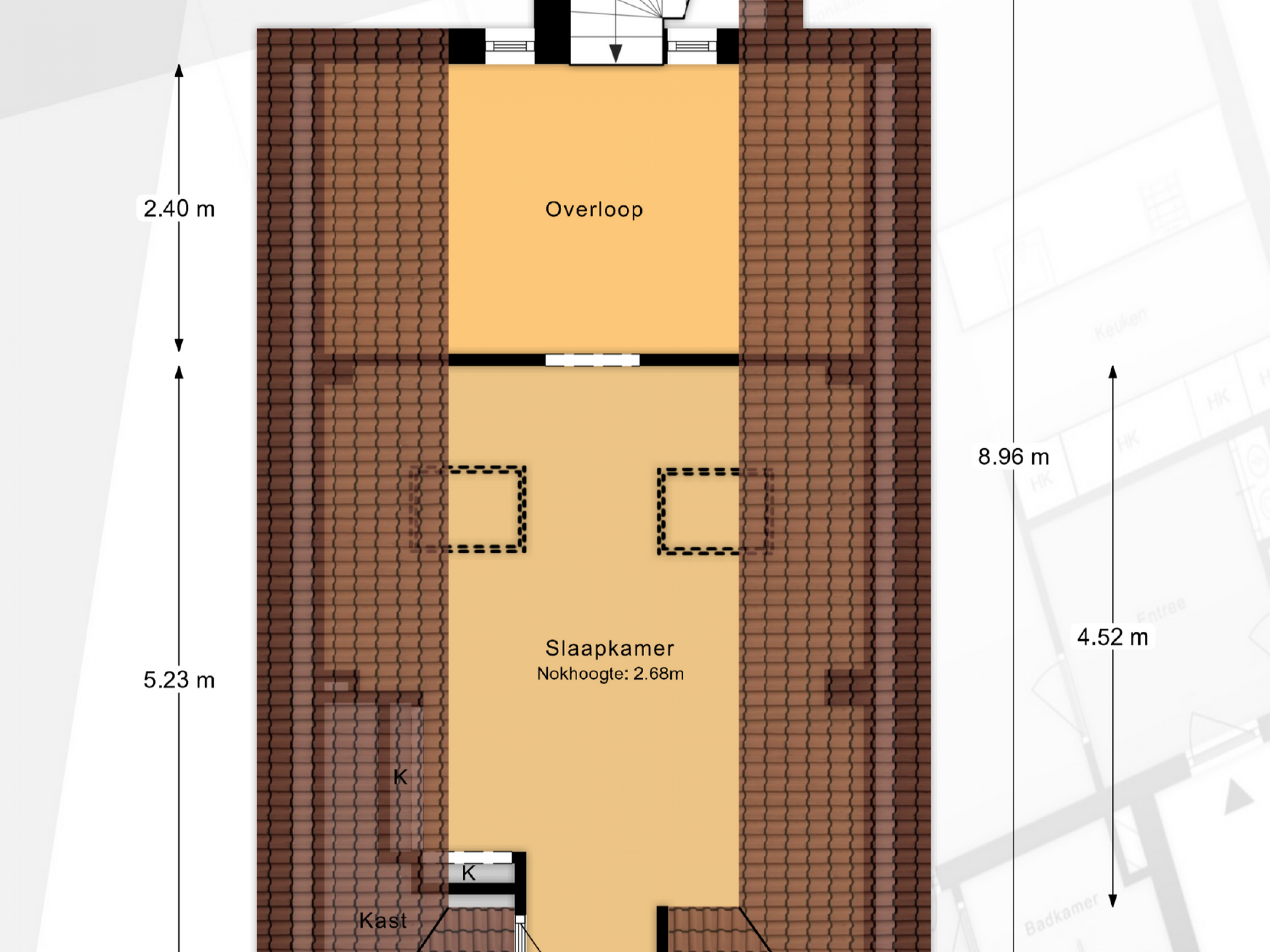
Na de trapopgang is de overloop bereikbaar. Hier zijn alle wanden gestuukt en zijn er twee ramen naast de trapopgang aanwezig. Er is een deur naar de tweede slaapkamer en de vloeren zijn hier nog naar wens af te werken.
De tweede slaapkamer heeft twee grote dakramen en een kleine dakkapel met zicht over de Vliet. Naast de gesloten vaste kast is er ook een open kast gemaakt met planken. Er is airconditioning aanwezig en ook hier zijn de wanden gestuukt.
KELDER
Deze handige extra ruimte is de opstelplaats voor de warmtepomp en de Cv-ketel. De vloer is afgewerkt met epoxy en een gedeelte van de wanden is afgetimmerd met gipsplaten.
BIJZONDERHEDEN
- Begane grond voorzijde is voorzien van hardhouten kozijnen met dubbel glas en bovenlichten met glas-in-lood. Verder is de woning voorzien van kunststof kozijnen met dubbel glas
- De woonkamer en slaapkamers zijn voorzien van airconditioning
- De begane grond is voorzien van vloerverwarming
- De begane grond is voorzien van een PVC vloer in visgraatmotief
- Verdieping is verwarmbaar middels airco
- Alle wanden en plafonds zijn gestuukt
- Nieuwe keuken geplaatst
- Badkamer en toilet zijn nieuw geplaatst
- Ruime achtertuin met houten overkapping
- Beschikking over een kelder
- Warmtepomp (Atlantic)
- Warmtepomp boilers (Atlantic)
- Gelegen op eigen grond
- Bouwjaar 1900
- Energielabel A++
- Houtkachel is ter overname
Deze informatie is door ons met de nodige zorgvuldigheid samengesteld. Prins NVM Makelaars streeft ernaar de informatie op haar website / brochures en andere uitingen zo actueel en nauwkeurig mogelijk weer te geven. Onzerzijds wordt echter geen enkele aansprakelijkheid aanvaard voor enige onvolledigheid, onjuistheid of anderszins, dan wel de gevolgen daarvan
Move.nl Dossier
Wanneer u bij ons een bezichtiging heeft ingepland, krijgt u toegang tot het Move.nl bezichtigingsdossier van de woning.
Woonoppervlakte
De Meetinstructie is gebaseerd op de NEN2580. De Meetinstructie is bedoeld om een meer eenduidige manier van meten toe te passen voor het geven van een indicatie van de gebruiksoppervlakte. De Meetinstructie sluit verschillen in meetuitkomsten niet volledig uit, door bijvoorbeeld interpretatieverschillen, afrondingen of beperkingen bij het uitvoeren van de meting.
Indien de exacte maten voor een koper van cruciaal belang zijn, adviseren wij deze zelf na te meten. De (kandidaat)koper(s) zullen, indien gewenst, daartoe in de gelegenheid gesteld worden op een passend moment teneinde teleurstellingen en schade te voorkomen.
Ouderdomsclausule
Bij woningen ouder dan 30 jaar zal er standaard in de koopakte een ouderdomsclausule worden opgenomen.
Notariskeuze en kosten
In principe ligt de notariskeuze bij de koper. Het doorhalen van de hypothecaire inschrijving in het kadaster moet door de verkoper betaald worden. Zijn de kosten voor deze doorhaling hoger dan € 400,- inclusief BTW dan wordt het meerdere bij de koper in rekening gebracht. Indien de koper een notaris kiest buiten een straal van 20 kilometer van de verkochte onroerende zaak dan zijn de eventuele kosten die de notaris berekent voor een eventuele verkoopvolmacht en legalisatie hiervan ten behoeve van de verkoper voor rekening van de koper.
Getekende koopovereenkomst
Een mondelinge overeenstemming tussen de particuliere verkoper en de particuliere koper is niet rechtsgeldig. Met andere woorden: er is geen koop. Er is pas sprake van een rechtsgeldige koop als de particuliere verkoper en de particuliere koper de koopovereenkomst hebben ondertekend. Dit vloeit voort uit artikel 7:2 Burgerlijk Wetboek. Een bevestiging van de mondelinge overeenstemming per e-mail of een toegestuurd concept van de koopovereenkomst wordt overigens niet gezien als een ‘ondertekende koopovereenkomst’.
Gunning
Verkoper behoudt zich uitdrukkelijk het recht voor het object te gunnen aan de gegadigde van zijn keuze. Nadrukkelijk zij vermeld dat alle informatie in deze brochure moet beschouwd worden als een uitnodiging tot het doen van een bod of om in onderhandeling te treden. Er kunnen geen rechten worden ontleend aan deze informatie.
INDELING
Vanaf de straat is de voordeur met een glas-in-lood bovenlicht bereikbaar, waarna er toegang is tot de lange smalle hal. Deze biedt toegang tot de woonkamer, de keuken, de slaapkamer, de achtertuin, de kastenkamer met wasruimte, de trap naar de verdieping, de trap naar de kelder, het toilet en twee vaste kasten, waarvan er eentje is voorzien van de meterkast. De wanden zijn hier gestuukt en de vloer is voorzien van tegels.
Het toilet is gedeeltelijk betegeld en is uitgerust met een zwevend toilet en een fonteintje. Dit alles is uitgevoerd in het zwart met gouden accenten.
De woonkamer is gesitueerd aan de voorzijde en heeft dankzij de twee hoge ramen met glas-in-lood bovenlichten een fraai uitzicht over het water en de straat. Er is een houtkachel aanwezig en er is een nis gemaakt in de wand met stopcontacten. Perfect voor het ophangen van een televisie. Daarnaast hangt er ook airconditioning en is er een open verbinding met de keuken. De wanden zijn gestuukt en de vloer is voorzien van PVC in een visgraatmotief met vloerverwarming.
Temidden van de woonkamer en de keuken is er ruimte voor een eethoek. Hier zijn inbouw spots in het het plafond verwerkt, er is een, te openen, daklicht aanwezig en onder de trap is er een vaste kast gemaakt.
De moderne keuken is uitgevoerd in hout en heeft een marmerlook aanrechtblad. Het is ruim opgezet met een opstelling in een L-vorm, twee ingebouwde hoge kasten en een apart eiland dat is voorzien van onderkasten. Er zijn ook bovenkasten met verlichting aanwezig en de achterwand hieronder is betegeld. Verder is er natuurlijk diverse apparatuur aanwezig, zoals een oven, een combi oven met stoomfunctie, een koelkast, een vriezer, een vaatwasser, een Quooker kraan en een kookplaat met afzuiging.
De eerste slaapkamer is gelegen aan de achterzijde en beschikt over twee openslaande deuren naar de achtertuin. In de wand zijn vaste kasten gemaakt en er hangt airconditioning. De wanden zijn gestuukt, de vloer is voorzien van PVC in visgraatmotief en het glad gestuukte plafond is voorzien van inbouw spots.
De kastenkamer is een lange smalle ruimte met in het verlengde een wasruimte. Hier bevindt zich de wasmachineaansluiting en verdeeld in de ruimte zijn er vaste kasten gemaakt. Er is veel lichtval dankzij de vele ramen en er is een deur naar de achtertuin. Ook hier zijn de wanden gestuukt en ligt er op de vloer een PVC vloer in visgraatmotief. Vanuit de kastenkamer is er een open verbinding met de badkamer. Deze is uitgevoerd in dezelfde stijl als het toilet en is uitgerust met een zwevend toilet, een wastafelmeubel met twee waskommen, die zijn voorzien van, in de wand verwerkte, kranen met daarboven twee spiegels met verlichting en een zeer ruimte inloopdouche met een regendouche, een handdouche, in de wand verwerkte kranen, een zitplateau en een nis met verlichting. Verder is het plafond gestuukt en is het voorzien van inbouw spots en een afzuigpunt.
De achtertuin is volledig onderhoudsvrij aangelegd met een groot tegelterras en een houten overkapping met een vlonderterras. Deze overkapping is gebouwd over de volledige breedte en loopt achter de stenen wand nog iets door. De stenen muren aan weerszijden zorgen voor voldoende privacy en verder is de tuin geheel naar eigen wens aan te kleden.
2E VERDIEPING
Na de trapopgang is de overloop bereikbaar. Hier zijn alle wanden gestuukt en zijn er twee ramen naast de trapopgang aanwezig. Er is een deur naar de tweede slaapkamer en de vloeren zijn hier nog naar wens af te werken.
De tweede slaapkamer heeft twee grote dakramen en een kleine dakkapel met zicht over de Vliet. Naast de gesloten vaste kast is er ook een open kast gemaakt met planken. Er is airconditioning aanwezig en ook hier zijn de wanden gestuukt.
KELDER
Deze handige extra ruimte is de opstelplaats voor de warmtepomp en de Cv-ketel. De vloer is afgewerkt met epoxy en een gedeelte van de wanden is afgetimmerd met gipsplaten.
BIJZONDERHEDEN
- Begane grond voorzijde is voorzien van hardhouten kozijnen met dubbel glas en bovenlichten met glas-in-lood. Verder is de woning voorzien van kunststof kozijnen met dubbel glas
- De woonkamer en slaapkamers zijn voorzien van airconditioning
- De begane grond is voorzien van vloerverwarming
- De begane grond is voorzien van een PVC vloer in visgraatmotief
- Verdieping is verwarmbaar middels airco
- Alle wanden en plafonds zijn gestuukt
- Nieuwe keuken geplaatst
- Badkamer en toilet zijn nieuw geplaatst
- Ruime achtertuin met houten overkapping
- Beschikking over een kelder
- Warmtepomp (Atlantic)
- Warmtepomp boilers (Atlantic)
- Gelegen op eigen grond
- Bouwjaar 1900
- Energielabel A++
- Houtkachel is ter overname
Deze informatie is door ons met de nodige zorgvuldigheid samengesteld. Prins NVM Makelaars streeft ernaar de informatie op haar website / brochures en andere uitingen zo actueel en nauwkeurig mogelijk weer te geven. Onzerzijds wordt echter geen enkele aansprakelijkheid aanvaard voor enige onvolledigheid, onjuistheid of anderszins, dan wel de gevolgen daarvan
Move.nl Dossier
Wanneer u bij ons een bezichtiging heeft ingepland, krijgt u toegang tot het Move.nl bezichtigingsdossier van de woning.
Woonoppervlakte
De Meetinstructie is gebaseerd op de NEN2580. De Meetinstructie is bedoeld om een meer eenduidige manier van meten toe te passen voor het geven van een indicatie van de gebruiksoppervlakte. De Meetinstructie sluit verschillen in meetuitkomsten niet volledig uit, door bijvoorbeeld interpretatieverschillen, afrondingen of beperkingen bij het uitvoeren van de meting.
Indien de exacte maten voor een koper van cruciaal belang zijn, adviseren wij deze zelf na te meten. De (kandidaat)koper(s) zullen, indien gewenst, daartoe in de gelegenheid gesteld worden op een passend moment teneinde teleurstellingen en schade te voorkomen.
Ouderdomsclausule
Bij woningen ouder dan 30 jaar zal er standaard in de koopakte een ouderdomsclausule worden opgenomen.
Notariskeuze en kosten
In principe ligt de notariskeuze bij de koper. Het doorhalen van de hypothecaire inschrijving in het kadaster moet door de verkoper betaald worden. Zijn de kosten voor deze doorhaling hoger dan € 400,- inclusief BTW dan wordt het meerdere bij de koper in rekening gebracht. Indien de koper een notaris kiest buiten een straal van 20 kilometer van de verkochte onroerende zaak dan zijn de eventuele kosten die de notaris berekent voor een eventuele verkoopvolmacht en legalisatie hiervan ten behoeve van de verkoper voor rekening van de koper.
Getekende koopovereenkomst
Een mondelinge overeenstemming tussen de particuliere verkoper en de particuliere koper is niet rechtsgeldig. Met andere woorden: er is geen koop. Er is pas sprake van een rechtsgeldige koop als de particuliere verkoper en de particuliere koper de koopovereenkomst hebben ondertekend. Dit vloeit voort uit artikel 7:2 Burgerlijk Wetboek. Een bevestiging van de mondelinge overeenstemming per e-mail of een toegestuurd concept van de koopovereenkomst wordt overigens niet gezien als een ‘ondertekende koopovereenkomst’.
Gunning
Verkoper behoudt zich uitdrukkelijk het recht voor het object te gunnen aan de gegadigde van zijn keuze. Nadrukkelijk zij vermeld dat alle informatie in deze brochure moet beschouwd worden als een uitnodiging tot het doen van een bod of om in onderhandeling te treden. Er kunnen geen rechten worden ontleend aan deze informatie.
Kenmerken
Overdracht
- vraagprijs
- € 650.000 k.k.
- Status
- Beschikbaar
- Aanvaarding
- In overleg
Bouw
- Soort woning
- Benedenwoning, appartement
- Soort bouw
- Bestaande bouw
Oppervlakten en inhoud
- Woonoppervlakte
- 142 m²
- Inhoud
- 534 m³
Indeling
- Aantal kamers
- 5 kamers (3 slaapkamers)
- Aantal verdiepingen
- 3 Verdiepingen
- Voorzieningen
- Mechanische ventilatie, dakraam, airconditioning
Energie
- Energielabel
- A++
- Isolatie
- Dakisolatie, muurisolatie, vloerisolatie, dubbel glas
Buitenruimte
- Ligging
- In centrum
- Tuin
- Achtertuin
- Achtertuin
- 68 m² (8,55m Diep / 8m Breed)
- Ligging tuin
- Noord
Garage
- Soort garage
- Geen garage
Parkeren
- Soort parkeergelegenheid
- Openbaar parkeren