Open huis
- 10 januari 11:00 - 13:00
Jan Stoorvogelstraat 2
€ 650.000 k.k.
Maassluis
Eengezinswoning
140 m²
3 slaapkamers
Noordwest
In overleg
Instapklare Hoekwoning met Uitbouw en Energielabel A
Welkom in een droom van een huis, gelegen in een zeer rustige, kindvriendelijke straat in de geliefde wijk Elysium. In de omgeving van de woonwijk zijn alle voorzieningen zoals scholen, speeltuinen en sportverenigingen en is het heerlijk wonen. Ook het centrum van Maassluis, Koningshoek en de metro zijn snel bereikbaar.
Deze verrassend ruime hoekwoning straalt zorg en kwaliteit uit en is direct klaar voor bewoning. De begane grond beschikt over een uitgebouwde, lichte woonkamer met openslaande deuren naar de zonnige ruime tuin met overkapping welke direct vanuit de woonkamer bereikbaar is. Koken is een feest in de moderne keuken (2022), voorzien van luxe inbouwapparatuur en vloerverwarming.
Boven vindt u twee ruime slaapkamers en een complete badkamer. De tweede verdieping biedt nog een royale derde (voorheen 2 slaapkamers) slaapkamer en inloopkast dankzij twee dakkapellen.
Qua comfort en duurzaamheid scoort deze woning hoog: recent schilderwerk, rolluiken, airconditioning, en vooral het uitstekende Energielabel A door 12 zonnepanelen en een hybride warmtepomp (2023). Dit complete, instapklare en uitstekend onderhouden huis op eigen grond wacht op u!
Oplevering juli/augustus 2026 na oplevering nieuwbouw welke gepland is tussen mei/juni 2026
Welkom Binnen: Een Rondleiding door Comfort en Kwaliteit!
Stap binnen in deze verrassend ruime hoekwoning, perfect gelegen in een rustige, doodlopende straat.
INDELING:
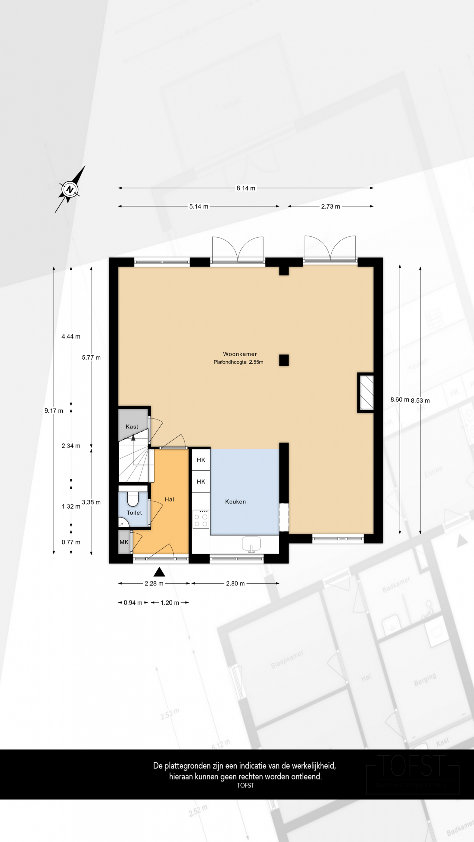
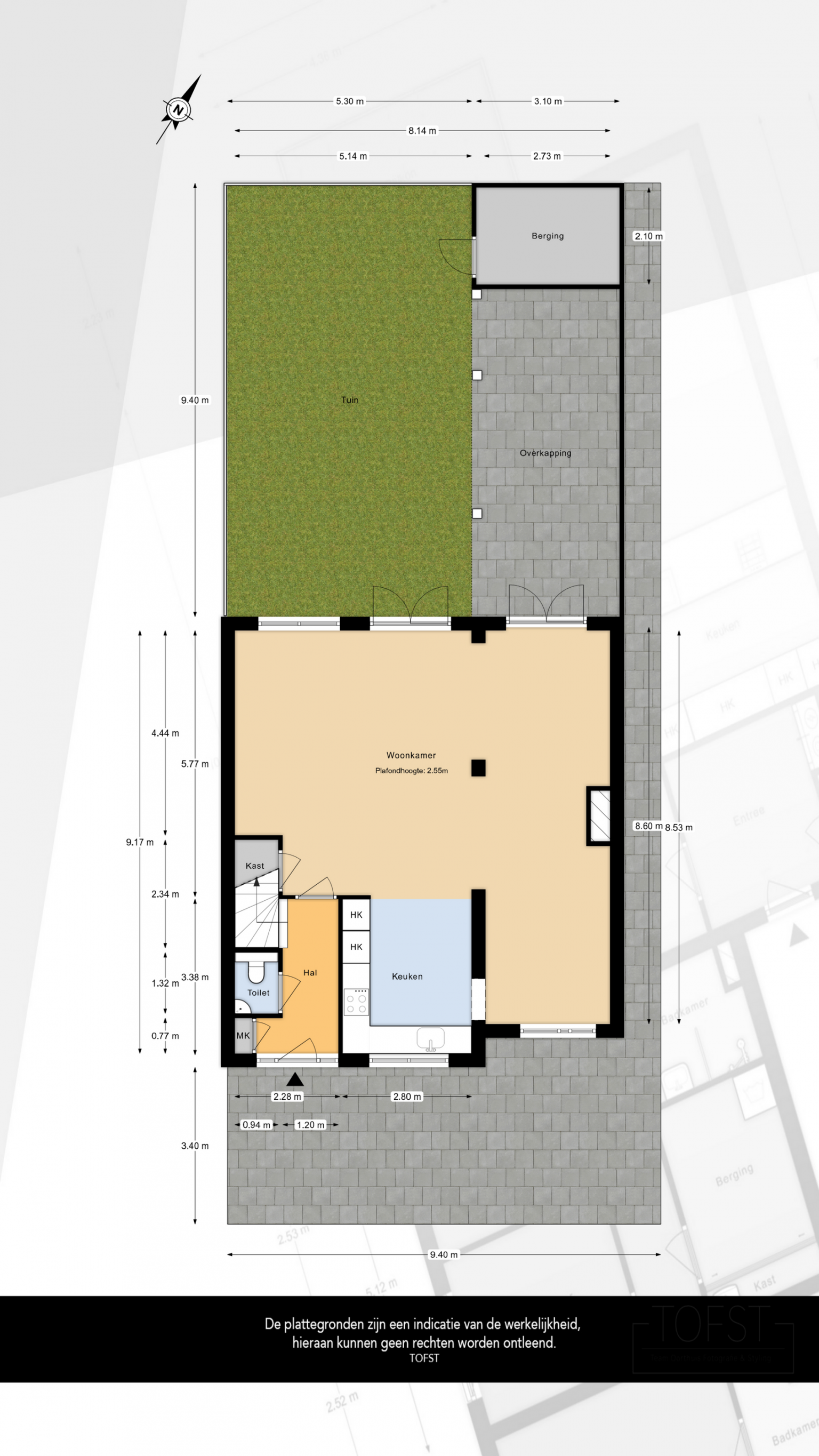
Begane Grond: Licht, Ruimte en Luxe U komt binnen in een nette hal met toegang tot het toilet en de ruime, uitgebouwde woonkamer van 64m2. De vloer is uniform afgewerkt met een duurzame cortex vloer, voorzien van vloerverwarming. De brede woonkamer biedt volop leefruimte, een gezellige eethoek, sfeerhaard en airconditioning. Vanuit hier leiden openslaande deuren direct naar een zonnige diepe en brede achtertuin met veranda.
De moderne U-vormige open keuken (2022) is een absolute blikvanger. Met lichte kasten, een donker topcore aanrechtblad en complete, hoogwaardige inbouwapparatuur (waaronder een Quooker en inductiekookplaat met geïntegreerde afzuiging) is dit dé plek voor kookliefhebbers.
De onderhoudsvriendelijke achtertuin is de verlenging van uw woonkamer, compleet met een sfeervolle houten overkapping, berging met elektra en een achterom.
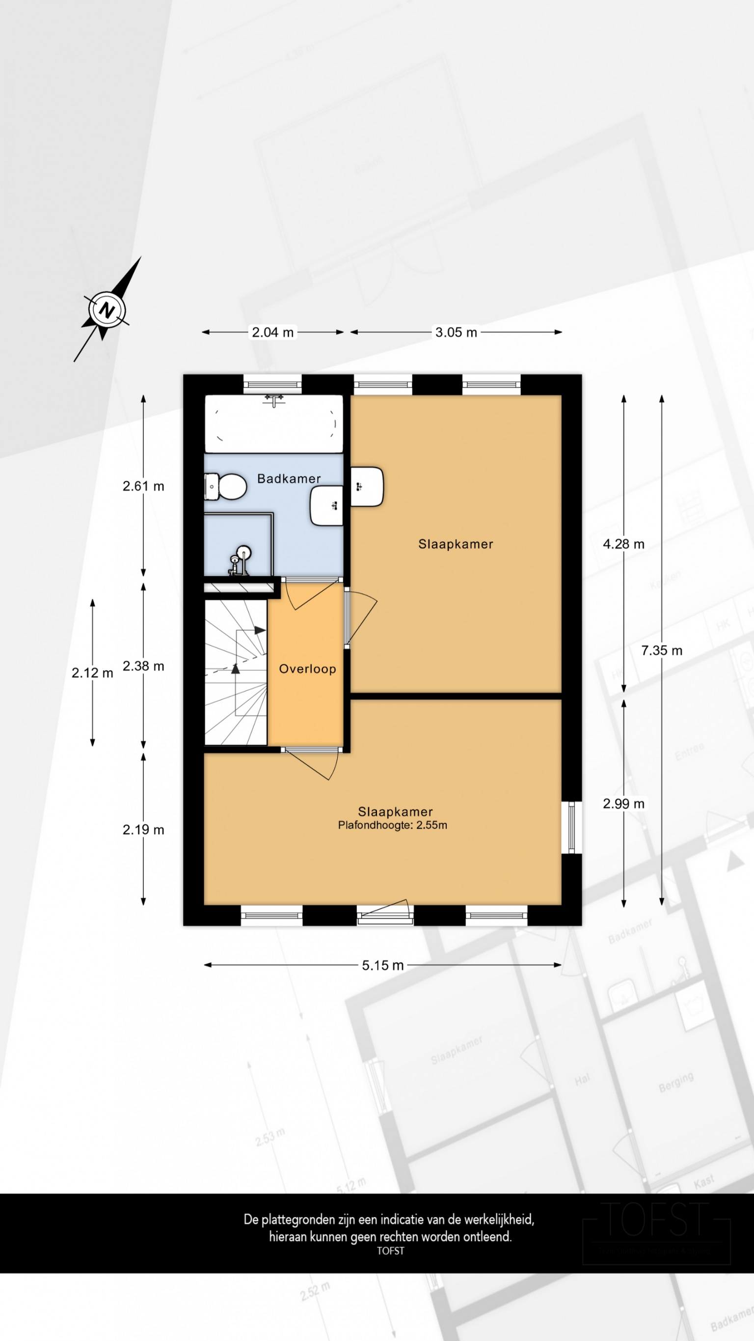
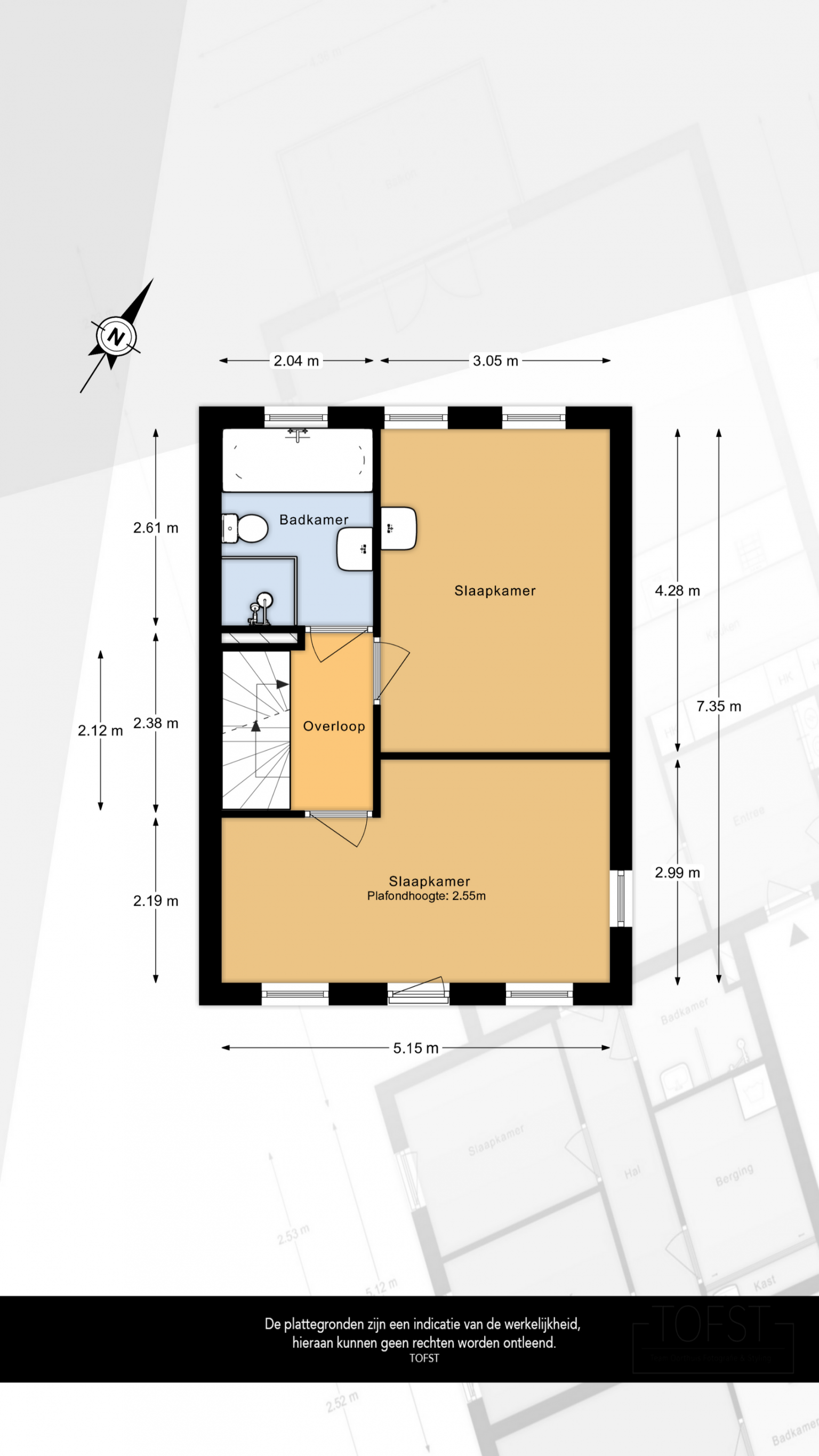
Eerste Verdieping: Rust en Comfort De overloop geeft toegang tot twee ruime slaapkamers en een complete, volledig betegelde badkamer. Hier geniet u van zowel een ligbad als een aparte instap douchecabine, plus een toilet en wastafel. De slaapkamer aan de voorzijde heeft bovendien een Frans balkon en airconditioning.
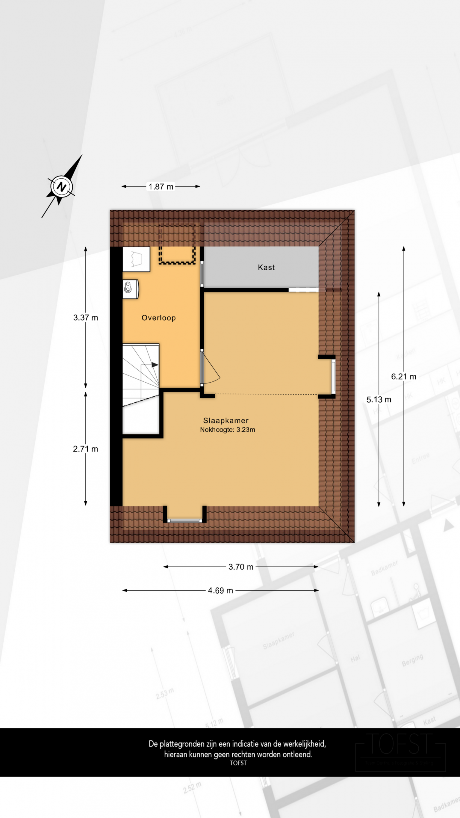
Tweede Verdieping: Ruimte en Mogelijkheden De ruime zolderverdieping is multifunctioneel. Hier vindt u de opstelling voor de wasmachine, de Cv-ketel met de Hybride warmtepomp. De derde, royale slaapkamer voorheen 2 slaapkamers is dankzij twee kleine dakkapellen en een open inloopkast verrassend licht en ruim. Ideaal voor thuiswerken of als riante master bedroom.
Dit is wonen zonder zorgen, met oog voor detail en duurzaamheid!
Duurzaamheid en Specificaties van de Woning
De woning is uitstekend onderhouden en uitgerust met moderne en duurzame installaties, wat resulteert in een uitmuntend Energielabel A.
Duurzaamheidsvoorzieningen:
• Bouwjaar 1998/99
• 12 Zonnepanelen: Milieuvriendelijk stroomverbruik.
• Hybride Warmtepomp: Een Remeha Elga Ace, geïnstalleerd in 2023, voor efficiënte verwarming.
• HR-ketel (2022): Aanvullend op de warmtepomp.
• H+ en HR++ glas.
• Volledig geïsoleerd: Draagt bij aan het hoge energielabel en wooncomfort.
Technisch Comfort & Afwerking:
• Airco-units: Twee stuks die zowel kunnen koelen als verwarmen.
• Waterontharder direct na de watermeter.
• Nieuwe meterkast.
• Vloerverwarming op de begane grond.
• Duurzame cortexvloer met PVC-toplaag op de begane grond.
• Moderne open keuken (2022) met hoogwaardige inbouwapparatuur (inductiekookplaat met geïntegreerde afzuiging, Quooker, combi-oven, koelkast, vriezer en vaatwasser).
• Rolluiken: Zowel handmatig als elektrisch bedienbaar.
• Recent schilderwerk binnen en buiten (2024/2025) en nieuwe schuttingen.
Kortom, de woning is technisch gezien volledig up-to-date en klaar voor een energiezuinige toekomst.
Deze informatie is door ons met de nodige zorgvuldigheid samengesteld. Prins NVM Makelaars streeft ernaar de informatie op haar website / brochures en andere uitingen zo actueel en nauwkeurig mogelijk weer te geven. Onzerzijds wordt echter geen enkele aansprakelijkheid aanvaard voor enige onvolledigheid, onjuistheid of anderszins, dan wel de gevolgen daarvan
Move.nl Dossier
Wanneer u bij ons een bezichtiging heeft ingepland, krijgt u toegang tot het Move.nl bezichtigingsdossier van de woning.
Woonoppervlakte
De Meetinstructie is gebaseerd op de NEN2580. De Meetinstructie is bedoeld om een meer eenduidige manier van meten toe te passen voor het geven van een indicatie van de gebruiksoppervlakte. De Meetinstructie sluit verschillen in meetuitkomsten niet volledig uit, door bijvoorbeeld interpretatieverschillen, afrondingen of beperkingen bij het uitvoeren van de meting.
Indien de exacte maten voor een koper van cruciaal belang zijn, adviseren wij deze zelf na te meten. De (kandidaat)koper(s) zullen, indien gewenst, daartoe in de gelegenheid gesteld worden op een passend moment teneinde teleurstellingen en schade te voorkomen.
Notariskeuze en kosten
In principe ligt de notariskeuze bij de koper. Het doorhalen van de hypothecaire inschrijving in het kadaster moet door de verkoper betaald worden. Zijn de kosten voor deze doorhaling hoger dan € 400,- inclusief BTW dan wordt het meerdere bij de koper in rekening gebracht. Indien de koper een notaris kiest buiten een straal van 20 kilometer van de verkochte onroerende zaak dan zijn de eventuele kosten die de notaris berekent voor een eventuele verkoopvolmacht en legalisatie hiervan ten behoeve van de verkoper voor rekening van de koper.
Getekende koopovereenkomst
Een mondelinge overeenstemming tussen de particuliere verkoper en de particuliere koper is niet rechtsgeldig. Met andere woorden: er is geen koop. Er is pas sprake van een rechtsgeldige koop als de particuliere verkoper en de particuliere koper de koopovereenkomst hebben ondertekend. Dit vloeit voort uit artikel 7:2 Burgerlijk Wetboek. Een bevestiging van de mondelinge overeenstemming per e-mail of een toegestuurd concept van de koopovereenkomst wordt overigens niet gezien als een ‘ondertekende koopovereenkomst’.
Gunning
Verkoper behoudt zich uitdrukkelijk het recht voor het object te gunnen aan de gegadigde van zijn keuze. Nadrukkelijk zij vermeld dat alle informatie in deze brochure moet beschouwd worden als een uitnodiging tot het doen van een bod of om in onderhandeling te treden. Er kunnen geen rechten worden ontleend aan deze informatie.
Welkom in een droom van een huis, gelegen in een zeer rustige, kindvriendelijke straat in de geliefde wijk Elysium. In de omgeving van de woonwijk zijn alle voorzieningen zoals scholen, speeltuinen en sportverenigingen en is het heerlijk wonen. Ook het centrum van Maassluis, Koningshoek en de metro zijn snel bereikbaar.
Deze verrassend ruime hoekwoning straalt zorg en kwaliteit uit en is direct klaar voor bewoning. De begane grond beschikt over een uitgebouwde, lichte woonkamer met openslaande deuren naar de zonnige ruime tuin met overkapping welke direct vanuit de woonkamer bereikbaar is. Koken is een feest in de moderne keuken (2022), voorzien van luxe inbouwapparatuur en vloerverwarming.
Boven vindt u twee ruime slaapkamers en een complete badkamer. De tweede verdieping biedt nog een royale derde (voorheen 2 slaapkamers) slaapkamer en inloopkast dankzij twee dakkapellen.
Qua comfort en duurzaamheid scoort deze woning hoog: recent schilderwerk, rolluiken, airconditioning, en vooral het uitstekende Energielabel A door 12 zonnepanelen en een hybride warmtepomp (2023). Dit complete, instapklare en uitstekend onderhouden huis op eigen grond wacht op u!
Oplevering juli/augustus 2026 na oplevering nieuwbouw welke gepland is tussen mei/juni 2026
Welkom Binnen: Een Rondleiding door Comfort en Kwaliteit!
Stap binnen in deze verrassend ruime hoekwoning, perfect gelegen in een rustige, doodlopende straat.
INDELING:
Begane Grond: Licht, Ruimte en Luxe U komt binnen in een nette hal met toegang tot het toilet en de ruime, uitgebouwde woonkamer van 64m2. De vloer is uniform afgewerkt met een duurzame cortex vloer, voorzien van vloerverwarming. De brede woonkamer biedt volop leefruimte, een gezellige eethoek, sfeerhaard en airconditioning. Vanuit hier leiden openslaande deuren direct naar een zonnige diepe en brede achtertuin met veranda.
De moderne U-vormige open keuken (2022) is een absolute blikvanger. Met lichte kasten, een donker topcore aanrechtblad en complete, hoogwaardige inbouwapparatuur (waaronder een Quooker en inductiekookplaat met geïntegreerde afzuiging) is dit dé plek voor kookliefhebbers.
De onderhoudsvriendelijke achtertuin is de verlenging van uw woonkamer, compleet met een sfeervolle houten overkapping, berging met elektra en een achterom.
Eerste Verdieping: Rust en Comfort De overloop geeft toegang tot twee ruime slaapkamers en een complete, volledig betegelde badkamer. Hier geniet u van zowel een ligbad als een aparte instap douchecabine, plus een toilet en wastafel. De slaapkamer aan de voorzijde heeft bovendien een Frans balkon en airconditioning.
Tweede Verdieping: Ruimte en Mogelijkheden De ruime zolderverdieping is multifunctioneel. Hier vindt u de opstelling voor de wasmachine, de Cv-ketel met de Hybride warmtepomp. De derde, royale slaapkamer voorheen 2 slaapkamers is dankzij twee kleine dakkapellen en een open inloopkast verrassend licht en ruim. Ideaal voor thuiswerken of als riante master bedroom.
Dit is wonen zonder zorgen, met oog voor detail en duurzaamheid!
Duurzaamheid en Specificaties van de Woning
De woning is uitstekend onderhouden en uitgerust met moderne en duurzame installaties, wat resulteert in een uitmuntend Energielabel A.
Duurzaamheidsvoorzieningen:
• Bouwjaar 1998/99
• 12 Zonnepanelen: Milieuvriendelijk stroomverbruik.
• Hybride Warmtepomp: Een Remeha Elga Ace, geïnstalleerd in 2023, voor efficiënte verwarming.
• HR-ketel (2022): Aanvullend op de warmtepomp.
• H+ en HR++ glas.
• Volledig geïsoleerd: Draagt bij aan het hoge energielabel en wooncomfort.
Technisch Comfort & Afwerking:
• Airco-units: Twee stuks die zowel kunnen koelen als verwarmen.
• Waterontharder direct na de watermeter.
• Nieuwe meterkast.
• Vloerverwarming op de begane grond.
• Duurzame cortexvloer met PVC-toplaag op de begane grond.
• Moderne open keuken (2022) met hoogwaardige inbouwapparatuur (inductiekookplaat met geïntegreerde afzuiging, Quooker, combi-oven, koelkast, vriezer en vaatwasser).
• Rolluiken: Zowel handmatig als elektrisch bedienbaar.
• Recent schilderwerk binnen en buiten (2024/2025) en nieuwe schuttingen.
Kortom, de woning is technisch gezien volledig up-to-date en klaar voor een energiezuinige toekomst.
Deze informatie is door ons met de nodige zorgvuldigheid samengesteld. Prins NVM Makelaars streeft ernaar de informatie op haar website / brochures en andere uitingen zo actueel en nauwkeurig mogelijk weer te geven. Onzerzijds wordt echter geen enkele aansprakelijkheid aanvaard voor enige onvolledigheid, onjuistheid of anderszins, dan wel de gevolgen daarvan
Move.nl Dossier
Wanneer u bij ons een bezichtiging heeft ingepland, krijgt u toegang tot het Move.nl bezichtigingsdossier van de woning.
Woonoppervlakte
De Meetinstructie is gebaseerd op de NEN2580. De Meetinstructie is bedoeld om een meer eenduidige manier van meten toe te passen voor het geven van een indicatie van de gebruiksoppervlakte. De Meetinstructie sluit verschillen in meetuitkomsten niet volledig uit, door bijvoorbeeld interpretatieverschillen, afrondingen of beperkingen bij het uitvoeren van de meting.
Indien de exacte maten voor een koper van cruciaal belang zijn, adviseren wij deze zelf na te meten. De (kandidaat)koper(s) zullen, indien gewenst, daartoe in de gelegenheid gesteld worden op een passend moment teneinde teleurstellingen en schade te voorkomen.
Notariskeuze en kosten
In principe ligt de notariskeuze bij de koper. Het doorhalen van de hypothecaire inschrijving in het kadaster moet door de verkoper betaald worden. Zijn de kosten voor deze doorhaling hoger dan € 400,- inclusief BTW dan wordt het meerdere bij de koper in rekening gebracht. Indien de koper een notaris kiest buiten een straal van 20 kilometer van de verkochte onroerende zaak dan zijn de eventuele kosten die de notaris berekent voor een eventuele verkoopvolmacht en legalisatie hiervan ten behoeve van de verkoper voor rekening van de koper.
Getekende koopovereenkomst
Een mondelinge overeenstemming tussen de particuliere verkoper en de particuliere koper is niet rechtsgeldig. Met andere woorden: er is geen koop. Er is pas sprake van een rechtsgeldige koop als de particuliere verkoper en de particuliere koper de koopovereenkomst hebben ondertekend. Dit vloeit voort uit artikel 7:2 Burgerlijk Wetboek. Een bevestiging van de mondelinge overeenstemming per e-mail of een toegestuurd concept van de koopovereenkomst wordt overigens niet gezien als een ‘ondertekende koopovereenkomst’.
Gunning
Verkoper behoudt zich uitdrukkelijk het recht voor het object te gunnen aan de gegadigde van zijn keuze. Nadrukkelijk zij vermeld dat alle informatie in deze brochure moet beschouwd worden als een uitnodiging tot het doen van een bod of om in onderhandeling te treden. Er kunnen geen rechten worden ontleend aan deze informatie.
Kenmerken
Overdracht
- vraagprijs
- € 650.000 k.k.
- Status
- Beschikbaar
- Aanvaarding
- In overleg
Bouw
- Soort woning
- Eengezinswoning, hoekwoning
- Soort bouw
- Bestaande bouw
Oppervlakten en inhoud
- Woonoppervlakte
- 140 m²
- Externe bergruimte
- 7 m²
- Perceel
- 223 m²
- Inhoud
- 478 m³
Indeling
- Aantal kamers
- 4 kamers (3 slaapkamers)
- Aantal verdiepingen
- 3 Verdiepingen
- Voorzieningen
- Frans balkon, rolluiken
Energie
- Energielabel
- A
- Isolatie
- Volledig geïsoleerd
Buitenruimte
- Ligging
- Aan rustige weg, in woonwijk
- Tuin
- Achtertuin, voortuin
- Achtertuin
- 77 m² (9,40m Diep / 8,14m Breed)
- Ligging tuin
- Noordwest
Garage
- Soort garage
- Geen garage
Parkeren
- Soort parkeergelegenheid
- Openbaar parkeren