Adriaen Brouwerstraat 130
€ 299.000 k.k.
Maassluis
Portiekflat
57 m²
1 slaapkamer
In overleg
Op een prachtige plek in Maassluis, met uitzicht over de Boonervliet en de groene wijk, ligt dit moderne 2-kamer appartement op de 9e verdieping. Hier woon je letterlijk boven het alledaagse, met elke dag weer een ander uitzicht. Van de ochtendzon die opkomt boven het water tot de avondlucht die langzaam kleurt boven de stad. Het complex ligt in een rustige, verzorgde omgeving met volop groen, terwijl alle voorzieningen binnen handbereik zijn. Winkelcentrum Koningshoek ligt op korte afstand, net als het openbaar vervoer en het gezellige oude centrum van Maassluis met haar havens, terrassen en restaurants. Het appartement zelf is licht, verzorgd en direct te betrekken. De woonkamer met grote raampartijen biedt een vrij uitzicht en veel lichtinval, terwijl het ruime hoekbalkon een heerlijke plek is om buiten te zitten, in de zon of juist in de schaduw. De open keuken is van alle gemakken voorzien en ook de moderne badkamer en het toilet zijn in een eigentijdse stijl uitgevoerd. Verder beschikt het appartement over een eigen berging, elektrisch bedienbare screens en hardhouten kozijnen met dubbel glas. Rondom het gebouw is voldoende parkeergelegenheid en de actieve VvE zorgt voor goed onderhoud. Een heerlijke plek voor wie met uitzicht wil wonen, met alle voorzieningen van Maassluis binnen handbereik én de rust van water en groen als dagelijks decor.
INDELING
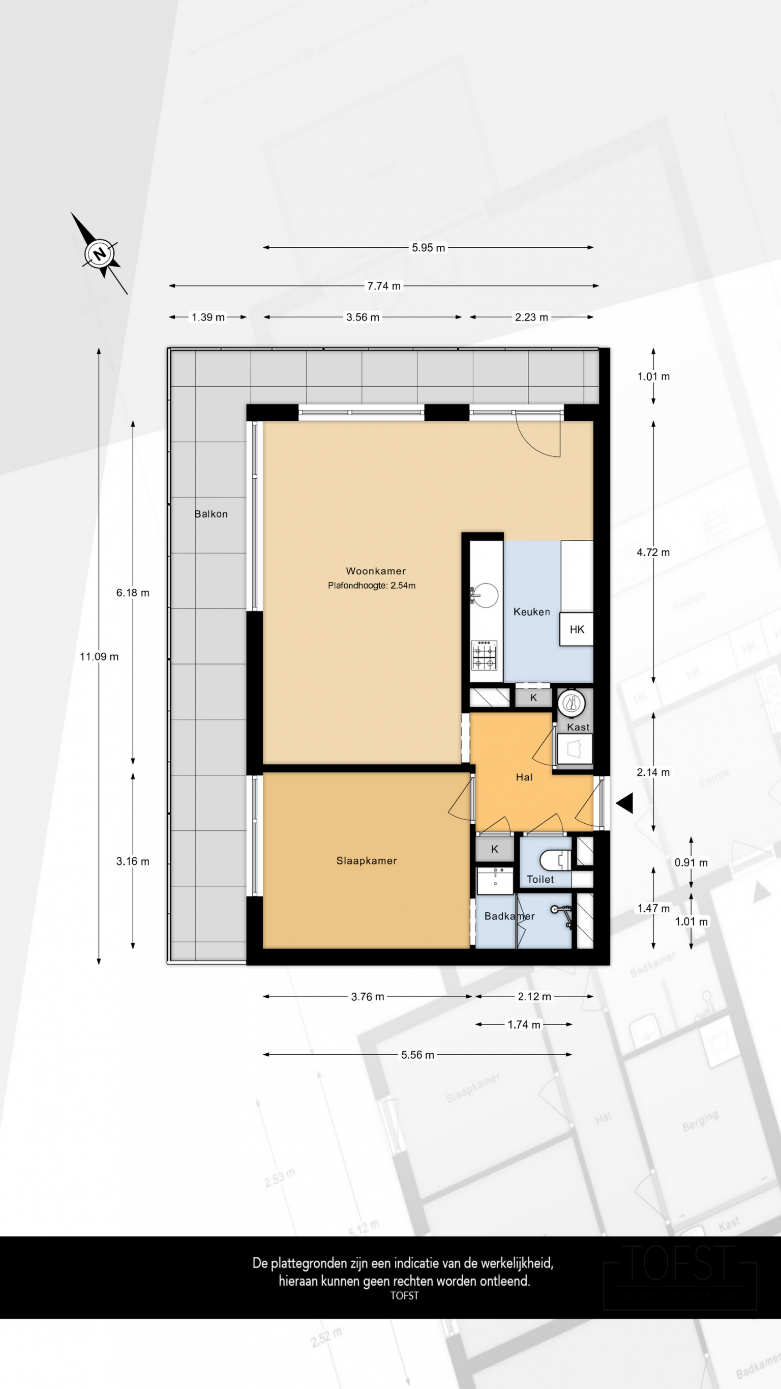
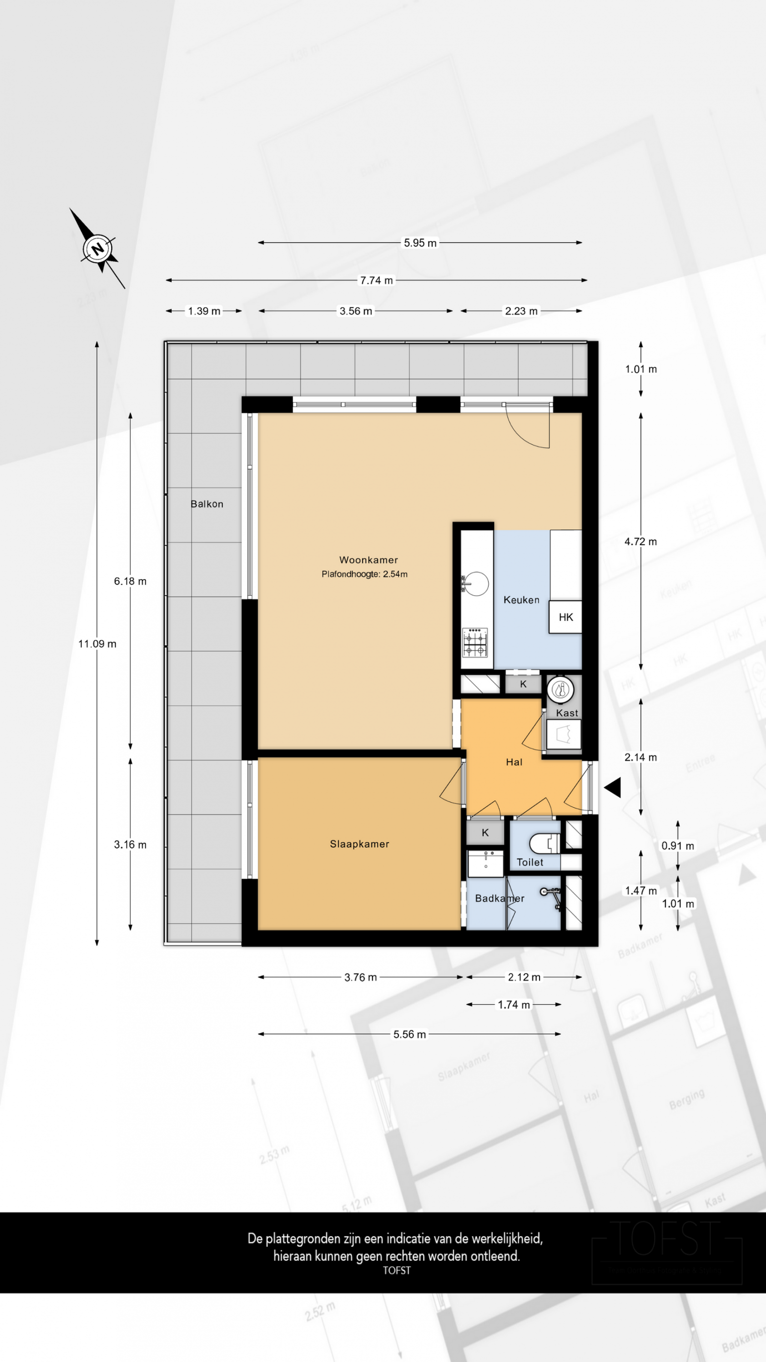
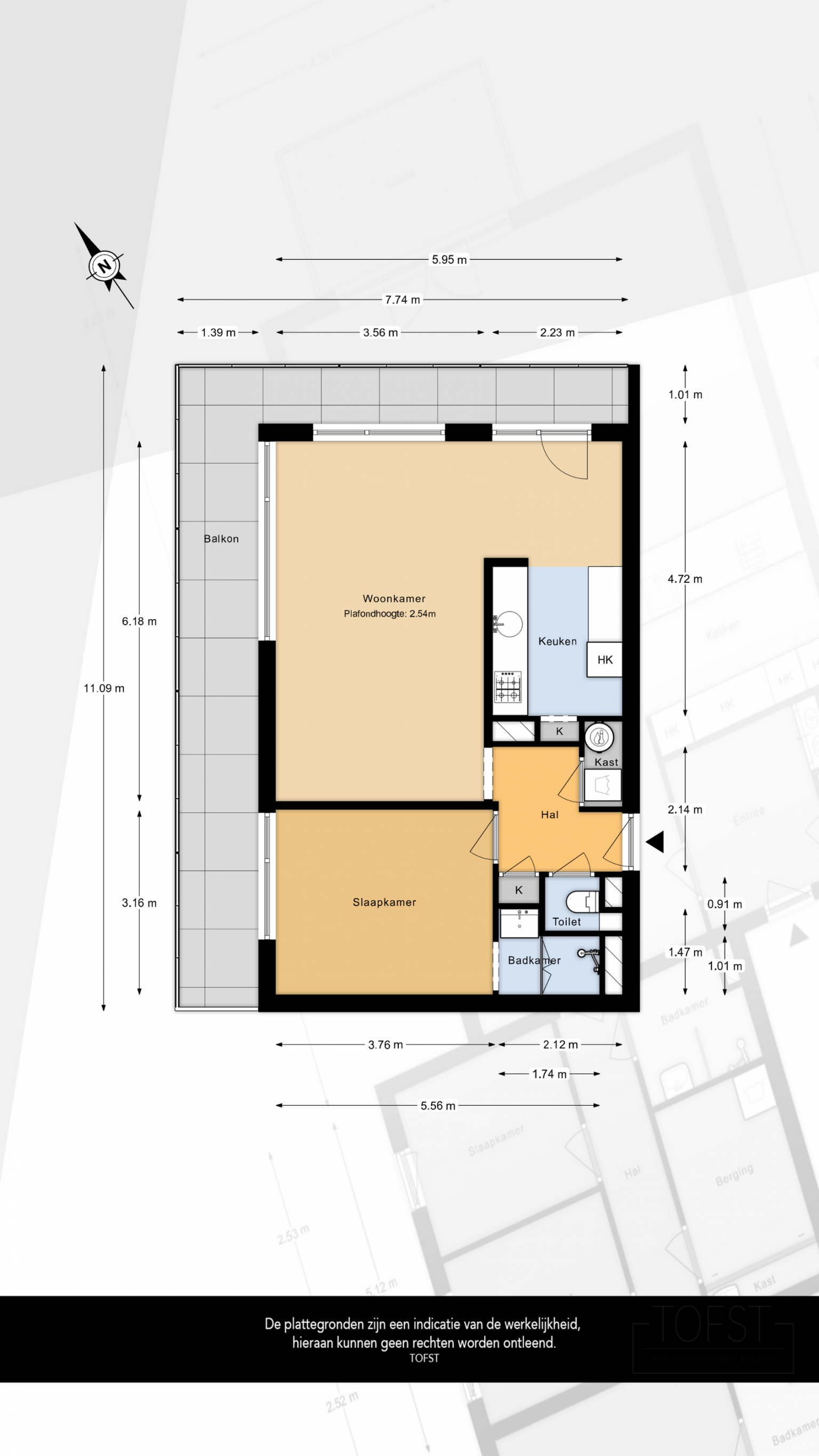
De centrale entreehal heeft een afgesloten portaal met de brievenbussen en een bellentableau. Daarna is er via een lift en een trap toegang tot de verdiepingen en de eigen berging.
APPARTEMENT
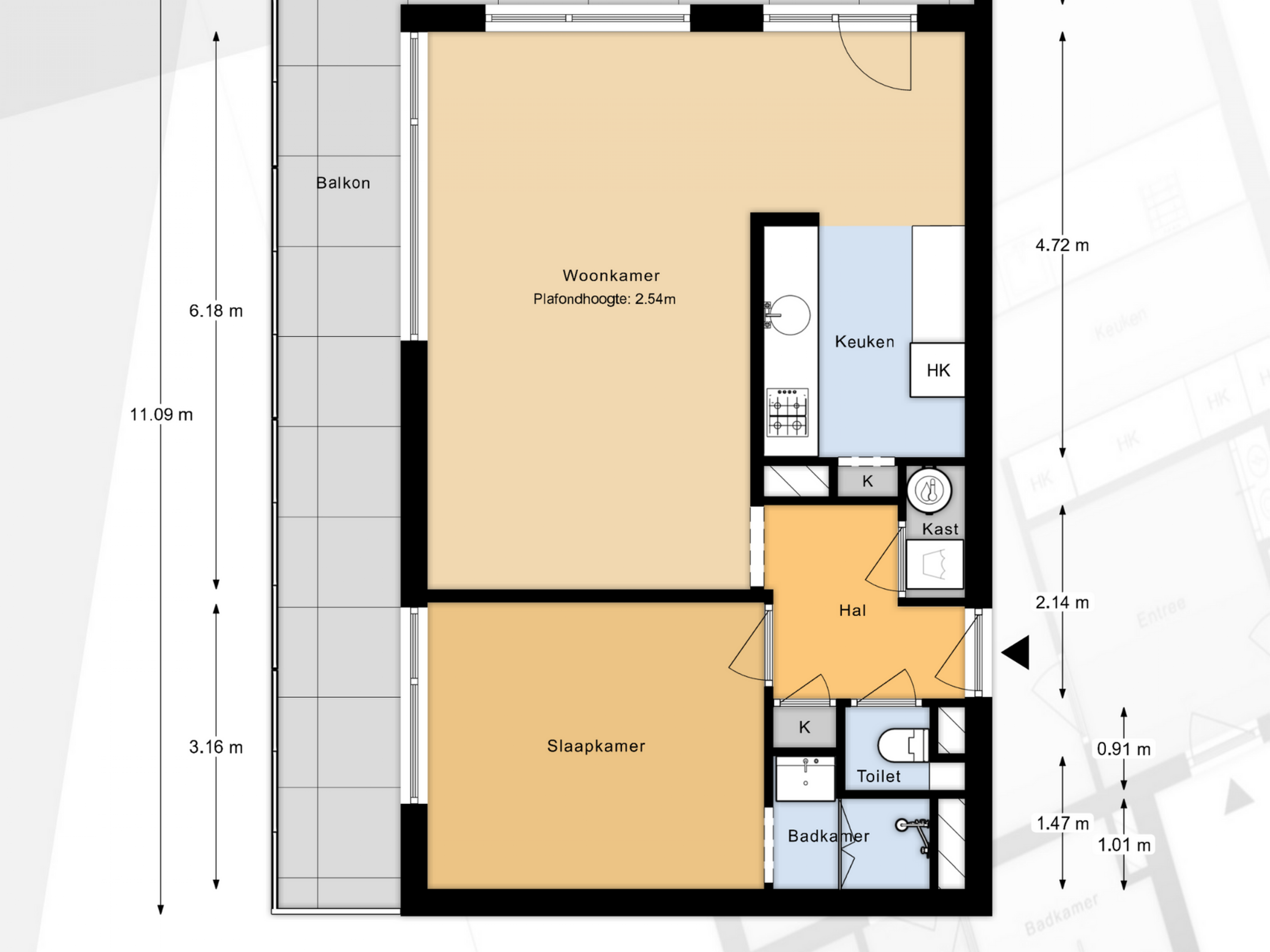
Binnenkomst in de entreehal die toegang geeft tot het volledig betegelde toilet, een vaste kast, de slaapkamer, de woonkamer en een tweede vaste kast met daarin een wasmachine aansluiting en de 50L boiler. De wanden zijn in de hal afgewerkt met granol en de vloer is voorzien van laminaat, die drempelloos is doorgetrokken naar de woonkamer.
De slaapkamer is een fijne lichte ruimte met uitzicht naar het balkon en beschikt over een open verbinding met de badkamer. De wanden zijn voorzien van glasweefselbehang en op de vloer ligt laminaat.
De moderne badkamer is uitgevoerd in dezelfde stijl als het toilet en is volledig betegeld. Het is uitgerust met een wastafelmeubel met daarboven een spiegel en een inloopdouche met dubbele deuren en een nis met verlichting voor badproducten. Het plafond is glad afgewerkt en voorzien van inbouw spots en een afzuigpunt.
De woonkamer beschikt over grote raampartijen die een wijds uitzicht geven en zorgen voor veel lichtinval. Er is een deur naar het balkon en de open keuken is gescheiden van de woonkamer doormiddel van een halfhoog muurtje met daarboven een koof met inbouw spots. Alle wanden zijn glad afgewerkt en de laminaatvloer in de woonkamer is doormiddel van een strip mooi gescheiden van de laminaatvloer in de keuken.
De keuken beschikt over een recht keukenblok dat is geplaatst tegen het halfhoge muurtje en een hoge kast aan de andere zijde met daaraan een werkblad met bovenkasten. Er is diverse apparatuur aanwezig, zoals een vaatwasser, een oven, een combi oven/magnetron, een 4-pits gaskookplaat en een afzuigkap. Daarnaast is er in de wand nog een open vaste kast met planken gemaakt.
Het balkon is op de hoek gelegen en overdekt door het bovengelegen balkon. Hierdoor is er altijd een fijn plekje in de zon of de schaduw en biedt het een wisselend uitzicht over de wijk en het water. De glaspanelen in de balustrade zorgen ervoor dat het uitzicht niet wordt belemmerd en aan de gevel hangen langs de kozijnen elektrisch bedienbare screens.
BIJZONDERHEDEN
- De woning is geheel voorzien van hardhouten kozijnen met dubbel glas
- Er hangen elektrisch bedienbare screens aan de gevel
- Verwarming doormiddel van blokverwarming
- Warm water via de 50L boiler
- Groot balkon met een wijds uitzicht
- Beschikking over een eigen berging
- Vrij parkeren rondom het complex
- Actieve VvE (bijdrage €314,24 per maand, inclusief stookkosten)
- Bouwjaar 1972
- Energielabel C
- Oplevering in overleg
Deze informatie is door ons met de nodige zorgvuldigheid samengesteld. Prins NVM Makelaars streeft ernaar de informatie op haar website / brochures en andere uitingen zo actueel en nauwkeurig mogelijk weer te geven. Onzerzijds wordt echter geen enkele aansprakelijkheid aanvaard voor enige onvolledigheid, onjuistheid of anderszins, dan wel de gevolgen daarvan
Move.nl Dossier
Wanneer u bij ons een bezichtiging heeft ingepland, krijgt u toegang tot het Move.nl bezichtigingsdossier van de woning.
Woonoppervlakte
De Meetinstructie is gebaseerd op de NEN2580. De Meetinstructie is bedoeld om een meer eenduidige manier van meten toe te passen voor het geven van een indicatie van de gebruiksoppervlakte. De Meetinstructie sluit verschillen in meetuitkomsten niet volledig uit, door bijvoorbeeld interpretatieverschillen, afrondingen of beperkingen bij het uitvoeren van de meting.
Indien de exacte maten voor een koper van cruciaal belang zijn, adviseren wij deze zelf na te meten. De (kandidaat)koper(s) zullen, indien gewenst, daartoe in de gelegenheid gesteld worden op een passend moment teneinde teleurstellingen en schade te voorkomen.
Ouderdomsclausule
Bij woningen ouder dan 30 jaar zal er standaard in de koopakte een ouderdomsclausule worden opgenomen.
Notariskeuze en kosten
In principe ligt de notariskeuze bij de koper. Het doorhalen van de hypothecaire inschrijving in het kadaster moet door de verkoper betaald worden. Zijn de kosten voor deze doorhaling hoger dan € 400,- inclusief BTW dan wordt het meerdere bij de koper in rekening gebracht. Indien de koper een notaris kiest buiten een straal van 20 kilometer van de verkochte onroerende zaak dan zijn de eventuele kosten die de notaris berekent voor een eventuele verkoopvolmacht en legalisatie hiervan ten behoeve van de verkoper voor rekening van de koper.
Getekende koopovereenkomst
Een mondelinge overeenstemming tussen de particuliere verkoper en de particuliere koper is niet rechtsgeldig. Met andere woorden: er is geen koop. Er is pas sprake van een rechtsgeldige koop als de particuliere verkoper en de particuliere koper de koopovereenkomst hebben ondertekend. Dit vloeit voort uit artikel 7:2 Burgerlijk Wetboek. Een bevestiging van de mondelinge overeenstemming per e-mail of een toegestuurd concept van de koopovereenkomst wordt overigens niet gezien als een ‘ondertekende koopovereenkomst’.
Gunning
Verkoper behoudt zich uitdrukkelijk het recht voor het object te gunnen aan de gegadigde van zijn keuze. Nadrukkelijk zij vermeld dat alle informatie in deze brochure moet beschouwd worden als een uitnodiging tot het doen van een bod of om in onderhandeling te treden. Er kunnen geen rechten worden ontleend aan deze informatie.
INDELING
De centrale entreehal heeft een afgesloten portaal met de brievenbussen en een bellentableau. Daarna is er via een lift en een trap toegang tot de verdiepingen en de eigen berging.
APPARTEMENT
Binnenkomst in de entreehal die toegang geeft tot het volledig betegelde toilet, een vaste kast, de slaapkamer, de woonkamer en een tweede vaste kast met daarin een wasmachine aansluiting en de 50L boiler. De wanden zijn in de hal afgewerkt met granol en de vloer is voorzien van laminaat, die drempelloos is doorgetrokken naar de woonkamer.
De slaapkamer is een fijne lichte ruimte met uitzicht naar het balkon en beschikt over een open verbinding met de badkamer. De wanden zijn voorzien van glasweefselbehang en op de vloer ligt laminaat.
De moderne badkamer is uitgevoerd in dezelfde stijl als het toilet en is volledig betegeld. Het is uitgerust met een wastafelmeubel met daarboven een spiegel en een inloopdouche met dubbele deuren en een nis met verlichting voor badproducten. Het plafond is glad afgewerkt en voorzien van inbouw spots en een afzuigpunt.
De woonkamer beschikt over grote raampartijen die een wijds uitzicht geven en zorgen voor veel lichtinval. Er is een deur naar het balkon en de open keuken is gescheiden van de woonkamer doormiddel van een halfhoog muurtje met daarboven een koof met inbouw spots. Alle wanden zijn glad afgewerkt en de laminaatvloer in de woonkamer is doormiddel van een strip mooi gescheiden van de laminaatvloer in de keuken.
De keuken beschikt over een recht keukenblok dat is geplaatst tegen het halfhoge muurtje en een hoge kast aan de andere zijde met daaraan een werkblad met bovenkasten. Er is diverse apparatuur aanwezig, zoals een vaatwasser, een oven, een combi oven/magnetron, een 4-pits gaskookplaat en een afzuigkap. Daarnaast is er in de wand nog een open vaste kast met planken gemaakt.
Het balkon is op de hoek gelegen en overdekt door het bovengelegen balkon. Hierdoor is er altijd een fijn plekje in de zon of de schaduw en biedt het een wisselend uitzicht over de wijk en het water. De glaspanelen in de balustrade zorgen ervoor dat het uitzicht niet wordt belemmerd en aan de gevel hangen langs de kozijnen elektrisch bedienbare screens.
BIJZONDERHEDEN
- De woning is geheel voorzien van hardhouten kozijnen met dubbel glas
- Er hangen elektrisch bedienbare screens aan de gevel
- Verwarming doormiddel van blokverwarming
- Warm water via de 50L boiler
- Groot balkon met een wijds uitzicht
- Beschikking over een eigen berging
- Vrij parkeren rondom het complex
- Actieve VvE (bijdrage €314,24 per maand, inclusief stookkosten)
- Bouwjaar 1972
- Energielabel C
- Oplevering in overleg
Deze informatie is door ons met de nodige zorgvuldigheid samengesteld. Prins NVM Makelaars streeft ernaar de informatie op haar website / brochures en andere uitingen zo actueel en nauwkeurig mogelijk weer te geven. Onzerzijds wordt echter geen enkele aansprakelijkheid aanvaard voor enige onvolledigheid, onjuistheid of anderszins, dan wel de gevolgen daarvan
Move.nl Dossier
Wanneer u bij ons een bezichtiging heeft ingepland, krijgt u toegang tot het Move.nl bezichtigingsdossier van de woning.
Woonoppervlakte
De Meetinstructie is gebaseerd op de NEN2580. De Meetinstructie is bedoeld om een meer eenduidige manier van meten toe te passen voor het geven van een indicatie van de gebruiksoppervlakte. De Meetinstructie sluit verschillen in meetuitkomsten niet volledig uit, door bijvoorbeeld interpretatieverschillen, afrondingen of beperkingen bij het uitvoeren van de meting.
Indien de exacte maten voor een koper van cruciaal belang zijn, adviseren wij deze zelf na te meten. De (kandidaat)koper(s) zullen, indien gewenst, daartoe in de gelegenheid gesteld worden op een passend moment teneinde teleurstellingen en schade te voorkomen.
Ouderdomsclausule
Bij woningen ouder dan 30 jaar zal er standaard in de koopakte een ouderdomsclausule worden opgenomen.
Notariskeuze en kosten
In principe ligt de notariskeuze bij de koper. Het doorhalen van de hypothecaire inschrijving in het kadaster moet door de verkoper betaald worden. Zijn de kosten voor deze doorhaling hoger dan € 400,- inclusief BTW dan wordt het meerdere bij de koper in rekening gebracht. Indien de koper een notaris kiest buiten een straal van 20 kilometer van de verkochte onroerende zaak dan zijn de eventuele kosten die de notaris berekent voor een eventuele verkoopvolmacht en legalisatie hiervan ten behoeve van de verkoper voor rekening van de koper.
Getekende koopovereenkomst
Een mondelinge overeenstemming tussen de particuliere verkoper en de particuliere koper is niet rechtsgeldig. Met andere woorden: er is geen koop. Er is pas sprake van een rechtsgeldige koop als de particuliere verkoper en de particuliere koper de koopovereenkomst hebben ondertekend. Dit vloeit voort uit artikel 7:2 Burgerlijk Wetboek. Een bevestiging van de mondelinge overeenstemming per e-mail of een toegestuurd concept van de koopovereenkomst wordt overigens niet gezien als een ‘ondertekende koopovereenkomst’.
Gunning
Verkoper behoudt zich uitdrukkelijk het recht voor het object te gunnen aan de gegadigde van zijn keuze. Nadrukkelijk zij vermeld dat alle informatie in deze brochure moet beschouwd worden als een uitnodiging tot het doen van een bod of om in onderhandeling te treden. Er kunnen geen rechten worden ontleend aan deze informatie.
Kenmerken
Overdracht
- vraagprijs
- € 299.000 k.k.
- Status
- Verkocht onder voorbehoud
- Aanvaarding
- In overleg
Bouw
- Soort woning
- Portiekflat, appartement
- Soort bouw
- Bestaande bouw
Oppervlakten en inhoud
- Woonoppervlakte
- 57 m²
- Externe bergruimte
- 7 m²
- Inhoud
- 182 m³
Indeling
- Aantal kamers
- 2 kamers (1 slaapkamer)
- Aantal verdiepingen
- 1 Verdiepingen
- Voorzieningen
- Buitenzonwering, tv kabel, airconditioning, lift
Energie
- Energielabel
- C
- Isolatie
- Dubbel glas
Buitenruimte
- Ligging
- In woonwijk, vrij uitzicht
- Tuin
- Geen tuin
Garage
- Soort garage
- Geen garage
Parkeren
- Soort parkeergelegenheid
- Openbaar parkeren