Zeemandreef 3
€ 420.000 k.k.
Maassluis
Eengezinswoning
107 m²
3 slaapkamers
Noordoost
In overleg
In een rustige en groene woonwijk, waar brede straten en volgroeide bomen zorgen voor een ontspannen sfeer, ligt deze charmante twee-onder-een-kapwoning met carport en twee bergingen. Hier woon je op een plek waar alles dichtbij is. Winkels en scholen bevinden zich op loopafstand, het gezellige centrum van Maassluis is binnen enkele minuten te bereiken en ook de Nieuwe Waterweg en het omliggende groen met haar wandel- en fietsroutes ligt om de hoek. Bovendien ben je via de nabijgelegen uitvalswegen en het openbaar vervoer zo in Rotterdam of op het strand van Hoek van Holland. De woning zelf biedt een solide basis met kunststof kozijnen en dubbel glas, een energielabel B en verrassend veel ruimte, zowel binnen als buiten. Op de begane grond vind je een lichte woonkamer met toegang tot de achtertuin, een afgesloten entreehal met garderobe en meterkast en een nette keuken in hoekopstelling voorzien van diverse inbouwapparatuur zoals een koel-/vriescombinatie, combi-oven, 4-pits gaskookplaat en afzuigkap. Ook is er een halletje met toilet en trap naar de eerste verdieping. Boven zijn twee goed bemeten slaapkamers, waarvan één met vaste kasten en een volledig betegelde badkamer met douchecabine, wastafel, toilet, handdoeken radiator en wasmachineaansluiting. De tweede verdieping is een open ruimte die eenvoudig naar eigen wens kan worden ingericht, bijvoorbeeld als extra slaapkamer, werkkamer of hobbyruimte. Hoewel het interieur wat aandacht kan gebruiken, is dit juist een kans om alles naar eigen smaak te moderniseren. De onderhoudsvriendelijke tuin, de carport en de twee praktische bergingen maken het plaatje compleet. Dit is een woning waar je met wat liefde en creativiteit een heerlijk thuis van maakt, in een prettige buurt met alle gemakken binnen handbereik.
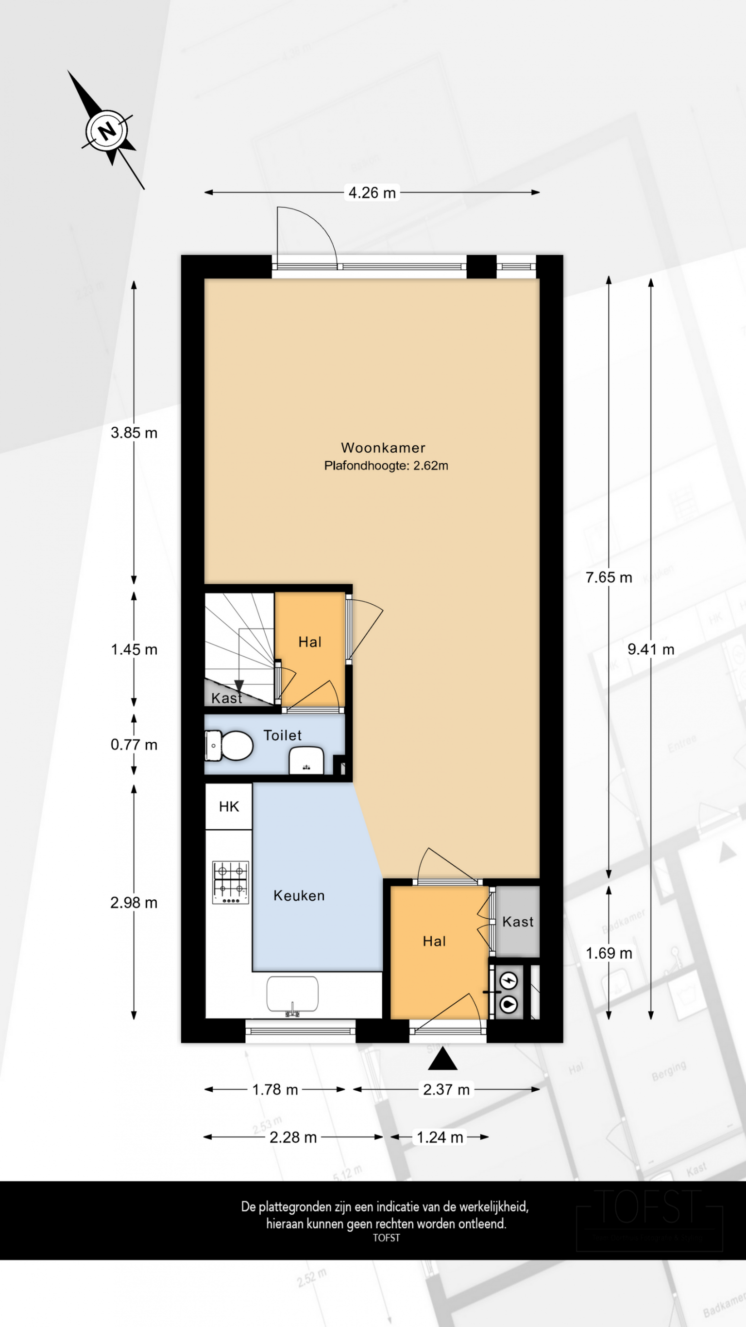
INDELING
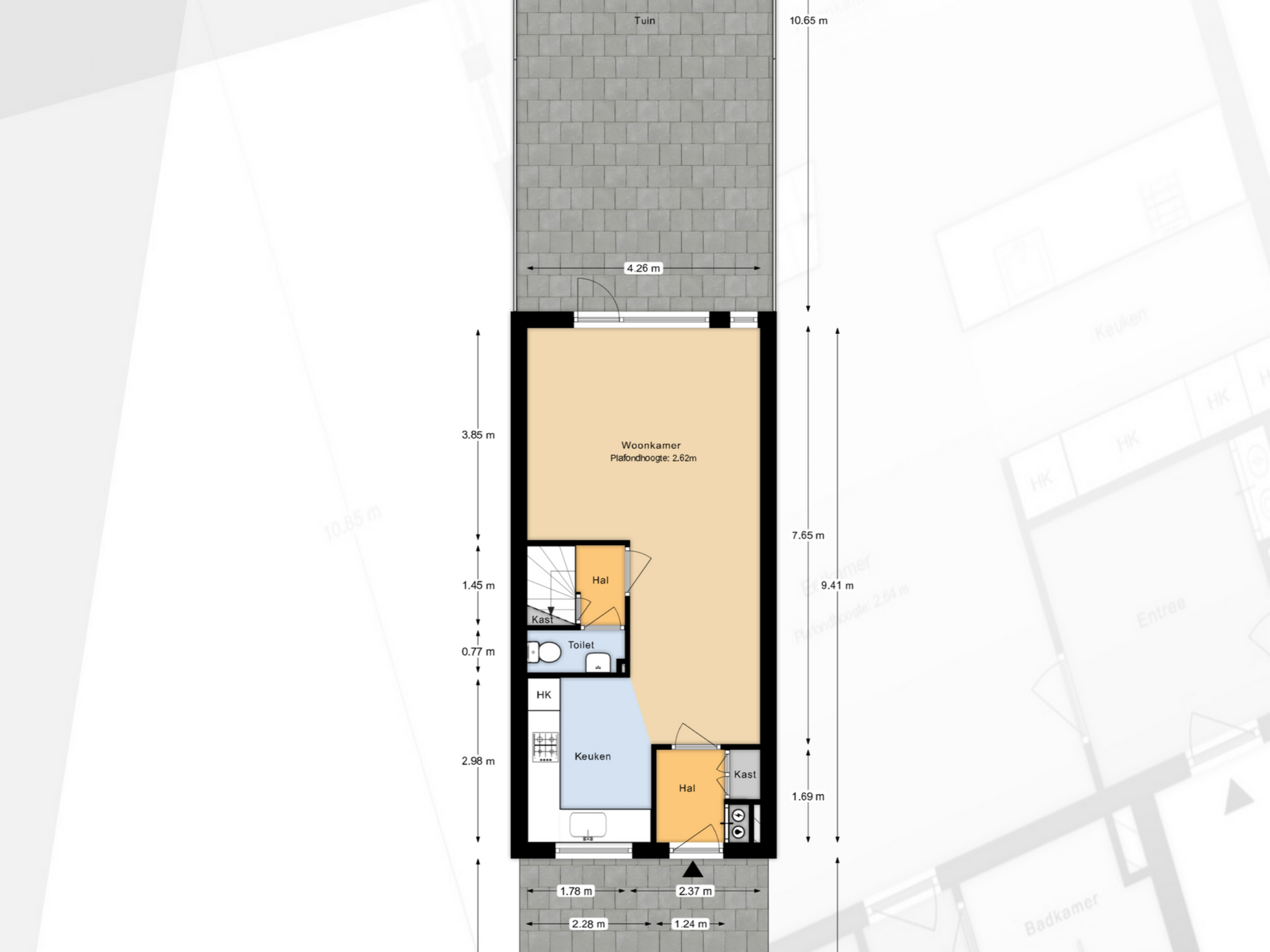
Vanaf de straat is er via de carport toegang tot de voortuin, waarna de voordeur te bereiken is. De voortuin is volledig bestraat en beschikt naast de carport ook over een berging.
BEGANE GROND
Na de voordeur is er een binnenkomst in de afsluitbare entreehal, die is voorzien van de meterkast en een garderobekast. De wanden en het plafond zijn afgewerkt met kunststof panelen en de vloer, die drempelloos doorloopt naar de woonkamer en keuken, is voorzien van vinyl. Na de hal is er toegang tot de woonkamer. Hierbij is de zithoek gesitueerd aan de achterzijde. Hier bevindt zich een deur naar de achtertuin en in het verlengde naar de voorzijde is er een deur naar een halletje. Via een toog is er een directe toegang tot de keuken aan de voorzijde. Deze is opgesteld in een hoek en beschikt over een hoge kast en bovenkasten. De achterwand is betegeld en er is diverse apparatuur aanwezig, zoals een koel-/vriescombinatie, een magnetron, een 4-pits gaskookplaat en een, in een bovenkast verwerkte, afzuigkap. Alle wanden zijn verder afgewerkt met spachtelputz en de plafonds zijn gespoten.
De achtertuin is onderhoudsvriendelijk aangelegd met een volledige bestrating. Er zijn lage schuttingen als afscheiding naar de buren en achterin de tuin stat een stenen berging met een houten deur.
Vanuit het halletje is er een trap naar de 1e verdieping en is er toegang tot het toilet. Deze is gedeeltelijk betegeld en extra voorzien van een fonteintje.
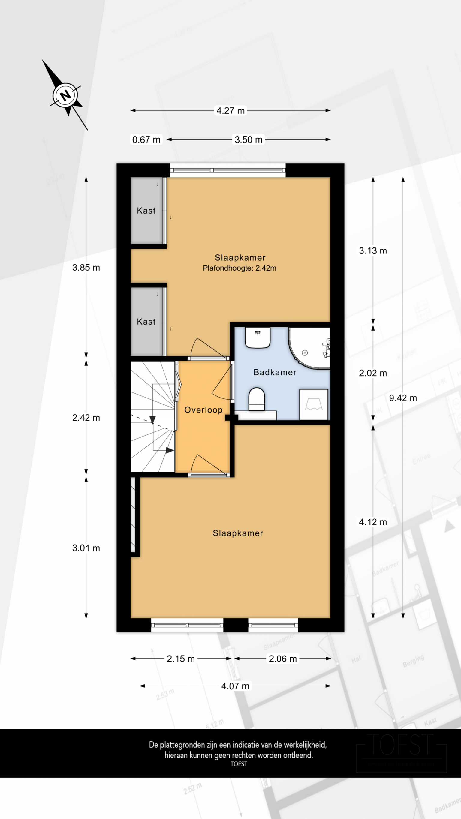
1E VERDIEPING
Vanaf de overloop is er toegang tot twee slaapkamers, de inpandige badkamer en de trap naar de 2e verdieping. Deze is afsluitbaar doormiddel van een vouwdeur en ook hier is de vloer geheel voorzien van vinyl en zijn de wanden gesausd.
De eerste slaapkamer is gelegen aan de achterzijde en beschikt over twee vaste kasten met schuifdeuren. De wanden zijn hier behangen en op de vloer ligt vinyl. De tweede slaapkamer is gelegen aan de voorzijde en hier zijn de wanden gesausd en is de vloer voorzien van vinyl.
De inpandige badkamer is volledig betegeld en uitgerust met een douchecabine, een wastafel en een toilet. Daarnaast hangt er een handdoeken radiator en is er een aansluiting voor een wasmachine.
2E VERDIEPING
Deze open verdieping loopt van de voorzijde naar de achterzijde en is geheel naar eigen wens te gebruiken en/of in te delen. De ramen aan weerszijde zorgen voor voldoende daglicht en de vloer is afgewerkt met vinyl. Naast de trap hangt de opstelling van de Cv-ketel en de aanwezige balken zorgen voor een stevige constructie.
BIJZONDERHEDEN
-Geheel voorzien van kunststof kozijnen met dubbel glas
-De meterkast is voorzien van slimme meters
-Cv-ketel voor verwarming en warm water (bouwjaar 2018)
-Beschikken over een carport
-Twee bergingen aanwezig
-Gelegen op eigen grond
-Bouwjaar 1977
-Energielabel B
-Oplevering in overleg, kan snel
Deze informatie is door ons met de nodige zorgvuldigheid samengesteld. Prins NVM Makelaars streeft ernaar de informatie op haar website / brochures en andere uitingen zo actueel en nauwkeurig mogelijk weer te geven. Onzerzijds wordt echter geen enkele aansprakelijkheid aanvaard voor enige onvolledigheid, onjuistheid of anderszins, dan wel de gevolgen daarvan
Move.nl Dossier
Wanneer u bij ons een bezichtiging heeft ingepland, krijgt u toegang tot het Move.nl bezichtigingsdossier van de woning.
Woonoppervlakte
De Meetinstructie is gebaseerd op de NEN2580. De Meetinstructie is bedoeld om een meer eenduidige manier van meten toe te passen voor het geven van een indicatie van de gebruiksoppervlakte. De Meetinstructie sluit verschillen in meetuitkomsten niet volledig uit, door bijvoorbeeld interpretatieverschillen, afrondingen of beperkingen bij het uitvoeren van de meting.
Indien de exacte maten voor een koper van cruciaal belang zijn, adviseren wij deze zelf na te meten. De (kandidaat)koper(s) zullen, indien gewenst, daartoe in de gelegenheid gesteld worden op een passend moment teneinde teleurstellingen en schade te voorkomen.
Ouderdomsclausule
Bij woningen ouder dan 30 jaar zal er standaard in de koopakte een ouderdomsclausule worden opgenomen.
Notariskeuze en kosten
In principe ligt de notariskeuze bij de koper. Het doorhalen van de hypothecaire inschrijving in het kadaster moet door de verkoper betaald worden. Zijn de kosten voor deze doorhaling hoger dan € 400,- inclusief BTW dan wordt het meerdere bij de koper in rekening gebracht. Indien de koper een notaris kiest buiten een straal van 20 kilometer van de verkochte onroerende zaak dan zijn de eventuele kosten die de notaris berekent voor een eventuele verkoopvolmacht en legalisatie hiervan ten behoeve van de verkoper voor rekening van de koper.
Getekende koopovereenkomst
Een mondelinge overeenstemming tussen de particuliere verkoper en de particuliere koper is niet rechtsgeldig. Met andere woorden: er is geen koop. Er is pas sprake van een rechtsgeldige koop als de particuliere verkoper en de particuliere koper de koopovereenkomst hebben ondertekend. Dit vloeit voort uit artikel 7:2 Burgerlijk Wetboek. Een bevestiging van de mondelinge overeenstemming per e-mail of een toegestuurd concept van de koopovereenkomst wordt overigens niet gezien als een ‘ondertekende koopovereenkomst’.
Gunning
Verkoper behoudt zich uitdrukkelijk het recht voor het object te gunnen aan de gegadigde van zijn keuze. Nadrukkelijk zij vermeld dat alle informatie in deze brochure moet beschouwd worden als een uitnodiging tot het doen van een bod of om in onderhandeling te treden. Er kunnen geen rechten worden ontleend aan deze informatie.
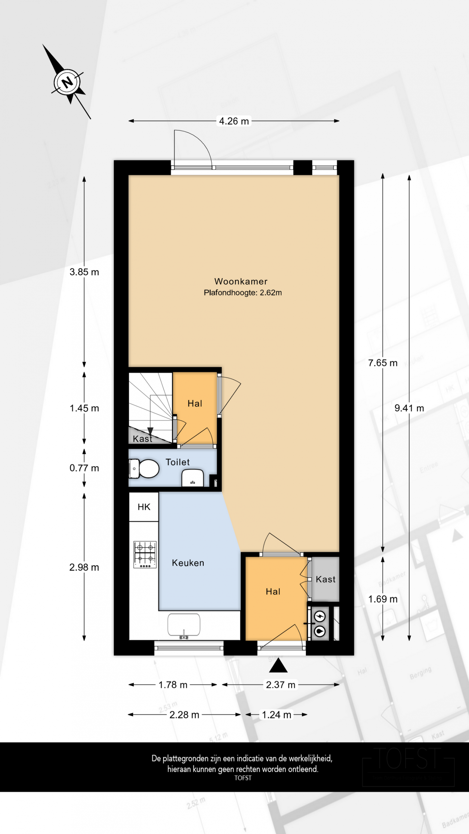
INDELING
Vanaf de straat is er via de carport toegang tot de voortuin, waarna de voordeur te bereiken is. De voortuin is volledig bestraat en beschikt naast de carport ook over een berging.
BEGANE GROND
Na de voordeur is er een binnenkomst in de afsluitbare entreehal, die is voorzien van de meterkast en een garderobekast. De wanden en het plafond zijn afgewerkt met kunststof panelen en de vloer, die drempelloos doorloopt naar de woonkamer en keuken, is voorzien van vinyl. Na de hal is er toegang tot de woonkamer. Hierbij is de zithoek gesitueerd aan de achterzijde. Hier bevindt zich een deur naar de achtertuin en in het verlengde naar de voorzijde is er een deur naar een halletje. Via een toog is er een directe toegang tot de keuken aan de voorzijde. Deze is opgesteld in een hoek en beschikt over een hoge kast en bovenkasten. De achterwand is betegeld en er is diverse apparatuur aanwezig, zoals een koel-/vriescombinatie, een magnetron, een 4-pits gaskookplaat en een, in een bovenkast verwerkte, afzuigkap. Alle wanden zijn verder afgewerkt met spachtelputz en de plafonds zijn gespoten.
De achtertuin is onderhoudsvriendelijk aangelegd met een volledige bestrating. Er zijn lage schuttingen als afscheiding naar de buren en achterin de tuin stat een stenen berging met een houten deur.
Vanuit het halletje is er een trap naar de 1e verdieping en is er toegang tot het toilet. Deze is gedeeltelijk betegeld en extra voorzien van een fonteintje.
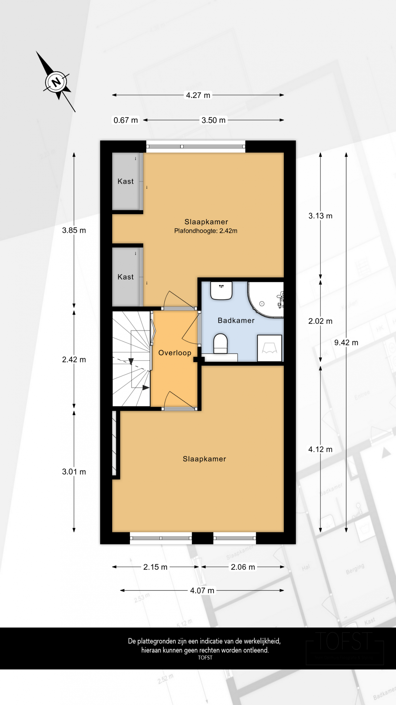
1E VERDIEPING
Vanaf de overloop is er toegang tot twee slaapkamers, de inpandige badkamer en de trap naar de 2e verdieping. Deze is afsluitbaar doormiddel van een vouwdeur en ook hier is de vloer geheel voorzien van vinyl en zijn de wanden gesausd.
De eerste slaapkamer is gelegen aan de achterzijde en beschikt over twee vaste kasten met schuifdeuren. De wanden zijn hier behangen en op de vloer ligt vinyl. De tweede slaapkamer is gelegen aan de voorzijde en hier zijn de wanden gesausd en is de vloer voorzien van vinyl.
De inpandige badkamer is volledig betegeld en uitgerust met een douchecabine, een wastafel en een toilet. Daarnaast hangt er een handdoeken radiator en is er een aansluiting voor een wasmachine.
2E VERDIEPING
Deze open verdieping loopt van de voorzijde naar de achterzijde en is geheel naar eigen wens te gebruiken en/of in te delen. De ramen aan weerszijde zorgen voor voldoende daglicht en de vloer is afgewerkt met vinyl. Naast de trap hangt de opstelling van de Cv-ketel en de aanwezige balken zorgen voor een stevige constructie.
BIJZONDERHEDEN
-Geheel voorzien van kunststof kozijnen met dubbel glas
-De meterkast is voorzien van slimme meters
-Cv-ketel voor verwarming en warm water (bouwjaar 2018)
-Beschikken over een carport
-Twee bergingen aanwezig
-Gelegen op eigen grond
-Bouwjaar 1977
-Energielabel B
-Oplevering in overleg, kan snel
Deze informatie is door ons met de nodige zorgvuldigheid samengesteld. Prins NVM Makelaars streeft ernaar de informatie op haar website / brochures en andere uitingen zo actueel en nauwkeurig mogelijk weer te geven. Onzerzijds wordt echter geen enkele aansprakelijkheid aanvaard voor enige onvolledigheid, onjuistheid of anderszins, dan wel de gevolgen daarvan
Move.nl Dossier
Wanneer u bij ons een bezichtiging heeft ingepland, krijgt u toegang tot het Move.nl bezichtigingsdossier van de woning.
Woonoppervlakte
De Meetinstructie is gebaseerd op de NEN2580. De Meetinstructie is bedoeld om een meer eenduidige manier van meten toe te passen voor het geven van een indicatie van de gebruiksoppervlakte. De Meetinstructie sluit verschillen in meetuitkomsten niet volledig uit, door bijvoorbeeld interpretatieverschillen, afrondingen of beperkingen bij het uitvoeren van de meting.
Indien de exacte maten voor een koper van cruciaal belang zijn, adviseren wij deze zelf na te meten. De (kandidaat)koper(s) zullen, indien gewenst, daartoe in de gelegenheid gesteld worden op een passend moment teneinde teleurstellingen en schade te voorkomen.
Ouderdomsclausule
Bij woningen ouder dan 30 jaar zal er standaard in de koopakte een ouderdomsclausule worden opgenomen.
Notariskeuze en kosten
In principe ligt de notariskeuze bij de koper. Het doorhalen van de hypothecaire inschrijving in het kadaster moet door de verkoper betaald worden. Zijn de kosten voor deze doorhaling hoger dan € 400,- inclusief BTW dan wordt het meerdere bij de koper in rekening gebracht. Indien de koper een notaris kiest buiten een straal van 20 kilometer van de verkochte onroerende zaak dan zijn de eventuele kosten die de notaris berekent voor een eventuele verkoopvolmacht en legalisatie hiervan ten behoeve van de verkoper voor rekening van de koper.
Getekende koopovereenkomst
Een mondelinge overeenstemming tussen de particuliere verkoper en de particuliere koper is niet rechtsgeldig. Met andere woorden: er is geen koop. Er is pas sprake van een rechtsgeldige koop als de particuliere verkoper en de particuliere koper de koopovereenkomst hebben ondertekend. Dit vloeit voort uit artikel 7:2 Burgerlijk Wetboek. Een bevestiging van de mondelinge overeenstemming per e-mail of een toegestuurd concept van de koopovereenkomst wordt overigens niet gezien als een ‘ondertekende koopovereenkomst’.
Gunning
Verkoper behoudt zich uitdrukkelijk het recht voor het object te gunnen aan de gegadigde van zijn keuze. Nadrukkelijk zij vermeld dat alle informatie in deze brochure moet beschouwd worden als een uitnodiging tot het doen van een bod of om in onderhandeling te treden. Er kunnen geen rechten worden ontleend aan deze informatie.
Kenmerken
Overdracht
- vraagprijs
- € 420.000 k.k.
- Status
- Verkocht onder voorbehoud
- Aanvaarding
- In overleg
Bouw
- Soort woning
- Eengezinswoning, 2-onder-1-kapwoning
- Soort bouw
- Bestaande bouw
Oppervlakten en inhoud
- Woonoppervlakte
- 107 m²
- Externe bergruimte
- 17 m²
- Perceel
- 138 m²
- Inhoud
- 381 m³
Indeling
- Aantal kamers
- 4 kamers (3 slaapkamers)
- Aantal verdiepingen
- 3 Verdiepingen
- Voorzieningen
- Tv kabel
Energie
- Energielabel
- B
- Isolatie
- Dubbel glas
Buitenruimte
- Ligging
- In woonwijk
- Tuin
- Achtertuin, voortuin
- Achtertuin
- 51 m² (10,65m Diep / 4,75m Breed)
- Ligging tuin
- Noordoost
Garage
- Soort garage
- Carport
Parkeren
- Soort parkeergelegenheid
- Openbaar parkeren