Merellaan 79
€ 400.000 k.k.
Maassluis
Portiekflat
104 m²
3 slaapkamers
In overleg
Een heerlijk licht 4-kamerappartement op de vierde verdieping met een eigen garage én een uitzicht dat elke dag weer een beetje betovert! Hier woon je op een prachtige plek aan de rand van de stad, met weids zicht over de Nieuwe Waterweg, waar de schepen rustig voorbijvaren. Een unieke combinatie van rust, ruimte en bereikbaarheid. Winkels, het openbaar vervoer en het gezellige centrum van Maassluis liggen allemaal binnen handbereik. Ook wandel je zo richting het groen of de dijk, waar je kunt genieten van de frisse buitenlucht. Het appartement zelf straalt een fijne sfeer uit, met een drempelloos gelegde laminaatvloer door het hele huis en nette wanden met glasweefselbehang. De woonkamer is heerlijk licht dankzij de grote raampartijen en de schuifpui naar het zonnige balkon, waar je in alle rust van het uitzicht kunt genieten. De keuken is praktisch ingericht met veel kastruimte en de nodige apparatuur en ook de drie slaapkamers bieden volop mogelijkheden voor slapen, werken of hobby’s. De badkamer is modern betegeld en voorzien van een inloopdouche en wastafelmeubel, terwijl het toilet met fonteintje apart is. Met een eigen garage, direct toegankelijk vanaf de straat, een goed onderhouden complex met lift en actieve VvE, woon je hier comfortabel en zorgeloos. Kortom, dit is een plek waar je elke dag thuiskomt met een glimlach en waar het uitzicht nooit verveelt.
INDELING
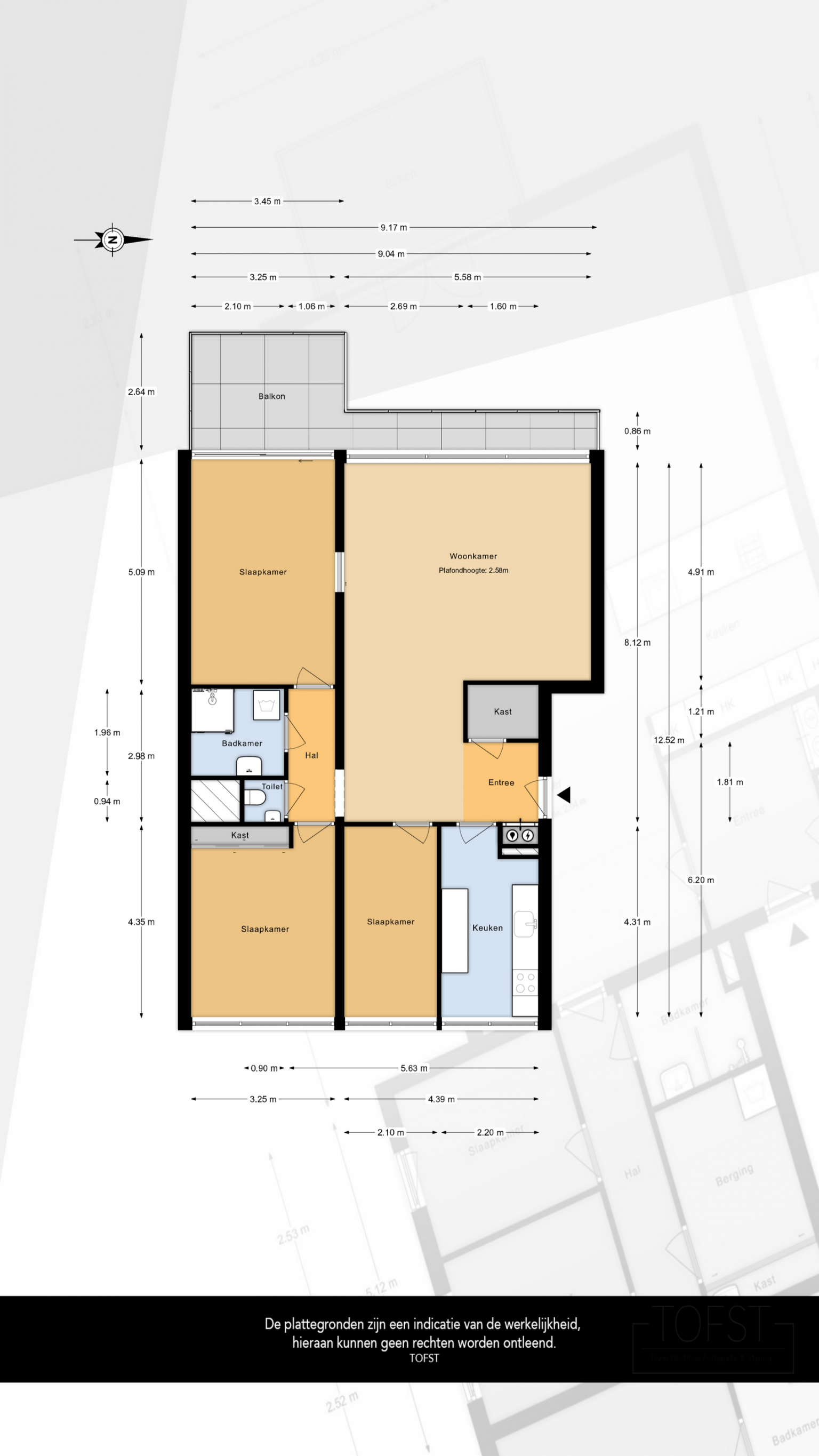
De centrale entree is veilig afgesloten en beschikt over een bellentableau met de brievenbussen. Vanuit de centrale hal is er zowel een trap als een lift naar de verdiepingen. Naast de centrale entree is er een kanteldeur naar de garage die is voorzien van elektra.
APPARTEMENT
De voordeur is bereikbaar vanaf de galerij en geeft toegang tot open entreehal, die in het verlengde in verbinding staat met de woonkamer. De mooie laminaatvloer is drempelloos gelegd in alle vertrekken en de wanden zijn afgewerkt met overschilderd glasweefselbehang. Naast de voordeur bevindt zich de meterkast met daartegenover een vaste kast. Ook is er toegang tot de keuken, de eerste slaapkamer en is er een open verbinding met zowel de hal als de woonkamer.
De keuken beschikt aan weerszijden over een recht keukenblok met veel kastruimte en aan een zijde zijn er ook bovenkasten aanwezig. De keuken is uitgevoerd in een lichte teint en is voorzien van diverse apparatuur, zoals een oven, een kookplaat, een afzuigkap en een close-in boiler.
De eerste en tweede slaapkamer zijn beide gelegen aan de voorzijde van het complex, waarbij de tweede slaapkamer toegankelijk is vanuit de hal en beschikt over een grote vaste kast met schuifdeuren.
Daarnaast is er vanuit de hal ook toegang tot de derde slaapkamer, de badkamer en het gedeeltelijk betegelde toilet, dat extra is voorzien van een fonteintje.
De badkamer is volledig betegeld en uitgerust met een inloopdouche, een wastafelmeubel en een wasmachineaansluiting.
De derde slaapkamer is gelegen aan de achterzijde en heeft een nieuwe, kunststof schuifpui dat toegang geeft tot het balkon. Ook is er een schuifdeur naar de woonkamer en biedt het voldoende ruimte voor een tweepersoons bed en een grote garderobekast.
Het balkon is prettig overdekt en handig voorzien van een gecoate betonvloer. Het heeft een breed zitgedeelte en loopt smal over richting de voorzijde van de woonkamer. Er is een vluchtdeur naar de buren en het geeft een prachtig uitzicht over de omgeving.
De woonkamer heeft heel veel lichtinval dankzij de grote raampartij en vanuit hier zorgt dat voor een uitzicht dat nooit verveeld.
BIJZONDERHEDEN
- De woning is grotendeels voorzien van hardhouten kozijnen met dubbel glas. Met uitzondering van de schuifpui, deze is recentelijk vernieuwd en uitgevoerd in kunststof. Daarnaast is het glas in de woonkamer vervangen
- De buitenzijde van het balkon is voorzien van een elektrisch bedienbaar screen
- Aan de gevel bij de woonkamer hangt een elektrisch bedienbaar uitvalscherm
- Beschikking over een eigen garage met elektra
- Verwarming middels blokverwarming
- Actieve VvE (bijdrage inclusief de garage € 450,- per maand, inclusief voorschot stookkosten)
- Gelegen op eigen grond
- Bouwjaar 1970
- Oplevering in overleg
Deze informatie is door ons met de nodige zorgvuldigheid samengesteld. Prins NVM Makelaars streeft ernaar de informatie op haar website / brochures en andere uitingen zo actueel en nauwkeurig mogelijk weer te geven. Onzerzijds wordt echter geen enkele aansprakelijkheid aanvaard voor enige onvolledigheid, onjuistheid of anderszins, dan wel de gevolgen daarvan
Move.nl Dossier
Wanneer u bij ons een bezichtiging heeft ingepland, krijgt u toegang tot het Move.nl bezichtigingsdossier van de woning.
Woonoppervlakte
De Meetinstructie is gebaseerd op de NEN2580. De Meetinstructie is bedoeld om een meer eenduidige manier van meten toe te passen voor het geven van een indicatie van de gebruiksoppervlakte. De Meetinstructie sluit verschillen in meetuitkomsten niet volledig uit, door bijvoorbeeld interpretatieverschillen, afrondingen of beperkingen bij het uitvoeren van de meting.
Indien de exacte maten voor een koper van cruciaal belang zijn, adviseren wij deze zelf na te meten. De (kandidaat)koper(s) zullen, indien gewenst, daartoe in de gelegenheid gesteld worden op een passend moment teneinde teleurstellingen en schade te voorkomen.
Ouderdomsclausule
Bij woningen ouder dan 30 jaar zal er standaard in de koopakte een ouderdomsclausule worden opgenomen.
Notariskeuze en kosten
In principe ligt de notariskeuze bij de koper. Het doorhalen van de hypothecaire inschrijving in het kadaster moet door de verkoper betaald worden. Zijn de kosten voor deze doorhaling hoger dan € 400,- inclusief BTW dan wordt het meerdere bij de koper in rekening gebracht. Indien de koper een notaris kiest buiten een straal van 20 kilometer van de verkochte onroerende zaak dan zijn de eventuele kosten die de notaris berekent voor een eventuele verkoopvolmacht en legalisatie hiervan ten behoeve van de verkoper voor rekening van de koper.
Getekende koopovereenkomst
Een mondelinge overeenstemming tussen de particuliere verkoper en de particuliere koper is niet rechtsgeldig. Met andere woorden: er is geen koop. Er is pas sprake van een rechtsgeldige koop als de particuliere verkoper en de particuliere koper de koopovereenkomst hebben ondertekend. Dit vloeit voort uit artikel 7:2 Burgerlijk Wetboek. Een bevestiging van de mondelinge overeenstemming per e-mail of een toegestuurd concept van de koopovereenkomst wordt overigens niet gezien als een ‘ondertekende koopovereenkomst’.
Gunning
Verkoper behoudt zich uitdrukkelijk het recht voor het object te gunnen aan de gegadigde van zijn keuze. Nadrukkelijk zij vermeld dat alle informatie in deze brochure moet beschouwd worden als een uitnodiging tot het doen van een bod of om in onderhandeling te treden. Er kunnen geen rechten worden ontleend aan deze informatie.
INDELING
De centrale entree is veilig afgesloten en beschikt over een bellentableau met de brievenbussen. Vanuit de centrale hal is er zowel een trap als een lift naar de verdiepingen. Naast de centrale entree is er een kanteldeur naar de garage die is voorzien van elektra.
APPARTEMENT
De voordeur is bereikbaar vanaf de galerij en geeft toegang tot open entreehal, die in het verlengde in verbinding staat met de woonkamer. De mooie laminaatvloer is drempelloos gelegd in alle vertrekken en de wanden zijn afgewerkt met overschilderd glasweefselbehang. Naast de voordeur bevindt zich de meterkast met daartegenover een vaste kast. Ook is er toegang tot de keuken, de eerste slaapkamer en is er een open verbinding met zowel de hal als de woonkamer.
De keuken beschikt aan weerszijden over een recht keukenblok met veel kastruimte en aan een zijde zijn er ook bovenkasten aanwezig. De keuken is uitgevoerd in een lichte teint en is voorzien van diverse apparatuur, zoals een oven, een kookplaat, een afzuigkap en een close-in boiler.
De eerste en tweede slaapkamer zijn beide gelegen aan de voorzijde van het complex, waarbij de tweede slaapkamer toegankelijk is vanuit de hal en beschikt over een grote vaste kast met schuifdeuren.
Daarnaast is er vanuit de hal ook toegang tot de derde slaapkamer, de badkamer en het gedeeltelijk betegelde toilet, dat extra is voorzien van een fonteintje.
De badkamer is volledig betegeld en uitgerust met een inloopdouche, een wastafelmeubel en een wasmachineaansluiting.
De derde slaapkamer is gelegen aan de achterzijde en heeft een nieuwe, kunststof schuifpui dat toegang geeft tot het balkon. Ook is er een schuifdeur naar de woonkamer en biedt het voldoende ruimte voor een tweepersoons bed en een grote garderobekast.
Het balkon is prettig overdekt en handig voorzien van een gecoate betonvloer. Het heeft een breed zitgedeelte en loopt smal over richting de voorzijde van de woonkamer. Er is een vluchtdeur naar de buren en het geeft een prachtig uitzicht over de omgeving.
De woonkamer heeft heel veel lichtinval dankzij de grote raampartij en vanuit hier zorgt dat voor een uitzicht dat nooit verveeld.
BIJZONDERHEDEN
- De woning is grotendeels voorzien van hardhouten kozijnen met dubbel glas. Met uitzondering van de schuifpui, deze is recentelijk vernieuwd en uitgevoerd in kunststof. Daarnaast is het glas in de woonkamer vervangen
- De buitenzijde van het balkon is voorzien van een elektrisch bedienbaar screen
- Aan de gevel bij de woonkamer hangt een elektrisch bedienbaar uitvalscherm
- Beschikking over een eigen garage met elektra
- Verwarming middels blokverwarming
- Actieve VvE (bijdrage inclusief de garage € 450,- per maand, inclusief voorschot stookkosten)
- Gelegen op eigen grond
- Bouwjaar 1970
- Oplevering in overleg
Deze informatie is door ons met de nodige zorgvuldigheid samengesteld. Prins NVM Makelaars streeft ernaar de informatie op haar website / brochures en andere uitingen zo actueel en nauwkeurig mogelijk weer te geven. Onzerzijds wordt echter geen enkele aansprakelijkheid aanvaard voor enige onvolledigheid, onjuistheid of anderszins, dan wel de gevolgen daarvan
Move.nl Dossier
Wanneer u bij ons een bezichtiging heeft ingepland, krijgt u toegang tot het Move.nl bezichtigingsdossier van de woning.
Woonoppervlakte
De Meetinstructie is gebaseerd op de NEN2580. De Meetinstructie is bedoeld om een meer eenduidige manier van meten toe te passen voor het geven van een indicatie van de gebruiksoppervlakte. De Meetinstructie sluit verschillen in meetuitkomsten niet volledig uit, door bijvoorbeeld interpretatieverschillen, afrondingen of beperkingen bij het uitvoeren van de meting.
Indien de exacte maten voor een koper van cruciaal belang zijn, adviseren wij deze zelf na te meten. De (kandidaat)koper(s) zullen, indien gewenst, daartoe in de gelegenheid gesteld worden op een passend moment teneinde teleurstellingen en schade te voorkomen.
Ouderdomsclausule
Bij woningen ouder dan 30 jaar zal er standaard in de koopakte een ouderdomsclausule worden opgenomen.
Notariskeuze en kosten
In principe ligt de notariskeuze bij de koper. Het doorhalen van de hypothecaire inschrijving in het kadaster moet door de verkoper betaald worden. Zijn de kosten voor deze doorhaling hoger dan € 400,- inclusief BTW dan wordt het meerdere bij de koper in rekening gebracht. Indien de koper een notaris kiest buiten een straal van 20 kilometer van de verkochte onroerende zaak dan zijn de eventuele kosten die de notaris berekent voor een eventuele verkoopvolmacht en legalisatie hiervan ten behoeve van de verkoper voor rekening van de koper.
Getekende koopovereenkomst
Een mondelinge overeenstemming tussen de particuliere verkoper en de particuliere koper is niet rechtsgeldig. Met andere woorden: er is geen koop. Er is pas sprake van een rechtsgeldige koop als de particuliere verkoper en de particuliere koper de koopovereenkomst hebben ondertekend. Dit vloeit voort uit artikel 7:2 Burgerlijk Wetboek. Een bevestiging van de mondelinge overeenstemming per e-mail of een toegestuurd concept van de koopovereenkomst wordt overigens niet gezien als een ‘ondertekende koopovereenkomst’.
Gunning
Verkoper behoudt zich uitdrukkelijk het recht voor het object te gunnen aan de gegadigde van zijn keuze. Nadrukkelijk zij vermeld dat alle informatie in deze brochure moet beschouwd worden als een uitnodiging tot het doen van een bod of om in onderhandeling te treden. Er kunnen geen rechten worden ontleend aan deze informatie.
Kenmerken
Overdracht
- vraagprijs
- € 400.000 k.k.
- Status
- Beschikbaar
- Aanvaarding
- In overleg
Bouw
- Soort woning
- Portiekflat, appartement
- Soort bouw
- Bestaande bouw
Oppervlakten en inhoud
- Woonoppervlakte
- 104 m²
- Externe bergruimte
- 25 m²
- Inhoud
- 323 m³
Indeling
- Aantal kamers
- 4 kamers (3 slaapkamers)
- Aantal verdiepingen
- 1 Verdiepingen
- Voorzieningen
- Buitenzonwering, schuifpui, lift
Energie
- Energielabel
- Niet beschikbaar
- Isolatie
- Dubbel glas
Buitenruimte
- Ligging
- Aan water, in woonwijk, vrij uitzicht, aan vaarwater
- Tuin
- Geen tuin
Garage
- Soort garage
- Aangebouwd steen
- Capaciteit
- 1 Auto
- Voorzieningen
- Voorzien van elektra
Parkeren
- Soort parkeergelegenheid
- Openbaar parkeren