Nicolaas van 't Wouthof 47
€ 750.000 k.k.
Maassluis
Herenhuis
197 m²
5 slaapkamers
Zuidwest
In overleg
In een rustige, kindvriendelijke woonwijk in Maassluis, omringd door groen en alle voorzieningen binnen handbereik, staat deze zeer bijzonder royale hoekwoning verdeeld over 4 woonlagen. Met een eigen parkeerplaats pal voor de deur en een tweede parkeerplaats in de achtertuin, een diepe zonnige achtertuin en volop ruimte binnen is dit een ideale plek voor wie graag ruim wil wonen. Winkels, scholen, sportverenigingen, strand en het openbaar vervoer (met de metro in 10 min naar Hoek van Holland strand en 25 minuten naar Rotterdam) zijn allemaal dichtbij, terwijl de ligging in een autoluwe hofje juist veel rust en veiligheid biedt. De woning zelf is tot in detail verzorgd en onderscheidt zich door de fijne doorzonwoonkamer met een tuingerichte zithoek en een moderne leefkeuken met kookeiland, perfect voor gezellige momenten met familie en vrienden. Dankzij de vloerverwarming en koeling die in de hele woning aanwezig is, geniet je hier het hele jaar door van een aangenaam binnenklimaat. Met maar liefst 5 ruime slaapkamers verdeeld over 3 verdiepingen en 2 complete badkamers is er voor ieder gezinslid genoeg plek en privacy. Buiten nodigt de riante achtertuin uit tot ontspannen in de de zon en het gemak van 2 praktische bergingen. Samen met 2 eigen parkeerplaatsen en de rustige, groene ligging maakt dit huis niet alleen heel compleet, maar ook bijzonder aantrekkelijk voor wie op zoek is naar een ruime plek in Maassluis.
INDELING
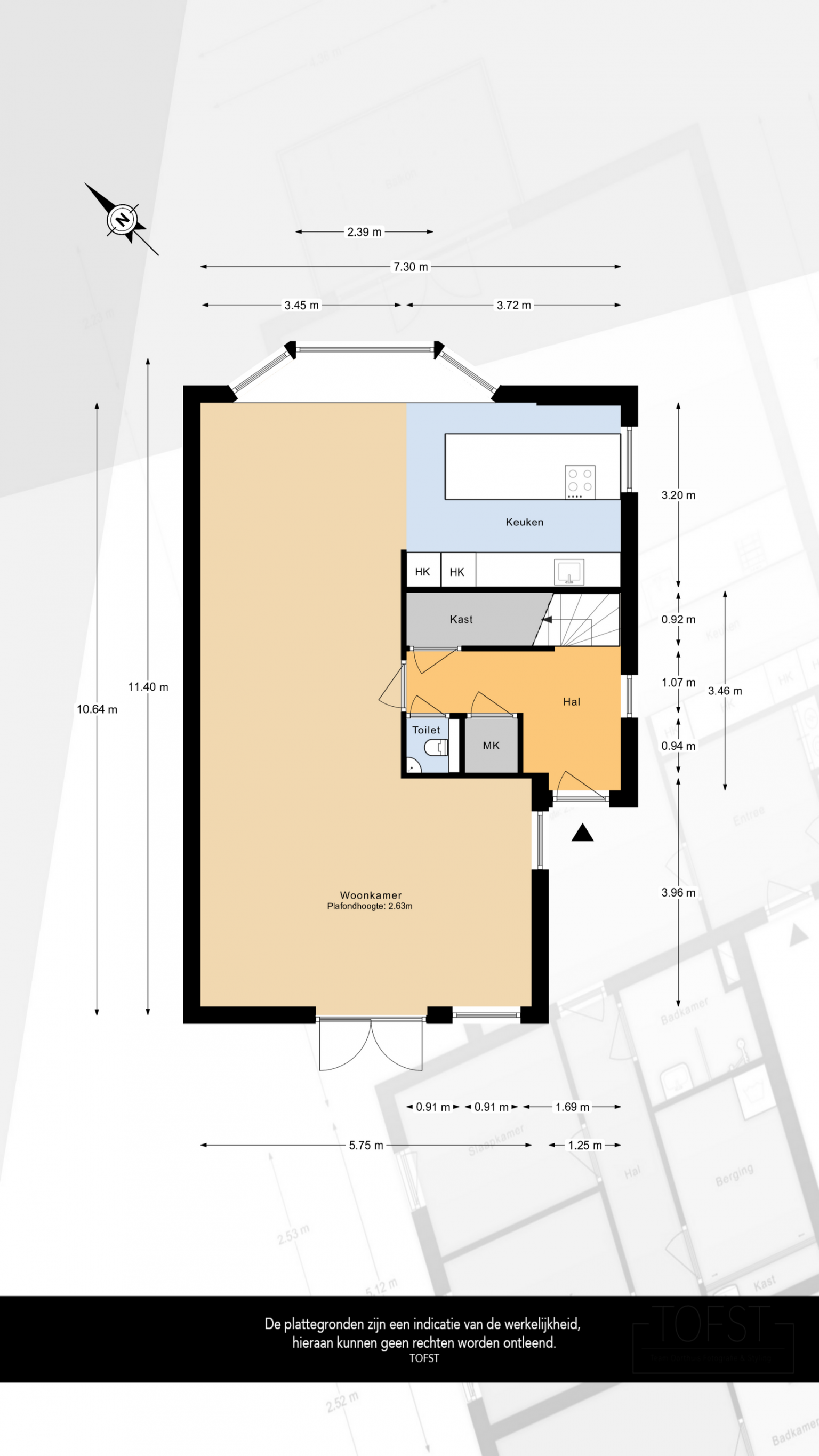
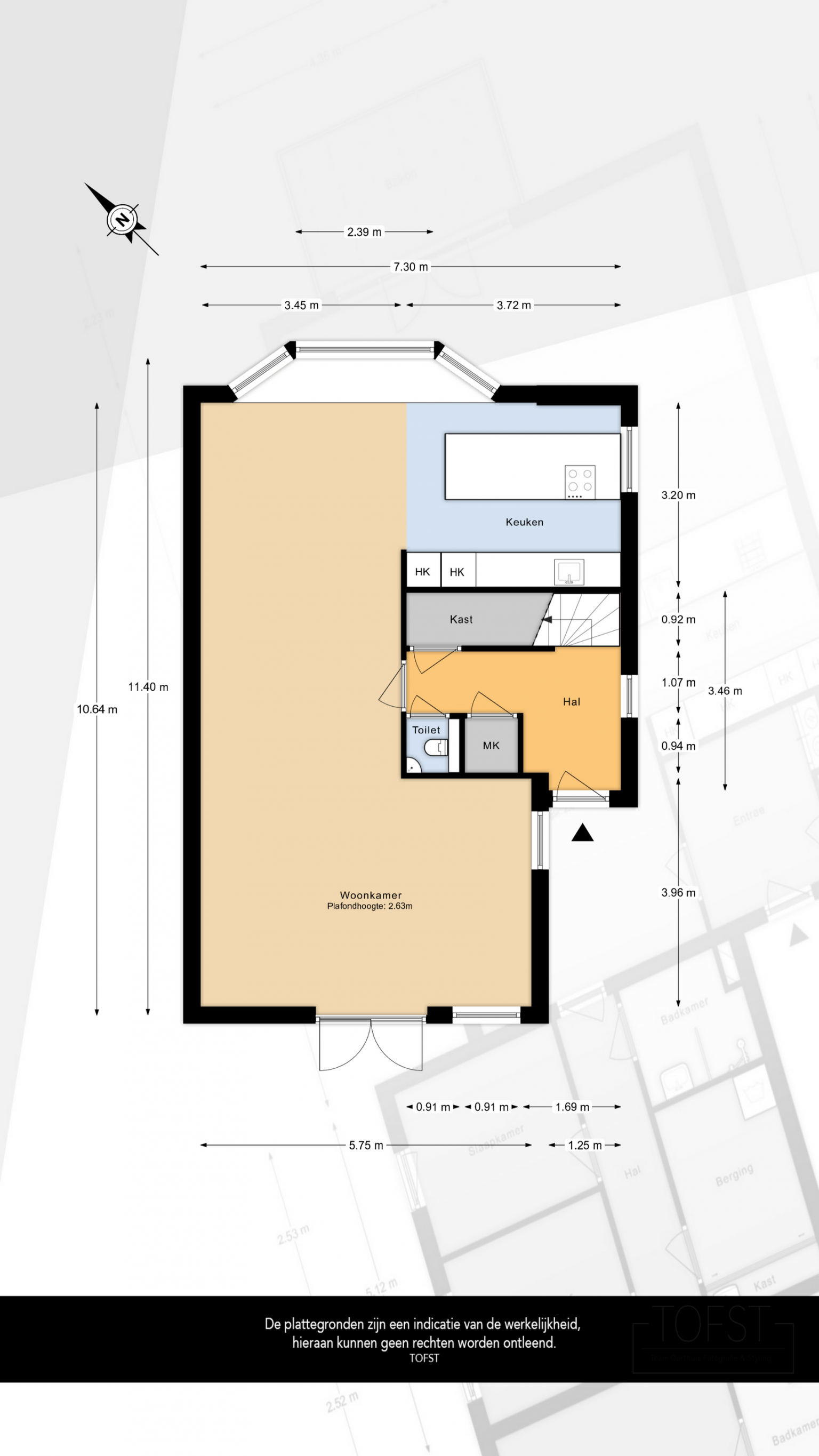
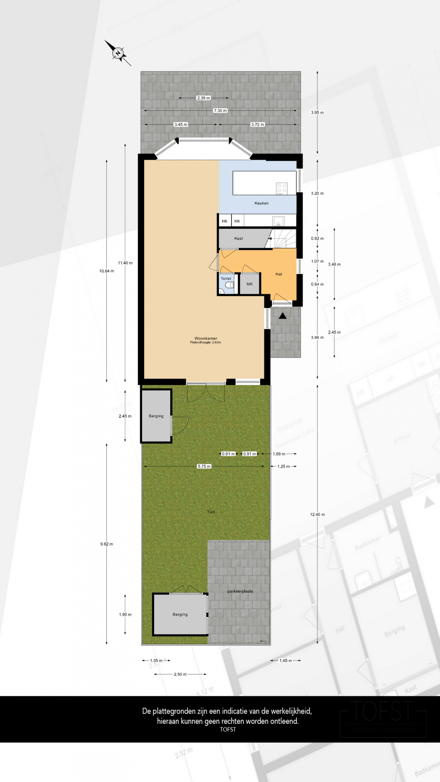
BEGANE GROND
De ingang van de woning bevindt zich aan de zijkant, waarna er toegang is tot de entreehal. Hier zijn de wanden afgewerkt met spachtelputz en is de vloer voorzien van tegels. Dit is doorgetrokken naar de woonkamer en de half open keuken. In de hal bevindt zich de meterkast en een diepe trapkast. Vanuit de hal is er toegang tot de woonkamer en het volledig betegelde toilet, dat is voorzien van een zwevend toilet en een fonteintje. De doorzonwoonkamer loopt geheel van de voorzijde naar de achterzijde, waarbij er een fijne tuin gerichte zithoek is aan de achterzijde en de leefkeuken zich aan de voorzijde bevindt. De keuken met inbouwappratuur heeft naast een recht keukenblok van natuursteen met hoge kasten een kookeiland met een verlengd blad (een bar tafel), die plaatst biedt aan vier barkrukken. Het plafond boven het kookeiland is verlaagd en voorzien van inbouw spots. Tevens hangt hier de afzuigkap boven de 5-pits inductiekookplaat. Verder is er in een keuken diverse apparatuur verwerkt, zoals een combimagnitron oven met een stoom functie, een oven, een vaatwasser en maar liefst twee koelkasten met een vriesvak. Het aanrechtblad loopt mooi over in de achterwand en de aanwezige bovenkasten zijn voorzien van verlichting. De diepe achtertuin is nagenoeg onderhoudsvrij en is geheel voorzien van tegels. De groene hagen zorgen voor een afscheiding naar de buren en er zijn maar liefst twee bergingen aanwezig. Ook is er een tweede parkeerplaats achter in de tuin.
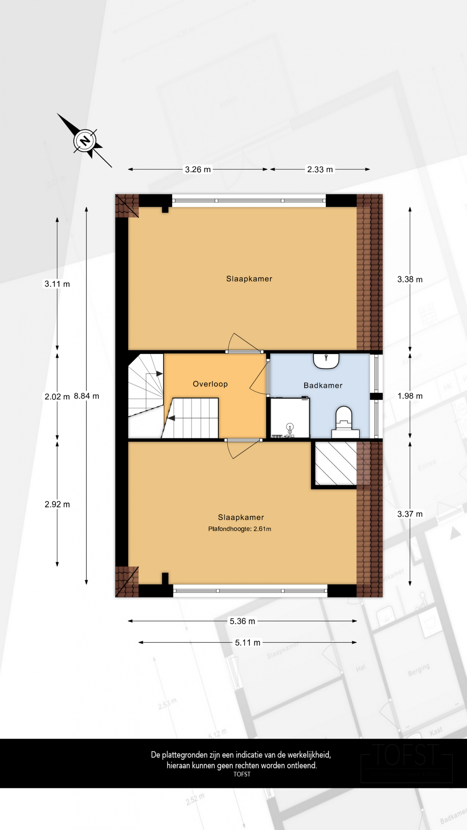
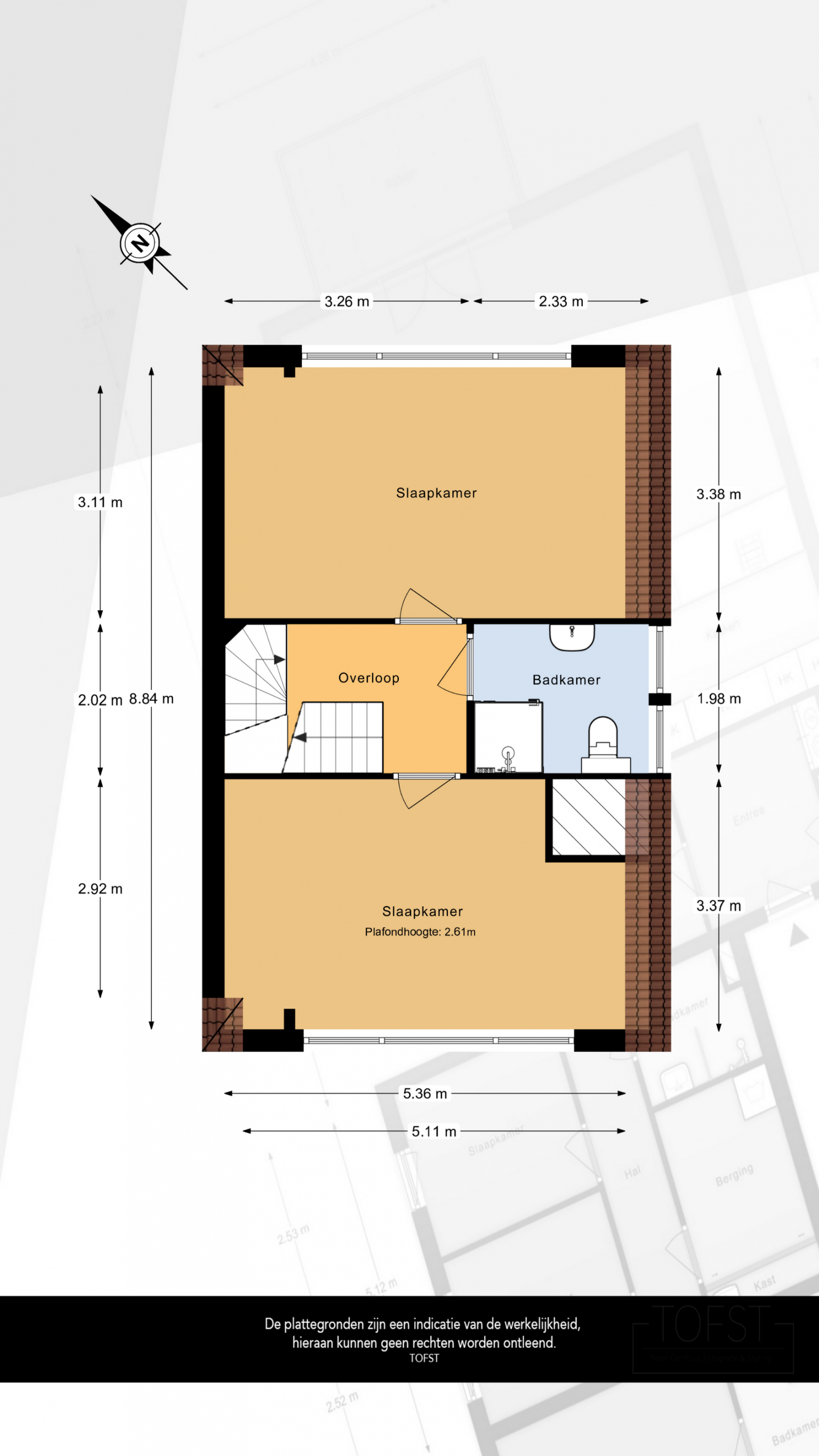
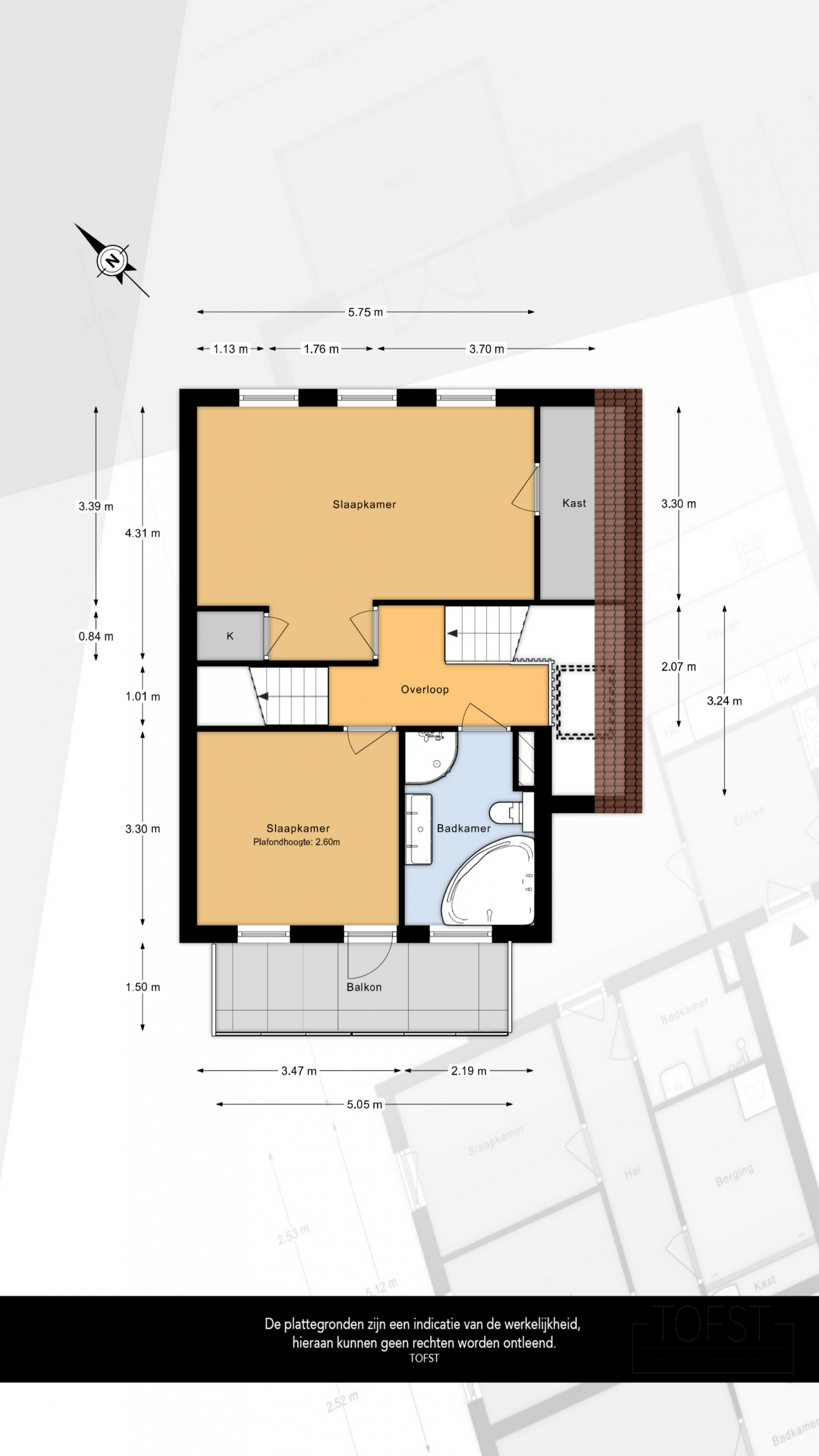
1E VERDIEPING
Na de trapopgang is er toegang tot de ruime overloop met een vide die is voorzien van vloerbedekking en spachtelputz wanden. In de schuine kap boven het trapgat bevindt zich een dakraam. De volledig betegelde badkamer met een Whirlpool bad is van alle gemakken voorzien en is uitgerust met een douchecabine, een zwevend toilet, een dubbel wastafelmeubel met daarboven een spiegelkast met verlichting, een handdoekenradiator. Er is een afzuigpunt voor ventilatie, maar ook het aanwezige raam zorgt voor natuurlijke ventilatie en veel licht. De hoofdslaapkamer is gelegen aan de voorzijde en heeft 2 inloop kasten. De tweede slaapkamer is gelegen aan de achterzijde en heeft een deur naar het balkon die uitkijkt over de tuin.
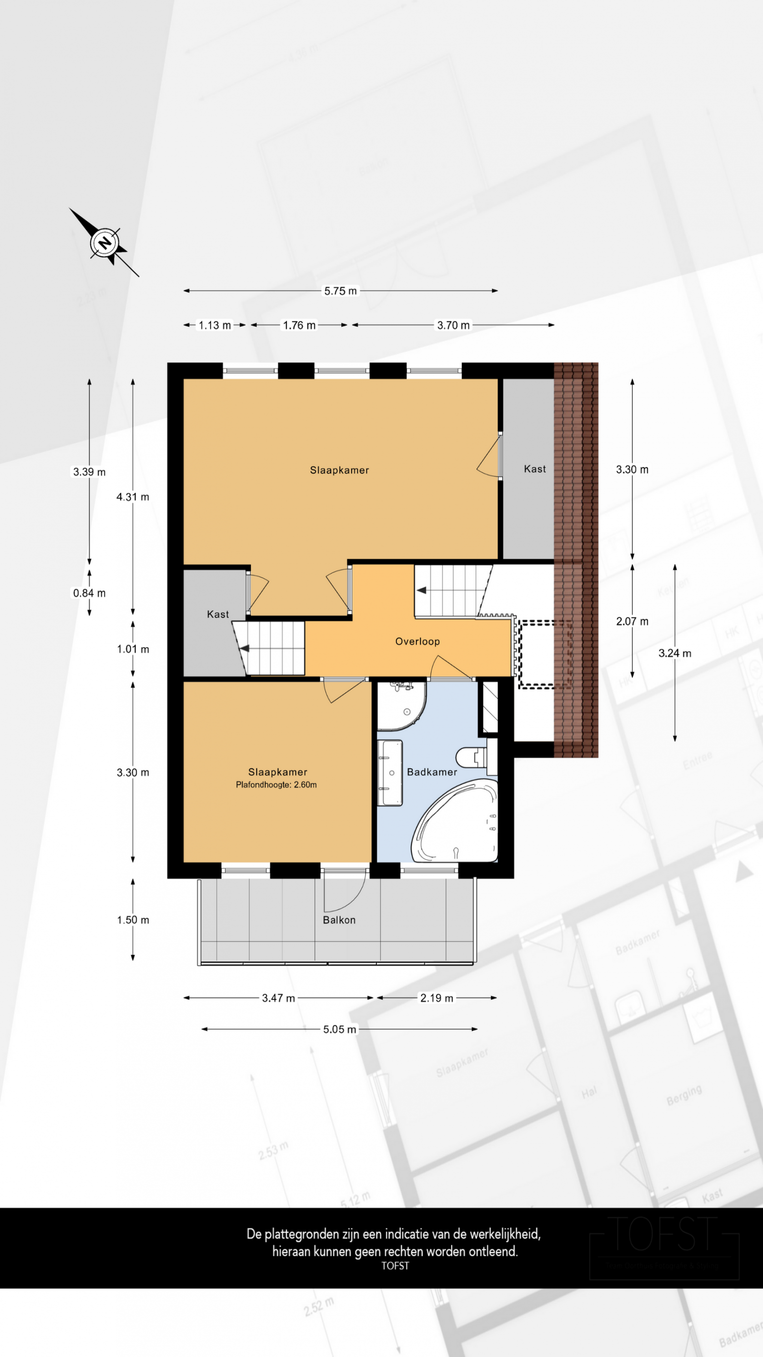
2E VERDIEPING
De overloop op deze verdieping heeft net als de overloop op de 1e verdieping vloerbedekking en wanden die zijn voorzien van spachtelputz. De tweede badkamer is eveneens volledig betegeld en uitgerust met een douchecabine, een wastafel en een zwevend toilet. Hier zijn twee te openen ramen aanwezig, evenals een afzuigpunt. De derde en vierde slaapkamer zijn beide zeer ruim.
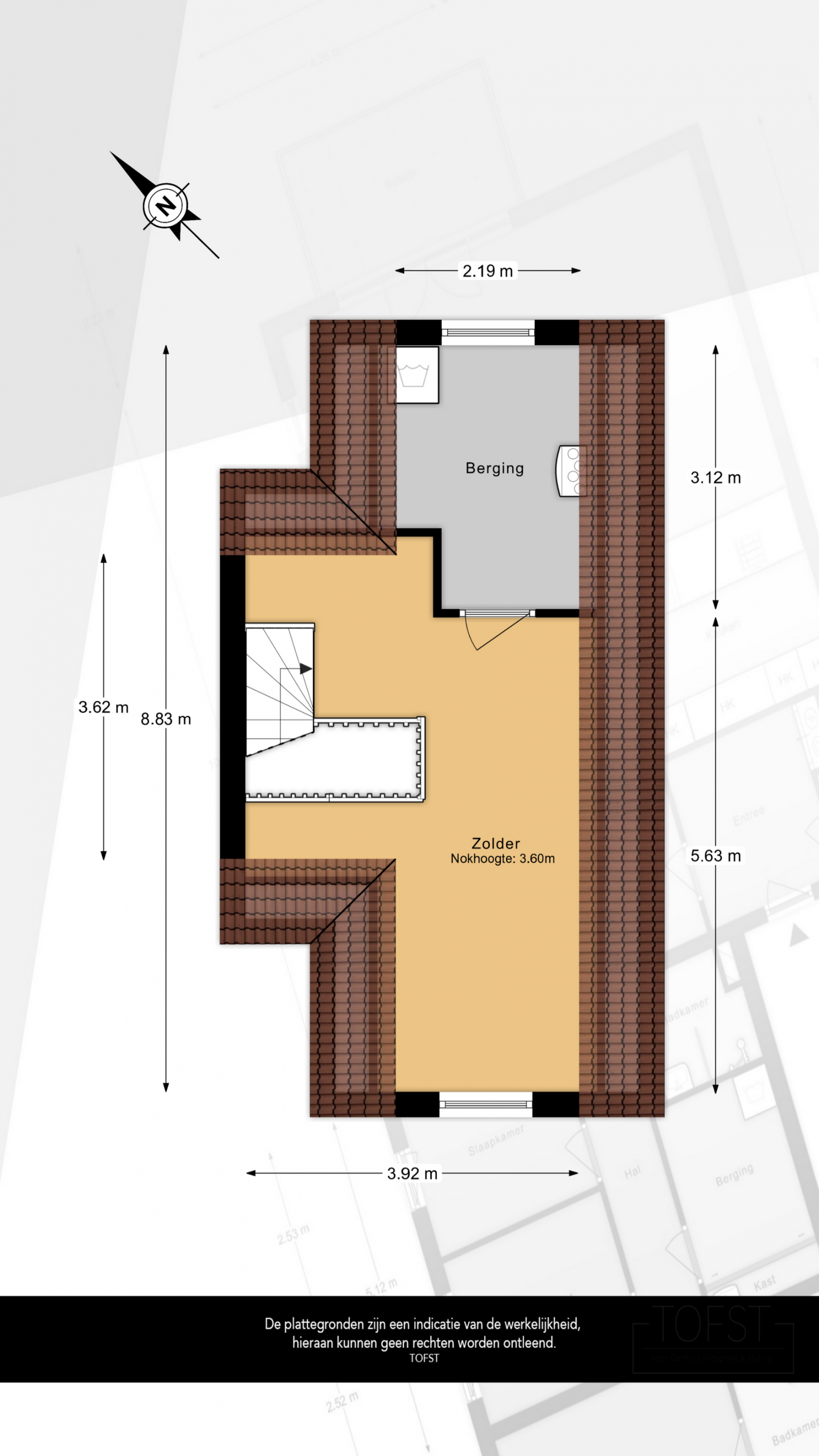
3E VERDIEPING
Deze open verdieping is handig voor een eigen werkplek, een hobbyruimte, maar ook zeker voor een extra slaapkamer. Het puntdak zorgt voor veel hoogte. Op deze verdieping is een aparte technische ruimte aanwezig met een wasmachine aansluiting en de technische installaties. De vloer is voorzien van vinyl en er is een raam aanwezig.
BIJZONDERHEDEN
- 4 woonlagen, met mogelijkheid 6 slaapkamers
- Energielabel A, geldig tot 22-08-2035
- Vloerverwarming en -koeling door de hele woning
- Geheel voorzien van hardhouten kozijnen met dubbel glas (HR+)
- Luxe open design leefkeuken (SieMatic) met Miele en ATAG inbouwapparatuur
- 2 badkamers (Villeroy & Boch sanitair) beiden met een douche en toilet en één met Whirlpool bad
- Een overloop met vide
- Bijna de gehele woning is voorzien van spachtelputz wanden
- Zonnige tuin (een van de meest zonnige tuinen in de buurt) met 2 bergingen
- 2 eigen parkeerplatsen (1 in de voortuin en 1 in de achtertuin)
- Bouwjaar 2007, gelegen op eigen grond
- Oplevering in overleg
Prins NVM Makelaars streeft ernaar de informatie op haar website / brochures en andere uitingen zo actueel en nauwkeurig mogelijk weer te geven. Hoewel de informatie met de grootst mogelijke zorgvuldigheid is samengesteld aanvaarden wij geen enkele aansprakelijkheid ten aanzien van de juistheid van de vermelde gegevens.
Woonoppervlakte De Meetinstructie is gebaseerd op de NEN2580. De Meetinstructie is bedoeld om een meer eenduidige manier van meten toe te passen voor het geven van een indicatie van de gebruiksoppervlakte. De Meetinstructie sluit verschillen in meetuitkomsten niet volledig uit, door bijvoorbeeld interpretatieverschillen, afrondingen of beperkingen bij het uitvoeren van de meting. Indien de exacte maten voor een koper van cruciaal belang zijn, adviseren wij deze zelf na te meten. De (kandidaat)koper(s) zullen, indien gewenst, daartoe in de gelegenheid gesteld worden op een passend moment teneinde teleurstellingen en schade te voorkomen.
Gunning Verkoper behoudt zich uitdrukkelijk het recht voor het object te gunnen aan de gegadigde van zijn keuze.
Nadrukkelijk zij vermeld dat alle informatie in deze brochure moet beschouwd worden als een uitnodiging tot het doen van een bod of om in onderhandeling te treden. Er kunnen geen rechten worden ontleend aan deze informatie.
INDELING
BEGANE GROND
De ingang van de woning bevindt zich aan de zijkant, waarna er toegang is tot de entreehal. Hier zijn de wanden afgewerkt met spachtelputz en is de vloer voorzien van tegels. Dit is doorgetrokken naar de woonkamer en de half open keuken. In de hal bevindt zich de meterkast en een diepe trapkast. Vanuit de hal is er toegang tot de woonkamer en het volledig betegelde toilet, dat is voorzien van een zwevend toilet en een fonteintje. De doorzonwoonkamer loopt geheel van de voorzijde naar de achterzijde, waarbij er een fijne tuin gerichte zithoek is aan de achterzijde en de leefkeuken zich aan de voorzijde bevindt. De keuken met inbouwappratuur heeft naast een recht keukenblok van natuursteen met hoge kasten een kookeiland met een verlengd blad (een bar tafel), die plaatst biedt aan vier barkrukken. Het plafond boven het kookeiland is verlaagd en voorzien van inbouw spots. Tevens hangt hier de afzuigkap boven de 5-pits inductiekookplaat. Verder is er in een keuken diverse apparatuur verwerkt, zoals een combimagnitron oven met een stoom functie, een oven, een vaatwasser en maar liefst twee koelkasten met een vriesvak. Het aanrechtblad loopt mooi over in de achterwand en de aanwezige bovenkasten zijn voorzien van verlichting. De diepe achtertuin is nagenoeg onderhoudsvrij en is geheel voorzien van tegels. De groene hagen zorgen voor een afscheiding naar de buren en er zijn maar liefst twee bergingen aanwezig. Ook is er een tweede parkeerplaats achter in de tuin.
1E VERDIEPING
Na de trapopgang is er toegang tot de ruime overloop met een vide die is voorzien van vloerbedekking en spachtelputz wanden. In de schuine kap boven het trapgat bevindt zich een dakraam. De volledig betegelde badkamer met een Whirlpool bad is van alle gemakken voorzien en is uitgerust met een douchecabine, een zwevend toilet, een dubbel wastafelmeubel met daarboven een spiegelkast met verlichting, een handdoekenradiator. Er is een afzuigpunt voor ventilatie, maar ook het aanwezige raam zorgt voor natuurlijke ventilatie en veel licht. De hoofdslaapkamer is gelegen aan de voorzijde en heeft 2 inloop kasten. De tweede slaapkamer is gelegen aan de achterzijde en heeft een deur naar het balkon die uitkijkt over de tuin.
2E VERDIEPING
De overloop op deze verdieping heeft net als de overloop op de 1e verdieping vloerbedekking en wanden die zijn voorzien van spachtelputz. De tweede badkamer is eveneens volledig betegeld en uitgerust met een douchecabine, een wastafel en een zwevend toilet. Hier zijn twee te openen ramen aanwezig, evenals een afzuigpunt. De derde en vierde slaapkamer zijn beide zeer ruim.
3E VERDIEPING
Deze open verdieping is handig voor een eigen werkplek, een hobbyruimte, maar ook zeker voor een extra slaapkamer. Het puntdak zorgt voor veel hoogte. Op deze verdieping is een aparte technische ruimte aanwezig met een wasmachine aansluiting en de technische installaties. De vloer is voorzien van vinyl en er is een raam aanwezig.
BIJZONDERHEDEN
- 4 woonlagen, met mogelijkheid 6 slaapkamers
- Energielabel A, geldig tot 22-08-2035
- Vloerverwarming en -koeling door de hele woning
- Geheel voorzien van hardhouten kozijnen met dubbel glas (HR+)
- Luxe open design leefkeuken (SieMatic) met Miele en ATAG inbouwapparatuur
- 2 badkamers (Villeroy & Boch sanitair) beiden met een douche en toilet en één met Whirlpool bad
- Een overloop met vide
- Bijna de gehele woning is voorzien van spachtelputz wanden
- Zonnige tuin (een van de meest zonnige tuinen in de buurt) met 2 bergingen
- 2 eigen parkeerplatsen (1 in de voortuin en 1 in de achtertuin)
- Bouwjaar 2007, gelegen op eigen grond
- Oplevering in overleg
Prins NVM Makelaars streeft ernaar de informatie op haar website / brochures en andere uitingen zo actueel en nauwkeurig mogelijk weer te geven. Hoewel de informatie met de grootst mogelijke zorgvuldigheid is samengesteld aanvaarden wij geen enkele aansprakelijkheid ten aanzien van de juistheid van de vermelde gegevens.
Woonoppervlakte De Meetinstructie is gebaseerd op de NEN2580. De Meetinstructie is bedoeld om een meer eenduidige manier van meten toe te passen voor het geven van een indicatie van de gebruiksoppervlakte. De Meetinstructie sluit verschillen in meetuitkomsten niet volledig uit, door bijvoorbeeld interpretatieverschillen, afrondingen of beperkingen bij het uitvoeren van de meting. Indien de exacte maten voor een koper van cruciaal belang zijn, adviseren wij deze zelf na te meten. De (kandidaat)koper(s) zullen, indien gewenst, daartoe in de gelegenheid gesteld worden op een passend moment teneinde teleurstellingen en schade te voorkomen.
Gunning Verkoper behoudt zich uitdrukkelijk het recht voor het object te gunnen aan de gegadigde van zijn keuze.
Nadrukkelijk zij vermeld dat alle informatie in deze brochure moet beschouwd worden als een uitnodiging tot het doen van een bod of om in onderhandeling te treden. Er kunnen geen rechten worden ontleend aan deze informatie.
Kenmerken
Overdracht
- vraagprijs
- € 750.000 k.k.
- Status
- Beschikbaar
- Aanvaarding
- In overleg
Bouw
- Soort woning
- Herenhuis, hoekwoning
- Soort bouw
- Bestaande bouw
Oppervlakten en inhoud
- Woonoppervlakte
- 197 m²
- Externe bergruimte
- 8 m²
- Perceel
- 201 m²
- Inhoud
- 705 m³
Indeling
- Aantal kamers
- 6 kamers (5 slaapkamers)
- Aantal verdiepingen
- 4 Verdiepingen
- Voorzieningen
- Mechanische ventilatie, dakraam
Energie
- Energielabel
- A
- Isolatie
- Volledig geïsoleerd
Buitenruimte
- Ligging
- In woonwijk
- Tuin
- Achtertuin, voortuin
- Achtertuin
- 71 m² (12,40m Diep / 5,75m Breed)
- Ligging tuin
- Zuidwest
Garage
- Soort garage
- Geen garage
Parkeren
- Soort parkeergelegenheid
- Openbaar parkeren